Садовод 6х8 А

от 0р.

Современная оригинальная конструкция А-дома «Садовод 6×8 А» в виде загородного шале отлично подходит для отдыха. На площади в 46 м² размещено полноценное 2-уровневое жилое здание, в котором с удобством может разместиться большая компания или семья.

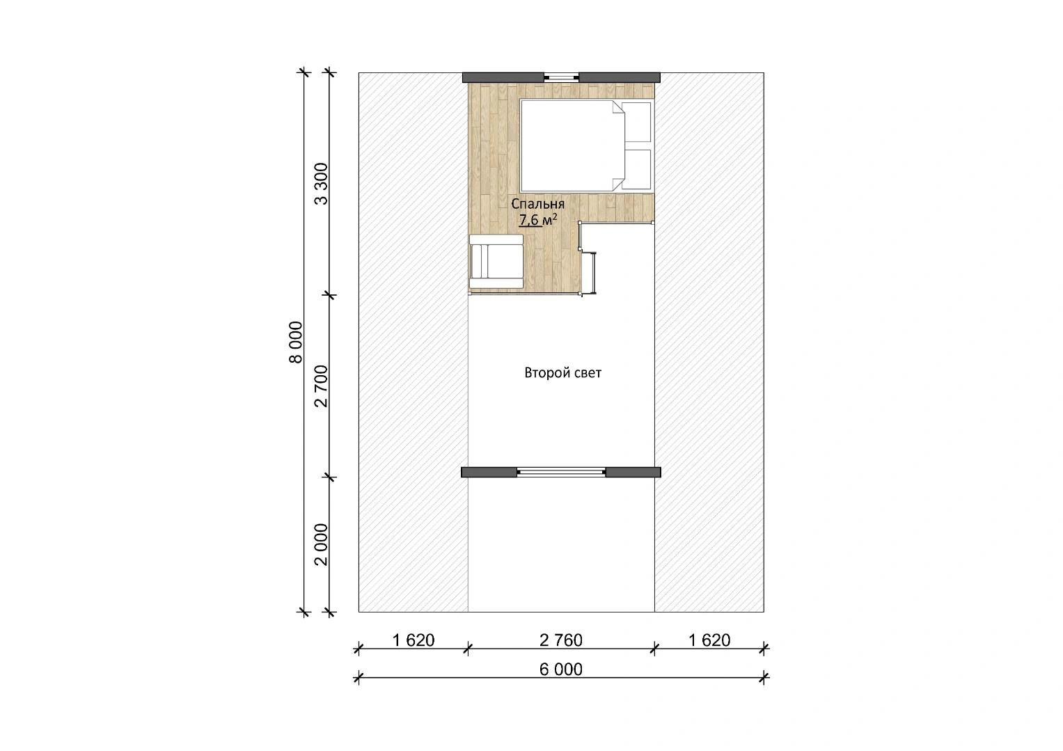
На первом этаже расположены большая гостиная-кухня, спальня и санузел. Есть место под просторную террасу. Мансардный этаж вмещает еще одно помещение, в котором можно поставить кровать или организовать рабочий кабинет.

Конструкция дома предусматривает проведение всех необходимых для комфортной жизни инженерных систем. В том числе: водопровода и канализации. Современный свайно-винтовой фундамент и крыша из металлочерепицы обеспечивают надежную защиту от влаги. Уютный микроклимат внутри поддерживает утеплитель и пластиковые окна. Возможно дополнительное антисептирование деревянных конструкций, их обработка средствами огневой и биозащиты.

Отделка фасада и интерьера производится с помощью экологичных долговечных красок и материалов.

Планировки дома *
Планировка 1
1-й этаж Планировка 1
2-й этаж Планировка 1
* Размеры и площади указаны без учета наружной и внутренней отделки и в разных комплектациях могут меняться (из-за толщины утеплителя, стен и перегородок). Подробности уточняйте у менеджера.
Комплектации
Осень Каркасная
1 685 000 р.
цена по акции до 30.09
1 759 000 р.
цена по ипотеке
2 055 000 р.
цена в рассрочку
191 638 р.

Пакет инженерные коммуникации. Подведение труб горячей и холодной воды, прокладка канализационных труб, водонагреватель. Устройство канализации внутри дома. Прокладка электропроводки в пластиковых коробах.

Заказать дом Смотреть комплектацию
Фундамент дома

Опорные столбы из бетонных блоков высотой 200мм, на бетонной армированной плитке 400Х400Х50 на песчаной подушке. Гидроизоляция фундамента – рубероид в два слоя. Замкнутая нижняя обвязка из ПМК.

Огнебиозащита, антисептирование

нет

Конструкция пола 1-го этажа

Толщина конструкции: 181мм. Настил пола ОСП-22 мм; пароизоляция Тераспан Б (или аналог); клееный Т-профиль 73х159 мм усиленной конструкции; минеральная вата Урса М11 (или аналог) 100мм; ветро-изоляционная мембрана Тераспан А (или аналог); черновой пол толщиной 10мм.

Утепление пола 1-го этажа

Минеральная вата 100 мм.

Настил пола 1-го этажа

ОСП 22 мм.

Стены

Наклонные толщина 211 мм. Обшивка 12,5 мм, пароизоляционная мембрана, ПМК, минеральная вата 100 мм, гидро-ветроизоляционная мембрана, обрешетка, контр-обрешетка, профилированный лист. Вертикальные стены толщина 109 мм. Обшивка 12,5 мм, пароизоляционная мембрана, ПМК, минеральная вата 100 мм.

Перекрытие 1-го этажа

Толщина конструкции: 181,5 мм. Настил пола ОСП-22 мм; пароизоляция Тераспан Б (или аналог); ПМК(1); минеральная вата Урса М11 (или аналог) 50 мм; пароизоляция Тераспан Б (или аналог); обшивка 12.5 мм(2)

Фронтон

Толщина фронтонов 172 мм. Внутренняя обшивка 12,5 мм, пароизоляционная мембрана, ПМК, минеральная вата 150 мм, гидро-ветроизоляционная мембрана, обшивка 12,5 мм.

Перегородки

Толщина перегородок 122 мм. Обшивка 12,5 мм, ПМК, обшивка 12,5 мм.

Кровля

Профилированный лист. Крепление кровельными саморезами.

Окна

ПВХ, однокамерный стеклопакет (цвет белый), под окнами установлены отливы.

Двери дома

Входная ПВХ, остекленная. Внутренние ламинированные.

Терраса

Обшивка 12,5. Настил-п/м строганный 27х90.

Вентиляция

-

Электрика

-

Отопление

-

Водоподготовка

-

Канализация

-

Зима Каркасная
2 107 000 р.
цена по акции до 30.09
2 189 000 р.
цена по ипотеке
2 570 000 р.
цена в рассрочку
191 638 р.

Пакет инженерные коммуникации. Подведение труб горячей и холодной воды, прокладка канализационных труб, водонагреватель. Устройство канализации внутри дома. Прокладка электропроводки в пластиковых коробах.

Заказать дом Смотреть комплектацию
Фундамент дома

Свайно-винтовой (сваи D=108 мм. L=2500 мм.). Гидроизоляция фундамента - рубероид в два слоя. Замкнутая нижняя обвязка из ПМК.

Огнебиозащита, антисептирование

Огнебиозащита нижней обвязки, лаг пола и чернового пола в 2 слоя

Конструкция пола 1-го этажа

Толщина конструкции: 181мм. Настил пола ОСП-22 мм; пароизоляция Тераспан Б (или аналог); клееный Т-профиль 73х159 мм усиленной конструкции; минеральная вата Урса М11 (или аналог) 150мм; ветро-изоляционная мембрана Тераспан А (или аналог); черновой пол толщиной 10мм. Балки пола и черновой пол обработаны огнебиозащитой.

Утепление пола 1-го этажа

Минеральная вата 150 мм.

Настил пола 1-го этажа

ОСП 22 мм.

Стены

Наклонные толщина 211 мм. Обшивка 12,5 мм, пароизоляционная мембрана, ПМК, минеральная вата 150 мм, гидро-ветроизоляционная мембрана, обрешетка, контр-обрешетка, профилированный лист. Вертикальные стены толщина 159 мм. Обшивка 12,5 мм, пароизоляционная мембрана, ПМК, минеральная вата 150 мм.

Перекрытие 1-го этажа

Толщина конструкции: 181,5 мм. Настил пола ОСП-22 мм; пароизоляция Тераспан Б (или аналог); ПМК(1); минеральная вата Урса М11 (или аналог) 50 мм; пароизоляция Тераспан Б (или аналог); обшивка 12.5 мм(2)

Фронтон

Толщина фронтонов 172 мм. Внутренняя обшивка 12,5 мм, пароизоляционная мембрана, ПМК, минеральная вата 150 мм, гидро-ветроизоляционная мембрана, обшивка 12,5 мм.

Перегородки

Толщина перегородок 122 мм. Обшивка 12,5 мм, ПМК, обшивка 12,5 мм.

Кровля

Профилированный лист. Крепление кровельными саморезами.

Окна

ПВХ, однокамерный стеклопакет (цвет белый), под окнами установлены отливы.

Двери дома

Входная ПВХ, остекленная. Внутренние ламинированные.

Терраса

Обшивка 12,5. Настил-п/м строганный 27х90.

Вентиляция

-

Электрика

-

Отопление

-

Водоподготовка

-

Канализация

-

ПМЖ Каркасная
2 404 000 р.
цена по акции до 30.09
2 492 000 р.
цена по ипотеке
2 932 000 р.
цена в рассрочку
191 638 р.

Пакет инженерные коммуникации. Подведение труб горячей и холодной воды, прокладка канализационных труб, водонагреватель. Устройство канализации внутри дома. Прокладка электропроводки в пластиковых коробах.

Заказать дом Смотреть комплектацию
Фундамент дома

Свайно-винтовой (сваи D=108 мм, L=2500 мм). Нижняя обвязка- труба профильная металлическая 120х80 мм; Гидроизоляция фундамента-рубероид в два слоя ; монтажная доска ПМК обработана огнебиозащитой. Отделка фундамента дома ОСП-9 по обрешетке, H=400 мм. По фундаменту установлены отливы (в цвет кровли).

Огнебиозащита, антисептирование

Огнебиозащита нижней обвязки, лаг пола и чернового пола в 2 слоя

Конструкция пола 1-го этажа

Толщина конструкции: 229 мм., Настил пола ОСП-22 мм; пароизоляция Тераспан Б (или аналог); клееный Т-профиль 73х207 мм усиленной конструкции; минеральная вата Урса М11 (или аналог) 200мм; ветро-изоляционная мембрана Тераспан А (или аналог); черновой пол толщиной 10мм; Балки пола и черновой пол обработаны огнебиозащитой.

Утепление пола 1-го этажа

минеральная вата 200мм;

Настил пола 1-го этажа

ОСП 22 мм.

Стены

Наклонные (стропила): Толщина: 266 мм. Внутренняя обшивка 12,5 мм,; пароизоляционная мембрана; ПМК; повторитель стоек ПМК для перекрестного утепления (бьется внутри горизонтально); минеральная вата 200мм; гидро-ветроизоляционная мембрана, обрешетка, контр-обрешетка, наружная отделка (кровля): Профилированный лист. Крепление кровельными саморезами. Вертикальные внутренние стены: Толщина: 206 мм. Обшивка 12,5 мм,; пароизоляционная мембрана; ПМК; минеральная вата 200 мм.

Перекрытие 1-го этажа

Толщина конструкции: 181,5 мм. Настил пола ОСП-22 мм; пароизоляция Тераспан Б (или аналог); ПМК(1); минеральная вата Урса М11 (или аналог) 100 мм; пароизоляция Тераспан Б (или аналог); обшивка 12.5 мм(2)

Фронтон

Толщина фронтонов 238 мм. Внутренняя обшивка 12,5 мм; пароизоляционная мембрана, ПМК; повторитель стоек ПМК для перекрестного утепления (бьется снаружи горизонтально); минеральная вата 200мм; гидро-ветроизоляционная мембрана; обшивка 12,5 мм,

Перегородки

Толщина перегородок: 122мм Обшивка 12.5мм, пароизоляционная мембрана, минеральная вата 100мм ПМК; обшивка 12.5мм

Кровля

Профилированный лист (цвет коричневый, зеленый, красный). Крепление кровельными саморезами. Обрешетка 22мм

Окна

ПВХ двухкамерный стеклопакет с москитными сетками. Под окнами устанавливаются отливы (цвет белый)

Двери дома

Входная ПВХ, остекленная двухкамерный стеклопакет. Внутренние ламинированные.

Терраса

Обшивка 12,5. Настил-п/м строганный 27х90.

Вентиляция

(естественная) с/у и кухни Место установки изолированного вентиляционного выхода и вентиляционных решеток не регламентируется и определяется проектом.

Электрика

-

Отопление

-

Водоподготовка

-

Канализация

-

ПМЖ+ Каркасная
2 968 000 р.
цена по акции до 30.09
3 067 000 р.
цена по ипотеке
3 620 000 р.
цена в рассрочку
621 888 р. АКЦИЯ *

Пакет инженерные коммуникации: отопление от электрокотла, горячее и холодное водоснабжение (монтаж внутри дома), канализация Септик Евролос, прокладка электропроводки в пластиковых коробах.

Заказать дом Смотреть комплектацию
Фундамент дома

Свайно-винтовой (сваи D=108 мм, L=2500 мм). Нижняя обвязка- труба профильная металлическая 120х80 мм; Гидроизоляция фундамента-рубероид в два слоя ; монтажная доска ПМК обработана огнебиозащитой. Отделка фундамента дома ОСП-9 по обрешетке, H=400 мм. По фундаменту установлены отливы (в цвет кровли).

Огнебиозащита, антисептирование

Огнебиозащита нижней обвязки, лаг пола и чернового пола в 2 слоя

Конструкция пола 1-го этажа

Толщина конструкции: 229 мм., Настил пола ОСП-22 мм; пароизоляция Тераспан Б (или аналог); клееный Т-профиль 73х207 мм усиленной конструкции; минеральная вата Урса М11 (или аналог) 200мм; ветро-изоляционная мембрана Тераспан А (или аналог); черновой пол толщиной 10мм; Балки пола и черновой пол обработаны огнебиозащитой.

Утепление пола 1-го этажа

минеральная вата 200мм;

Настил пола 1-го этажа

ОСП 22 мм.

Стены

Наклонные (стропила): Толщина: 266 мм. Внутренняя обшивка 12,5 мм,; пароизоляционная мембрана; ПМК; повторитель стоек ПМК для перекрестного утепления (бьется внутри горизонтально); минеральная вата 200мм; гидро-ветроизоляционная мембрана, обрешетка, контр-обрешетка, наружная отделка (кровля): Профилированный лист. Крепление кровельными саморезами. Вертикальные внутренние стены: Толщина: 206 мм. Обшивка 12,5 мм,; пароизоляционная мембрана; ПМК; минеральная вата 200 мм.

Перекрытие 1-го этажа

Толщина конструкции: 181,5 мм. Настил пола ОСП-22 мм; пароизоляция Тераспан Б (или аналог); ПМК(1); минеральная вата Урса М11 (или аналог) 100 мм; пароизоляция Тераспан Б (или аналог); обшивка 12.5 мм(2)

Фронтон

Толщина фронтонов 238 мм. Внутренняя обшивка 12,5 мм; пароизоляционная мембрана, ПМК; повторитель стоек ПМК для перекрестного утепления (бьется снаружи горизонтально); минеральная вата 200мм; гидро-ветроизоляционная мембрана; обшивка 12,5 мм,

Перегородки

Толщина перегородок: 122мм Обшивка 12.5мм, пароизоляционная мембрана, минеральная вата 100мм ПМК; обшивка 12.5мм

Кровля

Профилированный лист (цвет коричневый, зеленый, красный). Крепление кровельными саморезами. Обрешетка 22мм

Окна

ПВХ двухкамерный стеклопакет с москитными сетками. Под окнами устанавливаются отливы (цвет белый)

Двери дома

Входная ПВХ, остекленная двухкамерный стеклопакет. Внутренние ламинированные.

Терраса

Обшивка 12,5. Настил-п/м строганный 27х90.

Вентиляция

(естественная) с/у и кухни Место установки изолированного вентиляционного выхода и вентиляционных решеток не регламентируется и определяется проектом.

Электрика

Прокладка электропроводки в пластиковых коробах

Отопление

Электрическое отопление. Двухтрубная система отопления, алюминиевые радиаторы, запорная арматура, электрический котёл.

Водоподготовка

Разводка по дому горячего и холодного водоснабжения до точки пользования с запорнрй арматурой. Водонагреватель ГВС на 50л.

Канализация

Канализация включает в себя разводку канализационных труб для обеспечения слива воды под каждую точку водоразбора, в том числе под унитаз. Септик. Залповый сброс 150 л. Производительность 0,6 куб. м. в сутки. Количество пользователей — 3 чел. Потребляемая мощность 2 кВт сутки.

В любую комплектацию возможно внести изменения!

Доставка свыше 100 км от производственной базы (Московская область, г. Бронницы, с. Заворово):
Дом с блочным фундаментом 554 руб./км
Дом со свайным фундаментом 691 руб./км
Дом со свайно-забивным (ЖБИ) фундаментом 735 руб./км
Видеообзор
Фотообзор
Фотообзор Садовод 6х8 А - 1

Современный А-дом с террасой — идеальный вариант для молодых семей.

Фотообзор Садовод 6х8 А - 2

Из кухни-гостиной легко попасть на второй этаж. Есть два варианта установки лестницы — вертикальная или наклонная. 

Фотообзор Садовод 6х8 А - 3

Вход полностью открыт — нет стен, панорамные окна. Стопроцентную видимость можно закрыть жалюзями или шторами. Или же оставить как есть, и любоваться ежедневно природой. 

Фотообзор Садовод 6х8 А - 4

Второй этаж станет отличной зоной отдыха или спальней.

Фотообзор Садовод 6х8 А - 5

А комната на первом этаже послужит кабинетом или дополнительной спальней.

Другие проекты
Отправить заявку на проект
Комплектация
Не важно
  • Осень
  • Зима
  • ПМЖ
  • ПМЖ+
Город*
Выберите город
  • Москва и область
  • Рязань и область
  • Другой
Планировка
Выберите планировку
  • Планировка 1