Богатырь 9x9 с террасой

от 0р.

Трехфронтонный коттедж в 2 этажа площадью 126,08 м² с террасой, несколькими жилыми комнатами, кухней и санузлом. Отличный вариант загородной недвижимости для всей семьи со сроком строительства от 30 дней.

Внизу 21,8-метровая гостиная с зоной для приготовления пищи позволяет организовать совместный отдых. В комнате 15,6 м² можно устроить спальню или детскую. В большом холле хватит места полкам и шкафам для обуви, одежды и инструментов. Ванная площадью 5,9 м² достаточна для размещения необходимой сантехники.

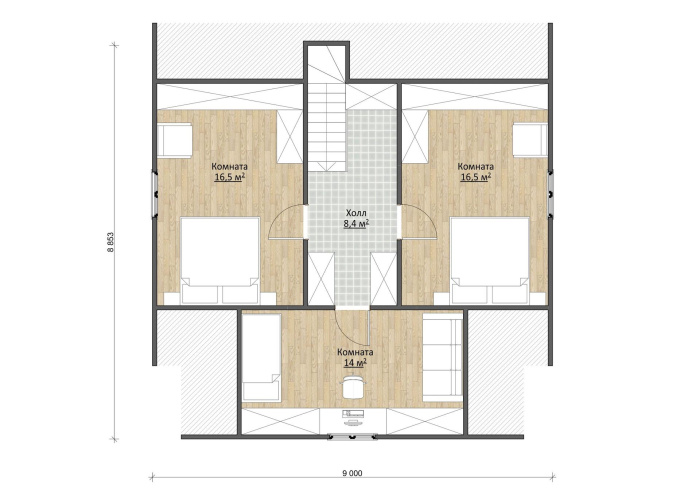
На втором этаже по обе стороны холла располагаются еще 3 комнаты: 14-метровая и две по 16,5 м². Здесь достаточно пространства для сна, работы или игр.

Стены и перекрытия имеют надежную ветрозащиту. Кровля из оцинкованного профиля или металлочерепицы оберегает помещения от непогоды. Дом можно оборудовать инженерными коммуникациями: провести электричество, отопление, водопровод, канализацию.

Проект предусматривает комплектации дома для эксплуатации в теплое время года и утепленные зимние варианты. В планировку можно вносить изменения и заказывать дополнительные услуги: пристройку веранды, расширение помещений, отделку стен, утепление, антисептическую обработку, био и огнезащиту конструкций.

Планировки дома *
Планировка 1
1-й этаж Планировка 1
2-й этаж Планировка 1
* Размеры и площади указаны без учета наружной и внутренней отделки и в разных комплектациях могут меняться (из-за толщины утеплителя, стен и перегородок). Подробности уточняйте у менеджера.
Комплектации
Осень Каркасная
2 595 000 р.
старая цена
2 316 000 р.
цена по акции до 30.09
2 687 000 р.
цена по ипотеке
3 165 000 р.
цена в рассрочку
233 753 р.

Пакет инженерные коммуникации. Подведение труб горячей и холодной воды, прокладка канализационных труб, водонагреватель. Устройство канализации внутри дома. Прокладка электропроводки в пластиковых коробах.

Заказать дом Смотреть комплектацию
Фундамент дома

Опорные столбы из бетонных блоков высотой 200 мм, на бетонной армированной плитке на песчаной подушке. Гидроизоляция фундамента. Замкнутая нижняя обвязка из ПМК.

Огнебиозащита, антисептирование

нет

Конструкция пола 1-го этажа

Толщина конструкции: 181мм. Настил пола ОСП-22 мм; пароизоляция Тераспан Б (или аналог); клееный Т-профиль 73х159 мм усиленной конструкции; минеральная вата Урса М11 (или аналог) 100мм; ветро-изоляционная мембрана Тераспан А (или аналог); черновой пол толщиной 10мм.

Утепление пола 1-го этажа

100 мм минеральной ватой.

Настил пола 1-го этажа

ОСП 22 мм

Стены 1 го этажа

Толщина стен 195 мм. Высота потолка 2.33 м (от балок пола до балок перекрытия), внутренняя обшивка ГКЛ по разряженной обрешетке из ПМК, пароизоляционная мембрана, ПМК, минеральная вата 150 мм, гидро-ветроизоляционная мембрана, наружная обшивка 12,5 мм (вагонка).

Перекрытие 1-го этажа

Толщина конструкции: 216,5 мм. Настил пола ОСП-22 мм; пароизоляция Тераспан Б (или аналог); ПМК(1); Минеральная вата Урса М11(или аналог) 50 мм; пароизоляция Тераспан Б (или аналог); обшивка ГКЛ 12,5 мм по разряженной обрешетке из ПМК(1).

Второй этаж

Толщина фронтонов 145мм. Толщина боковых стен 133 мм. Высота потолка 2.22 (от балок перекрытий до ригеля). Внутренняя обшивка ГКЛ по разряженной обрешетке из ПМК, пароизоляционная мембрана, ПМК, гидро-ветроизоляционная мембрана, наружная обшивка (вагонка) 12,5 мм (только фронтоны). По фронтонам устанавливаются отливы из оцинкованной стали. Утепление второго этажа 50 мм.

Перегородки

Толщина перегородок 169 мм. Обшивка ГКЛ по разряженной обрешетке из ПМК, обшивка ГКЛ по разряженной обрешетке из ПМК.

Кровля

Оцинкованный профилированный лист. Крепление кровельными саморезами.

Окна

Деревянные распашные, с одинарной рамой и одинарным остеклением.

Двери дома

Дверь строительная ПГ.

Лестница

Деревянная одномаршевая наборная.

Вентиляция

-

Электрика

-

Отопление

-

Водоподготовка

-

Канализация

-

Зима Каркасная
3 748 000 р.
старая цена
2 691 000 р.
цена по акции до 30.09
3 863 000 р.
цена по ипотеке
4 571 000 р.
цена в рассрочку
233 753 р.

Пакет инженерные коммуникации. Подведение труб горячей и холодной воды, прокладка канализационных труб, водонагреватель. Устройство канализации внутри дома. Прокладка электропроводки в пластиковых коробах.

Заказать дом Смотреть комплектацию
Фундамент дома

Свайно-винтовой (сваи D=108 мм, L=2500 мм). Гидроизоляция фундамента - рубероид в два слоя. Замкнутая нижняя обвязка толщиной 145 мм П/м(3) обработана огнебиозащитой. По фундаменту установлены отливы.

Огнебиозащита, антисептирование

Огнебиозащита нижней обвязки, лаг пола и чернового пола в 2 слоя.

Конструкция пола 1-го этажа

Толщина конструкции: 229 мм. Настил пола ОСП-22 мм; пароизоляция Тераспан Б (или аналог); клееный Т-профиль 73х207 мм усиленной конструкции; минеральная вата Урса М11 (или аналог) 200 мм; ветро-изоляционная мембрана Тераспан А (или аналог); черновой пол толщиной 10мм. Балки пола и черновой пол обработаны огнебиозащитой

Утепление пола 1-го этажа

200 мм минеральной ватой.

Настил пола 1-го этажа

ОСП 22 мм.

Стены 1 го этажа

Толщина стен 203,5 мм. Высота потолка 2,533 м. (от настила пола до балок перекрытия). Внутренняя обшивка 12,5 мм(2); пароизоляция Тераспан Б (или аналог); ПМК(1); минеральная вата Урса П15 (или аналог) 150мм; ветро-изоляционная мембрана Тераспан А (или аналог); наружная обшивка сайдинг Альта профиль «Аляска» (цвет Ивори) (стыковка внахлест) по ОСП-9, по вентфасаду ПМК(1)

Перекрытие 1-го этажа

Толщина конструкции: 181,5 мм. Настил пола ОСП-22 мм; пароизоляция Тераспан Б (или аналог); ПМК(1); Минеральная вата Урса М11(или аналог) 50 мм; пароизоляция Тераспан Б (или аналог); обшивка 12,5 мм

Второй этаж

Толщина фронтонов: 203,5 мм. Толщина боковых стен 159,5 мм., Высота потолка 2 433 мм (от настила пола до ригеля). Внутренняя обшивка 12,5 мм; пароизоляция Тераспан Б (или аналог);, ПМК(1); минеральная вата Урса П15, М11 (или аналог) 150м ветро-изоляционная мембрана Тераспан А; наружная обшивка сайдинг Альта профиль «Аляска» (цвет Ивори) (стыковка внахлест) по ОСП-9, по вентфасаду ПМК(1)

Перегородки

Толщина перегородок: 122 мм Обшивка 12.5 мм(2), ПМК(1 обшивка 12.5мм(2)

Кровля

Профилированный лист (цвет коричневый). Крепление кровельными саморезами. по обрешетке П/м(3), вентиляционный зазор ПМК(1), гидро-ветрозащитная мембрана Тераспан АМ (или аналог).

Окна

ПВХ двухкамерный стеклопакет, цвет белый. Под окнами установлены отливы (цвет белый)

Двери дома

Входная металлическая. Внутренние ламинированные.

Лестница

Деревянная одномаршевая наборная, с забежными ступенями (временная

Вентиляция

-

Электрика

-

Отопление

-

Водоподготовка

-

Канализация

-

ПМЖ Каркасная
4 606 000 р.
старая цена
4 607 000 р.
цена по акции до 30.09
4 738 000 р.
цена по ипотеке
5 617 000 р.
цена в рассрочку
233 753 р.

Пакет инженерные коммуникации. Подведение труб горячей и холодной воды, прокладка канализационных труб, водонагреватель. Устройство канализации внутри дома. Прокладка электропроводки в пластиковых коробах.

Заказать дом Смотреть комплектацию
Фундамент дома

Свайно-винтовой (сваи D=108 мм, L=2500 мм). Нижняя обвязка- труба профильная металлическая 120х80 мм; Гидроизоляция фундамента-рубероид в два слоя ; монтажная доска ПМК обработана огнебиозащитой. Отделка фундамента дома ОСП-9 по обрешетке, H=400 мм. По фундаменту установлены отливы (в цвет кровли).

Огнебиозащита, антисептирование

Огнебиозащита нижней обвязки, лаг пола и чернового пола в 2 слоя

Конструкция пола 1-го этажа

Толщина конструкции: 229мм. Настил пола ОСП-22 мм; пароизоляция Тераспан Б (или аналог); клееный Т-профиль 73х207 мм усиленной конструкции; минеральная вата Урса М11 (или аналог) 200мм; ветро-изоляционная мембрана Тераспан А (или аналог); черновой пол толщиной 10мм. Балки пола и черновой пол обработаны огнебиозащитой.

Утепление пола 1-го этажа

Дополнительное утепление пола 1 этажа до 200 мм минеральной ватой

Настил пола 1-го этажа

ОСП 22 мм

Стены 1 го этажа

Толщина стен 235 мм. Высота потолка 2.53 м. (от балок пола до балок перекрытия). Внутренняя обшивка 12.5мм; пароизоляционная мембрана; ПМК; повторитель стоек ПМК для перекрестного утепления; минеральная вата 200мм; гидро-ветроизоляционная мембрана; наружная обшивка сайдинг Альта профиль «Аляска» (цвета Сноу, Форест,Сэнд,Ивори) (стыковка внахлест) по контр-рейке, по ветрозащите, по ОСП-9

Перекрытие 1-го этажа

Толщина конструкции: 181,5 мм. Настил пола ОСП-22 мм; пароизоляция Тераспан Б (или аналог); ПМК(1); Минеральная вата Урса М11 (или аналог) 100 мм; пароизоляция Тераспан Б (или аналог); обшивка 12.5мм(2)

Второй этаж

Толщина фронтонов:235 мм. Толщина боковых стен 206 мм., Высота потолка 2.22 м. (от балок перекрытий до ригеля) Внутренняя обшивка 12.5м; пароизоляционная мембрана ; ПМК; повторитель стоек ПМК для перекрестного утепления; минеральная вата 200мм; гидро-ветроизоляционная мембрана; наружная обшивка сайдинг Альта профиль «Аляска» (цвета Сноу, Форест,Сэнд,Ивори) (стыковка внахлест) по контр-рейке, по ветрозащите, по ОСП-9 (только фронтоны).

Перегородки

Толщина перегородок: 122мм Обшивка 12.5мм, пароизоляционная мембрана, минеральная вата 100мм ПМК; обшивка 12.5мм

Кровля

Профиль СуперМонтеррей с устройством гидроизоляции подкровельного пространства. Крепление кровельными саморезами. Обрешетка 22мм.

Окна

ПВХ двухкамерный стеклопакет с москитными сетками. Под окнами устанавливаются отливы (цвет белый)

Двери дома

Входная металлическая. Внутренние ламинированные.

Лестница

Деревянная клееная с балясинами.

Вентиляция

(естественная) с/у и кухни Место установки изолированного вентиляционного выхода и вентиляционных решеток не регламентируется и определяется проектом

Электрика

-

Отопление

-

Водоподготовка

-

Канализация

-

ПМЖ+ Каркасная
5 314 000 р.
цена по акции до 30.09
5 460 000 р.
цена по ипотеке
6 480 000 р.
цена в рассрочку
841 145 р. АКЦИЯ *

Пакет инженерные коммуникации: отопление от электрокотла, горячее и холодное водоснабжение (монтаж внутри дома), канализация на 3-х пользователей, прокладка электропроводки в пластиковых коробах.

Заказать дом Смотреть комплектацию
Фундамент дома

Свайно-винтовой (сваи D=108 мм, L=2500 мм). Нижняя обвязка- труба профильная металлическая 120х80 мм; Гидроизоляция фундамента-рубероид в два слоя ; монтажная доска ПМК обработана огнебиозащитой. Отделка фундамента дома ОСП-9 по обрешетке, H=400 мм. По фундаменту установлены отливы (в цвет кровли).

Огнебиозащита, антисептирование

Огнебиозащита нижней обвязки, лаг пола и чернового пола в 2 слоя

Конструкция пола 1-го этажа

Толщина конструкции: 229мм. Настил пола ОСП-22 мм; пароизоляция Тераспан Б (или аналог); клееный Т-профиль 73х207 мм усиленной конструкции; минеральная вата Урса М11 (или аналог) 200мм; ветро-изоляционная мембрана Тераспан А (или аналог); черновой пол толщиной 10мм. Балки пола и черновой пол обработаны огнебиозащитой.

Утепление пола 1-го этажа

Дополнительное утепление пола 1 этажа до 200 мм минеральной ватой

Настил пола 1-го этажа

ОСП 22 мм

Стены 1 го этажа

Толщина стен 235 мм. Высота потолка 2.53 м. (от балок пола до балок перекрытия). Внутренняя обшивка 12.5мм; пароизоляционная мембрана; ПМК; повторитель стоек ПМК для перекрестного утепления; минеральная вата 200мм; гидро-ветроизоляционная мембрана; наружная обшивка сайдинг Альта профиль «Аляска» (цвета Сноу, Форест,Сэнд,Ивори) (стыковка внахлест) по контр-рейке, по ветрозащите, по ОСП-9

Перекрытие 1-го этажа

Толщина конструкции: 181,5 мм. Настил пола ОСП-22 мм; пароизоляция Тераспан Б (или аналог); ПМК(1); Минеральная вата Урса М11 (или аналог) 100 мм; пароизоляция Тераспан Б (или аналог); обшивка 12.5мм(2)

Второй этаж

Толщина фронтонов:235 мм. Толщина боковых стен 206 мм., Высота потолка 2.22 м. (от балок перекрытий до ригеля) Внутренняя обшивка 12.5м; пароизоляционная мембрана ; ПМК; повторитель стоек ПМК для перекрестного утепления; минеральная вата 200мм; гидро-ветроизоляционная мембрана; наружная обшивка сайдинг Альта профиль «Аляска» (цвета Сноу, Форест,Сэнд,Ивори) (стыковка внахлест) по контр-рейке, по ветрозащите, по ОСП-9 (только фронтоны).

Перегородки

Толщина перегородок: 122мм Обшивка 12.5мм, пароизоляционная мембрана, минеральная вата 100мм ПМК; обшивка 12.5мм

Кровля

Профиль СуперМонтеррей с устройством гидроизоляции подкровельного пространства. Крепление кровельными саморезами. Обрешетка 22мм.

Окна

ПВХ двухкамерный стеклопакет с москитными сетками. Под окнами устанавливаются отливы (цвет белый)

Двери дома

Входная металлическая. Внутренние ламинированные.

Лестница

Деревянная клееная с балясинами.

Вентиляция

(естественная) с/у и кухни Место установки изолированного вентиляционного выхода и вентиляционных решеток не регламентируется и определяется проектом

Электрика

Прокладка электропроводки в пластиковых коробах

Отопление

Электрическое отопление. Двухтрубная система отопления, алюминиевые радиаторы, запорная арматура, электрический котёл.

Водоподготовка

Разводка по дому горячего и холодного водоснабжения до точки пользования с запорнрй арматурой. Водонагреватель ГВС на 50л.

Канализация

Канализация включает в себя разводку канализационных труб для обеспечения слива воды под каждую точку водоразбора, в том числе под унитаз. Септик. Залповый сброс 150 л. Производительность 0,6 куб. м. в сутки. Количество пользователей — 3 чел. Потребляемая мощность 2 кВт сутки.

В любую комплектацию возможно внести изменения!

Доставка свыше 100 км от производственной базы (Московская область, г. Бронницы, с. Заворово):
дом с блочным фундаментом 915 руб./км
дом со свайно-винтовым фундаментом 1052 руб./км
Дом со свайно-забивным (ЖБИ) фундаментом 1096 руб./км
Фотообзор
Фотообзор Богатырь 9x9 с террасой - 1

Любите принимать гостей? Тогда Богатырь 9х9 — ваш вариант!

Фотообзор Богатырь 9x9 с террасой - 2

Дом большой, имеет 5 комнат, так что всем хватит места. 

Фотообзор Богатырь 9x9 с террасой - 3

Дом построен из высококачественной древисины, которая прослужит долгие годы.

Отправить заявку на проект
Комплектация
Не важно
  • Осень
  • Зима
  • ПМЖ
  • ПМЖ+
Город*
Выберите город
  • Москва и область
  • Рязань и область
  • Другой
Планировка
Выберите планировку
  • Планировка 1