Дачник 6х8 Барн

от 1 859 000р.

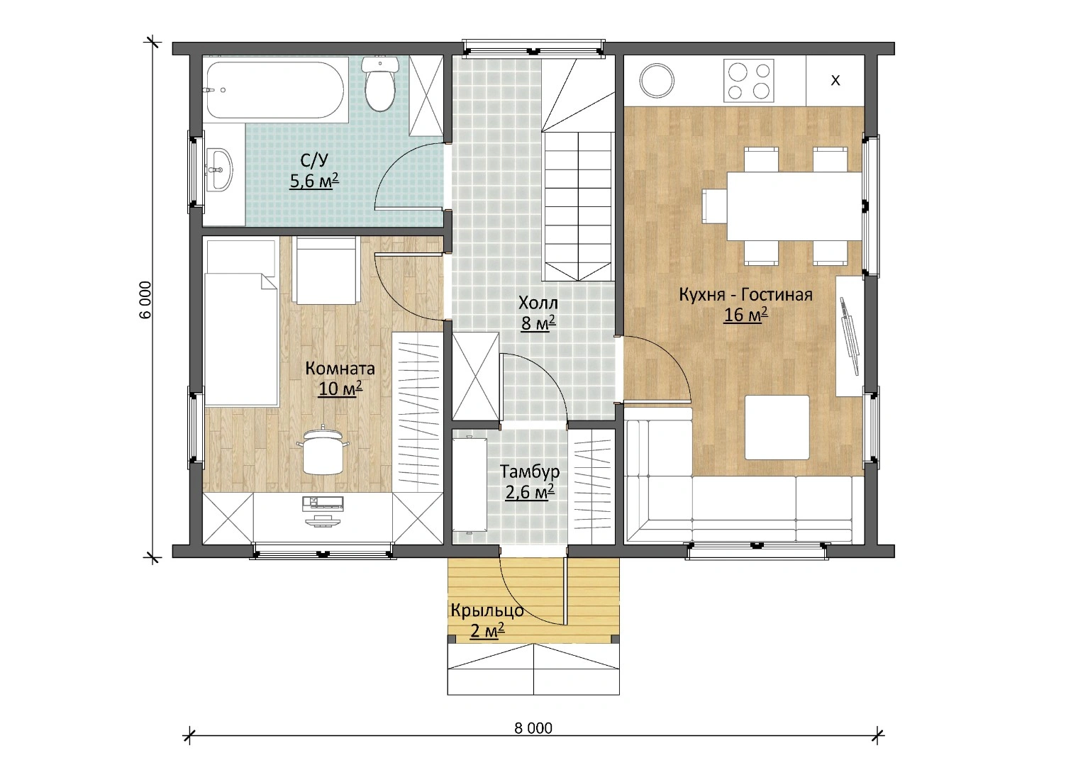
Дом по современному проекту в стиле Барн с несколькими просторными комнатами, который возводится от 15 дней даже на небольшом дачном участке. Общая площадь застройки — 50 м², жилая увеличивается за счет просторных помещений второго этажа. Внизу расположены большой холл, гостиная с оборудованной кухонной зоной, санузел и дополнительное помещение, в котором можно организовать кабинет или спальню. Вход в дом защищен тамбуром. Второй этаж вмещает еще две комнаты площадью 15,2 и 13,7 м².

Эффектные панорамные окна, выполненные из качественного ПВХ-профиля, гарантируют полноценную инсоляцию в любое время года. От холодов, ветра и проникновения влаги здание защищает продуманная конструкция: свайно-винтовой фундамент, утепление перекрытий и стен из современного материала URSA M-11, кровля из практичной металлочерепицы. Древесина проходит обработку антисептическими составами и средствами, повышающими уровень огнезащиты.

В доме можно провести водопровод и канализацию по выбранному варианту. Для отделки внутреннего пространства и фасада строения предлагаются экологичные дышащие краски. По желанию стены дома можно обшить сайдингом, изменить внутреннюю планировку, комплектацию и пристроить веранду.

Планировки дома *
Планировка 1
1-й этаж Планировка 1
2-й этаж Планировка 1
* Размеры и площади указаны без учета наружной и внутренней отделки и в разных комплектациях могут меняться (из-за толщины утеплителя, стен и перегородок). Подробности уточняйте у менеджера.
Комплектации
Осень Каркасная
2 616 000 р.
старая цена
1 859 000 р.
цена по акции до 30.09
2 708 000 р.
цена по ипотеке
3 190 000 р.
цена в рассрочку
207 606 р.

Пакет инженерные коммуникации. Подведение труб горячей и холодной воды, прокладка канализационных труб, водонагреватель. Устройство канализации внутри дома. Прокладка электропроводки в пластиковых коробах.

Заказать дом Смотреть комплектацию
Фундамент дома

Опорные столбы из бетонных блоков высотой 200 мм, на бетонной армированной плитке на песчаной подушке. Гидроизоляция фундамента. Замкнутая нижняя обвязка из ПМК.

Огнебиозащита, антисептирование

нет

Конструкция пола 1-го этажа

Толщина конструкции: 181мм. Настил пола ОСП-22 мм; пароизоляция Тераспан Б (или аналог); клееный Т-профиль 73х159 мм усиленной конструкции; минеральная вата Урса М11 (или аналог) 100мм; ветро-изоляционная мембрана Тераспан А (или аналог); черновой пол толщиной 10мм.

Утепление пола 1-го этажа

Утепление пола 1 этажа 100 мм минеральной ватой.

Настил пола 1-го этажа

ОСП 22мм.

Стены

Толщина стен min 172 мм max 201 мм. Высота потолка 2.33 м. (от балок пола до балок перекрытия) внутренняя обшивка 12,5 мм (вагонка), пароизоляционная мембрана, ПМК, минеральная вата 150 мм, гидро-ветроизоляционная мембрана, наружная обшивка стен со стороны фронтонов комбинированная, обшивка 12,5 мм (вагонка), обшивка профнастилом, стен со стороны скатов крыши профнастилом по обрешетке, по бруску вентфасада ПМК.

Перекрытие 1-го этажа

Толщина конструкции: 181,5 мм. Настил пола ОСП-22 мм; пароизоляция Тераспан Б (или аналог); ПМК(1); Минеральная вата Урса М11 (или аналог) 50 мм; пароизоляция Тераспан Б (или аналог); обшивка 12,5 мм(2);

Второй этаж

Толщина фронтонов 122 мм. Толщина боковых стен 109 мм. Внутренняя обшивка 12,5 мм(вагонка), пароизоляционная мембрана, ПМК, гидро-ветроизоляционная мембрана, наружная обшивка комбинированная обшивка 12,5 мм (вагонка), обшивка профнастилом (только фронтоны). Утепление второго этажа 50 мм.

Перегородки

Толщина конструкции 100 мм. Обшивка 12,5 мм, ПМК.

Кровля

Профилированный лист (цвет коричневый, зеленый, красный). Крепление кровельными саморезами.

Окна

Окна ПВХ однокамерный стеклопакет.

Двери дома

Дверь строительная ПГ.

Лестница

Деревянная одномаршевая наборная.

Вентиляция

-

Электрика

-

Отопление

-

Водоподготовка

-

Канализация

-

Зима Каркасная
2 957 000 р.
старая цена
2 820 000 р.
цена по акции до 30.09
3 056 000 р.
цена по ипотеке
3 606 000 р.
цена в рассрочку
207 606 р.

Пакет инженерные коммуникации. Подведение труб горячей и холодной воды, прокладка канализационных труб, водонагреватель. Устройство канализации внутри дома. Прокладка электропроводки в пластиковых коробах.

Заказать дом Смотреть комплектацию
Фундамент дома

Свайно-винтовой (сваи D=108 м, L=2500 мм) в подарок. Гидроизоляция фундамента. Замкнутая нижняя обвязка из ПМК.

Огнебиозащита, антисептирование

Огнебиозащита нижней обвязки, лаг пола и чернового пола в 2 слоя.

Конструкция пола 1-го этажа

Толщина конструкции: 181мм. Настил пола ОСП-22 мм; пароизоляция Тераспан Б (или аналог); клееный Т-профиль 73х159 мм усиленной конструкции; минеральная вата Урса М11 (или аналог) 150мм; ветро-изоляционная мембрана Тераспан А (или аналог); черновой пол толщиной 10мм. Балки пола и черновой пол обработаны огнебиозащитой.

Утепление пола 1-го этажа

Утепление пола 1 этажа 150 мм минеральной ватой.

Настил пола 1-го этажа

ОСП 22мм.

Стены

Толщина стен min 172 мм max 201 мм. Высота потолка 2.33 м (от балок пола до балок перекрытия) внутренняя обшивка 12,5 мм (вагонка), пароизоляционная мембрана, ПМК, минеральная вата 150 мм, гидро-ветроизоляционная мембрана, наружная обшивка стен со стороны фронтонов комбинированная, обшивка 12,5 мм(вагонка), обшивка профнастилом, стен со стороны скатов крыши профнастилом по обрешетке, по бруску вентфасада ПМК.

Перекрытие 1-го этажа

Толщина конструкции: 181,5 мм. Настил пола ОСП-22 мм; пароизоляция Тераспан Б (или аналог); ПМК(1); Минеральная вата Урса М11 (или аналог) 50 мм; пароизоляция Тераспан Б (или аналог); обшивка 12,5 мм(2);

Второй этаж

Толщина фронтонов 122 мм. Толщина боковых стен 109 мм. Высота потолка переменная min 1600 мм max 3600 мм (от балок перекрытий до ригеля). Внутренняя обшивка 12,5 мм (вагонка), пароизоляционная мембрана, ПМК, гидро-ветроизоляционная мембрана, наружная обшивка комбинированная, обшивка 12,5 мм (вагонка), обшивка профнастилом (только фронтоны). Утепление второго этажа 100 мм.

Перегородки

Толщина конструкции 100 мм. Обшивка 12,5 мм, ПМК.

Кровля

Профилированный лист (цвет коричневый, зеленый, красный). Крепление кровельными саморезами.

Окна

Окна ПВХ однокамерный стеклопакет.

Двери дома

Дверь строительная ПГ.

Лестница

Клееная с резными балясинами.

Вентиляция

-

Электрика

-

Отопление

-

Водоподготовка

-

Канализация

-

ПМЖ Каркасная
3 495 000 р.
старая цена
2 638 000 р.
цена по акции до 30.09
3 536 000 р.
цена по ипотеке
4 262 000 р.
цена в рассрочку
207 606 р.

Пакет инженерные коммуникации. Подведение труб горячей и холодной воды, прокладка канализационных труб, водонагреватель. Устройство канализации внутри дома. Прокладка электропроводки в пластиковых коробах.

Заказать дом Смотреть комплектацию
Фундамент дома

Свайно-винтовой (сваи D=108 мм, L=2500 мм). Нижняя обвязка- труба профильная металлическая 120х80 мм; Гидроизоляция фундамента-рубероид в два слоя ; монтажная доска ПМК обработана огнебиозащитой. Отделка фундамента дома ОСП-9 по обрешетке, H=400 мм. По фундаменту установлены отливы (в цвет кровли).

Огнебиозащита, антисептирование

Огнебиозащита нижней обвязки, лаг пола и чернового пола в 2 слоя.

Конструкция пола 1-го этажа

Толщина конструкции: 229 мм., Настил пола ОСП-22 мм; пароизоляция Тераспан Б (или аналог); клееный Т-профиль 73х207 мм усиленной конструкции; минеральная вата Урса М11 (или аналог) 200мм; ветро-изоляционная мембрана Тераспан А (или аналог); черновой пол толщиной 10мм; Балки пола и черновой пол обработаны огнебиозащитой.

Утепление пола 1-го этажа

Минеральная вата 200 мм.

Настил пола 1-го этажа

ОСП 22мм.

Стены

Толщина стен min 238 мм max 258 мм. Высота потолка 2.33 м (от балок пола до балок перекрытия), внутренняя обшивка 12.5 мм, пароизоляционная мембрана, ПМК, повторитель стоек ПМК для перекрестного утепления, минеральная вата 200 мм, гидро-ветроизоляционная мембрана, наружная обшивка стен со стороны фронтонов, обшивка 12,5 мм, со стороны скатов крыши профнастилом по обрешетке, по бруску вентфасада ПМК.

Перекрытие 1-го этажа

Толщина конструкции: 181,5 мм. Настил пола ОСП-22 мм; пароизоляция Тераспан Б (или аналог); ПМК(1); Минеральная вата Урса М11 (или аналог) 100 мм; пароизоляция Тераспан Б (или аналог); обшивка 12,5 мм(2);

Второй этаж

Толщина стен min 238 мм max 258 мм. Высота потолка переменная. Внутренняя обшивка 12,5 мм, пароизоляционная мембрана, ПМК, повторитель стоек ПМК для перекрестного утепления, минеральная вата 200 мм, гидро-ветроизоляционная мембрана, наружная обшивка стен со стороны фронтонов, обшивка 12,5 мм, со стороны скатов крыши профнастилом по обрешетке, по бруску вентфасада ПМК.

Перегородки

Толщина перегородок 122 мм. Обшивка 12.5 мм, пароизоляционная мембрана, минеральная вата 100 мм, ПМК, обшивка 12.5 мм.

Кровля

Профилированный лист (цвет коричневый, зеленый, красный). Крепление кровельными саморезами.

Окна

ПВХ двухкамерный стеклопакет с москитными сетками. Под окнами устанавливаются отливы (цвет белый).

Двери дома

Входная металлическая. Внутренние ламинированные.

Лестница

Лестница клееная с резными балясинами и поручнем.

Вентиляция

Естественная, с/у и кухни. Место установки изолированного вентиляционного выхода и вентиляционных решеток не регламентируется и определяется проектом.

Электрика

-

Отопление

-

Водоподготовка

-

Канализация

-

ПМЖ+ Каркасная
4 183 000 р.
цена по акции до 30.09
4 307 000 р.
цена по ипотеке
5 101 000 р.
цена в рассрочку
710 153 р. АКЦИЯ *

Пакет инженерные коммуникации: отопление от электрокотла, горячее и холодное водоснабжение (монтаж внутри дома), канализация Септик Евролос, прокладка электропроводки в пластиковых коробах.

Заказать дом Смотреть комплектацию
Фундамент дома

Свайно-винтовой (сваи D=108 мм, L=2500 мм). Нижняя обвязка- труба профильная металлическая 120х80 мм; Гидроизоляция фундамента-рубероид в два слоя ; монтажная доска ПМК обработана огнебиозащитой. Отделка фундамента дома ОСП-9 по обрешетке, H=400 мм. По фундаменту установлены отливы (в цвет кровли).

Огнебиозащита, антисептирование

Огнебиозащита нижней обвязки, лаг пола и чернового пола в 2 слоя.

Конструкция пола 1-го этажа

Толщина конструкции: 229 мм., Настил пола ОСП-22 мм; пароизоляция Тераспан Б (или аналог); клееный Т-профиль 73х207 мм усиленной конструкции; минеральная вата Урса М11 (или аналог) 200мм; ветро-изоляционная мембрана Тераспан А (или аналог); черновой пол толщиной 10мм; Балки пола и черновой пол обработаны огнебиозащитой.

Утепление пола 1-го этажа

Минеральная вата 200 мм.

Настил пола 1-го этажа

ОСП 22мм.

Стены

Толщина стен min 238 мм max 258 мм. Высота потолка 2.33 м (от балок пола до балок перекрытия). Внутренняя обшивка 12.5 мм, пароизоляционная мембрана, ПМК, повторитель стоек ПМК для перекрестного утепления, минеральная вата 200 мм, гидро-ветроизоляционная мембрана, наружная обшивка стен со стороны фронтонов, обшивка 12,5 мм, со стороны скатов крыши профнастилом по обрешетке, по бруску вентфасада ПМК.

Перекрытие 1-го этажа

Толщина конструкции: 181,5 мм. Настил пола ОСП-22 мм; пароизоляция Тераспан Б (или аналог); ПМК(1); Минеральная вата Урса М11 (или аналог) 100 мм; пароизоляция Тераспан Б (или аналог); обшивка 12,5 мм(2);

Второй этаж

Толщина стен min 238 мм max 258 мм. Высота потолка переменная. Внутренняя обшивка 12,5 мм, пароизоляционная мембрана, ПМК, повторитель стоек ПМК для перекрестного утепления, минеральная вата 200 мм, гидро-ветроизоляционная мембрана, наружная обшивка стен со стороны фронтонов, обшивка 12,5 мм, со стороны скатов крыши профнастилом по обрешетке, по бруску вентфасада ПМК.

Перегородки

Толщина перегородок 122 мм. Обшивка 12.5 мм, пароизоляционная мембрана, минеральная вата 100 мм, ПМК, обшивка 12.5 мм.

Кровля

Профилированный лист (цвет коричневый, зеленый, красный). Крепление кровельными саморезами.

Окна

ПВХ двухкамерный стеклопакет с москитными сетками. Под окнами устанавливаются отливы (цвет белый).

Двери дома

Входная металлическая. Внутренние ламинированные.

Лестница

Лестница клееная с резными балясинами и поручнем.

Вентиляция

Естественная, с/у и кухни. Место установки изолированного вентиляционного выхода и вентиляционных решеток не регламентируется и определяется проектом.

Электрика

Прокладка электропроводки в пластиковых коробах.

Отопление

Электрическое отопление. Двухтрубная система отопления, алюминиевые радиаторы, запорная арматура, электрический котёл.

Водоподготовка

Разводка по дому горячего и холодного водоснабжения до точки пользования с запорной арматурой. Водонагреватель ГВС на 50л.

Канализация

Канализация включает в себя разводку канализационных труб для обеспечения слива воды под каждую точку водоразбора, в том числе под унитаз. Септик. Залповый сброс 150 л. Производительность 0,6 куб. м. в сутки. Количество пользователей — 3 чел. Потребляемая мощность 2 кВт сутки.

В любую комплектацию возможно внести изменения!

Доставка свыше 100 км от производственной базы (Московская область, г. Бронницы, с. Заворово):
Дом с блочным фундаментом 554 руб./км
Дом со свайным фундаментом 691 руб./км
Дом со свайно-забивным (ЖБИ) фундаментом 735 руб./км
Фотообзор
Фотообзор Дачник 6х8 Барн - 1

Двухэтажный дом со стильным фасадом из профлиста впишется в любой ландшафт и прилегающую местность. 

Фотообзор Дачник 6х8 Барн - 2

Гостиная с прекрасным видом через панарамные окна — предел мечтаний для любителей эстетики. 

Фотообзор Дачник 6х8 Барн - 3

Лестница на второй этаж удобная и компактная.

Фотообзор Дачник 6х8 Барн - 4

Санузел полностью рабочий, водоснабжение проведено. Так что, принимать водные процедуры здесь одно удовольствие!

Фотообзор Дачник 6х8 Барн - 5

На втором этаже отлично впишется в интерьер зона отдыха. Только представьте, как хорошо здесь вы проведете время со своими близкими!

Отправить заявку на проект
Комплектация
Не важно
  • Осень
  • Зима
  • ПМЖ
  • ПМЖ+
Город*
Выберите город
  • Москва и область
  • Рязань и область
  • Другой
Планировка
Выберите планировку
  • Планировка 1