Фаворит 6х9 П135

от 2 251 456р.

Комфортабельный загородный доме в полтора этажа, общей площадью 94,2 м², с прекрасной планировкой: четыре спальни, терраса, два санузла и просторная кухня-гостиная. Вариантов комплектации в проекте несколько и в любой можно внести изменения. Срок возведения под ключ — от 15 дней.

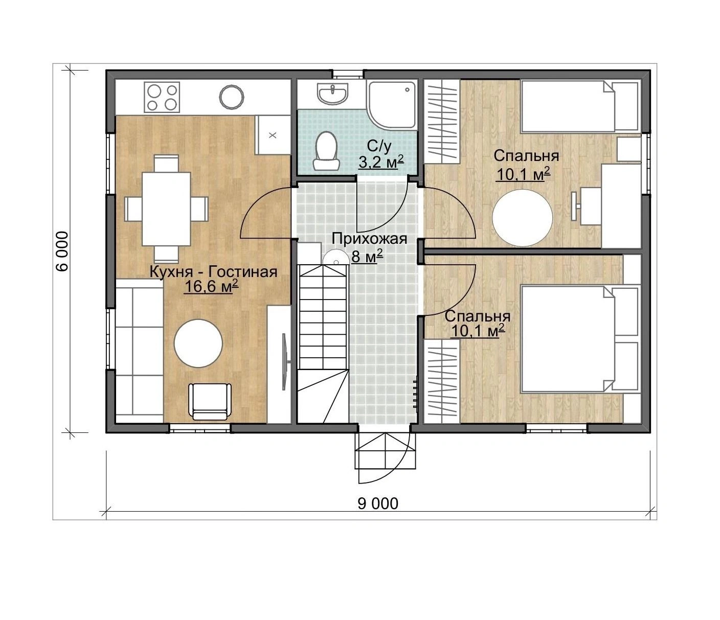
На первом этаже расположены удобная прихожая и гардеробная. Просторный 7,6-метровый холл открывает вход в большую 18,9-метровую кухню, совмещенную с гостиной – мечта хозяйки! Изолированная комната площадью 8,9 м² будет удобной спальней или кабинетом.

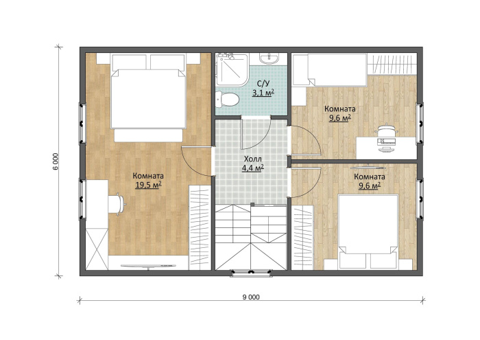
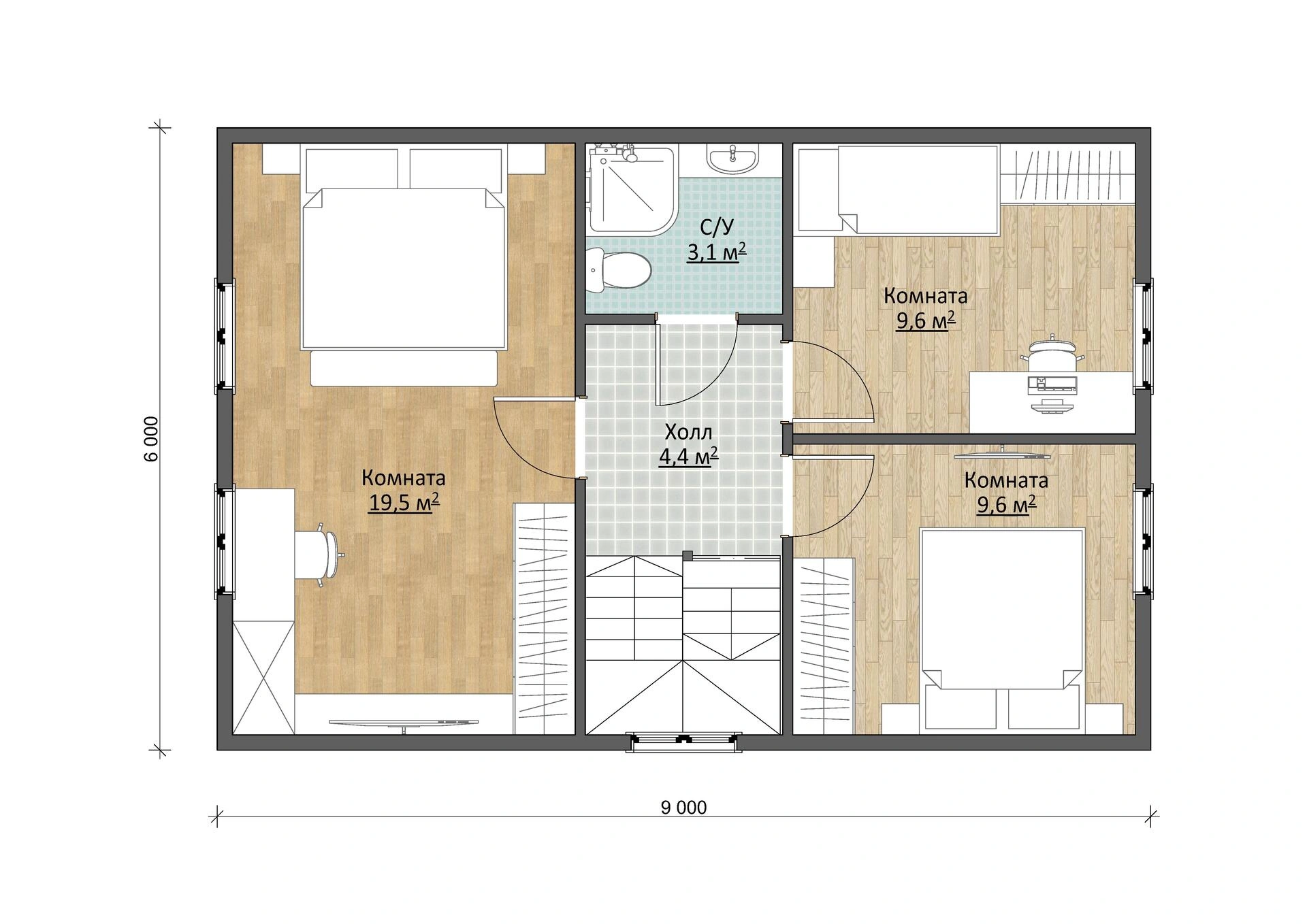
Наверху еще одна просторная комната в 19,5 м² и две поменьше — площадью в 9,6 м². На этаже имеется отдельный холл и еще одна ванная комната.

Не забывайте про дополнительные услуги. Например, фасады дома можно обшить сайдингом, заказать покраску помещений в желаемой цветовой гамме или выбрать свайно-винтовой фундамент. А также благоустроить жилье, проведя инженерные коммуникации. Менеджер в зависимости от ваших пожеланий предложит оптимальную комплектацию проекта и набор дополнительных опций.

Планировки *
Планировка 1 Планировка 3 Планировка 5
1-й этаж Планировка 1
2-й этаж Планировка 1
* Размеры и площади указаны без учета наружной и внутренней отделки и в разных комплектациях могут меняться (из-за толщины утеплителя, стен и перегородок). Подробности уточняйте у менеджера.
1-й этаж Планировка 1
2-й этаж Планировка 1
* Размеры и площади указаны без учета наружной и внутренней отделки и в разных комплектациях могут меняться (из-за толщины утеплителя, стен и перегородок). Подробности уточняйте у менеджера.
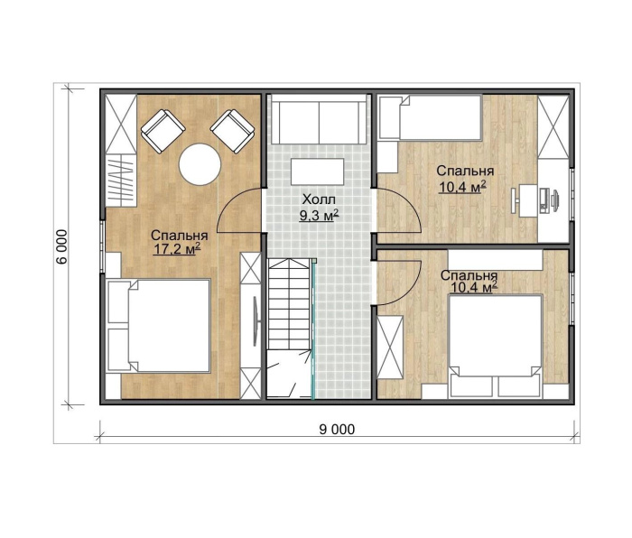
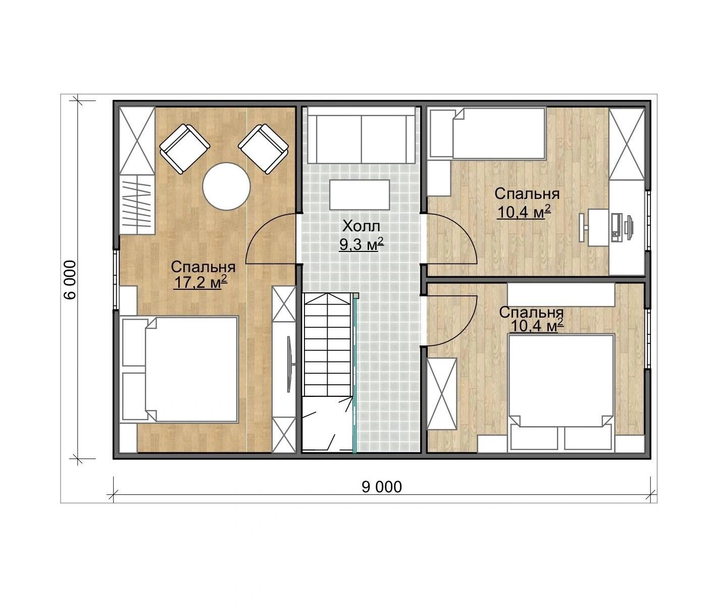
1-й этаж Планировка 1
2-й этаж Планировка 1
* Размеры и площади указаны без учета наружной и внутренней отделки и в разных комплектациях могут меняться (из-за толщины утеплителя, стен и перегородок). Подробности уточняйте у менеджера.
Комплектации
Осень Каркасная
2 277 800 р.
цена по акции до 30.09
2 363 356 р.
цена по ипотеке
2 732 814 р.
цена в рассрочку
737 000 р.

Полный пакет инженерного оборудования

Заказать дом Комплектация
Внутренняя отделка 1 этажа

Внутренняя отделка 1 этажа стен (высота потолка 2500 мм) и потолков гипсокартоном по разряженной обрешётке ПМК

Внутренняя отделка 2 этажа

Внутренняя отделка 2 этажа стен и потолков гипсокартоном по разряженной обрешётке ПМК (высота потолка 2400 мм)

Настил пола 1 этажа

Настил пола 1 этажа ОСП 22 мм

Настил пола 2 этажа

Настил пола 2 этажа ОСП 22 мм

Настил пола террасы, крыльца

Настил пола террасы, крыльца ПМК 27х90 с фаской

Фундамент дома

Фундамент столбчатый H=200 мм (в один блок)

Нижняя обвязка дома

Нижняя обвязка п/м 95х145 мм на столбчатый фундамент

МОНТАЖНАЯ ЛЕСТНИЦА

МОНТАЖНАЯ ЛЕСТНИЦА

СКОБЯНКА

Скобянка

Конструкция пола 1 этажа

Клееный Т-профиль 73х159 мм усиленной конструкции при настиле пола ОСП 22

Наружные стены 1 этажа

Наружные стены 1 этажа (высота потолка 2500)

Перегородки 1 этажа

Перегородки 1 этажа (высота потолка 2500 мм)

Конструкция перекрытия 1 этажа

Балки перекрытия ПМК 147 при настиле пола ОСП-22 мм

Конструктив фронтонов дома (двускатная крыша)

Фронтоны дома ПМК 97 мм

Наружные стены 2 этажа

Боковые стены дома ПМК 97 мм

Перегородки 2 этажа (двухскатная кровля)

Перегородки 2 этажа (высота потолка 2400 мм)

Стропильная система дома (двускатная крыша)

Стропильная система дома (двускатная крыша)

Кровля

Профнастил оцинкованный с устройством гидроизоляции и вентиляции подкровельного пространства

Водоотлив подоконный

Водоотлив подоконный 56 мм оцинкованный

Наружная отделка дома (двухскатная кровля)

Наружная отделка дома (высота потолка 2500 мм) обшивкой 12,5 мм Сорт В

Утепление пола 1 этажа

Утепление пола 1 этажа 100 мм минеральной ватой

Утепление наружных стен 1 этажа

Утепление стен 1 этажа минеральной ватой (плитный утеплитель) 150 мм (высота потолка 2500 мм)

Утепление перекрытия 1 этажа

Утепление потолка 1 этажа 50 мм минеральной ватой

Утепление 2 этажа (двухскатная кровля)

Утепление 2 этажа минеральной ватой 50 мм (высота потолка 2400 мм)

Окна

Окна ОДО (деревянное, 2 ост.)

Основной вход

Дверь входная металлическая ДМ 2060х860 правая

Двери внутренние

Двери внутренние ламинированные

Лестница межэтажная

Лестница двухмаршевая

Лестница наружная

Входные ступени

Доставка
    Доставка свыше 100 км от производственной базы (Московская область, г. Бронницы, с. Заворово):
  • Без фундамента 801 руб./км
  • Cо свайно-винтовым фундаментом 937 руб./км
  • Cо свайно-забивным (ЖБИ) фундаментом 1 003 руб./км
Зима 2025 Каркасная
3 047 804 р.
цена по акции до 30.09
3 148 760 р.
цена по ипотеке
3 656 634 р.
цена в рассрочку
737 000 р.

Полный пакет инженерного оборудования

Заказать дом Комплектация
Внутренняя отделка 1 этажа

Внутренняя отделка 1 этажа стен (высота потолка 2500 мм) (горизонтально) и потолков обшивкой 12,5 мм Сорт В

Внутренняя отделка 2 этажа

Внутренняя отделка 2 этажа стен (горизонтально) и потолков обшивкой 12,5 мм Сорт В (высота потолка 2400 мм)

Настил пола 1 этажа

Настил пола 1 этажа ОСП 22 мм

Настил пола 2 этажа

Настил пола 2 этажа ОСП 22 мм

Настил пола террасы, крыльца

Настил пола террасы, крыльца ПМК 27х90 с фаской

Фундамент дома

Фундамент свайно-винтовой (сваи D=108 м,L=2500 мм)

Нижняя обвязка дома

Нижняя обвязка п/м 145х145 мм на свайный фундамент

МОНТАЖНАЯ ЛЕСТНИЦА

МОНТАЖНАЯ ЛЕСТНИЦА

СКОБЯНКА

Скобянка

Конструкция пола 1 этажа

Клееный Т-профиль 73х207 мм усиленной конструкции при настиле пола ОСП 22 мм

Наружные стены 1 этажа

Наружные стены 1 этажа (высота потолка 2500)

Перегородки 1 этажа

Перегородки 1 этажа (высота потолка 2500 мм)

Конструкция перекрытия 1 этажа

Балки перекрытия ПМК 147 при настиле пола ОСП-22 мм

Конструктив фронтонов дома (двускатная крыша)

Фронтоны дома ПМК 147 мм

Наружные стены 2 этажа

Боковые стены дома ПМК 147 мм

Перегородки 2 этажа (двухскатная кровля)

Перегородки 2 этажа (высота потолка 2400 мм)

Стропильная система дома (двускатная крыша)

Стропильная система дома (двускатная крыша)

Кровля

Профнастил (коричневый RAL 8017) с устройством гидроизоляции и вентиляции подкровельного пространства

Водоотлив фундаментный

Водоотлив фундаментный 90 мм (коричневый RAL 8017)

Водоотлив подоконный

Водоотлив подоконный 90 мм (белый)

Наружная отделка дома (двухскатная кровля)

Наружная отделка дома (высота потолка 2500 мм): сайдинг Аляска (Ивори)(при установке отливов под окнами и по фундаменту)

Утепление пола 1 этажа

Утепление пола 1 этажа 200 мм минеральной ватой при балках пола: клееный Т-профиль 73х207

Утепление наружных стен 1 этажа

Утепление стен 1 этажа минеральной ватой (плитный утеплитель) 150 мм (высота потолка 2500 мм)

Утепление перекрытия 1 этажа

Утепление потолка 1 этажа 50 мм минеральной ватой

Утепление 2 этажа (двухскатная кровля)

Утепление 2 этажа минеральной ватой 150 мм (высота потолка 2400 мм) потолок 200 мм

Окна

Окна ПВХ (двухкамерный стеклопакет, поворотно-откидное)

Основной вход

Дверь входная металлическая ДМ 2060х860 правая

Двери внутренние

Двери внутренние ламинированные

Лестница межэтажная

Лестница двухмаршевая

Лестница наружная

Входные ступени

Доставка
    Доставка свыше 100 км от производственной базы (Московская область, г. Бронницы, с. Заворово):
  • Без фундамента 801 руб./км
  • Cо свайно-винтовым фундаментом 937 руб./км
  • Cо свайно-забивным (ЖБИ) фундаментом 1 003 руб./км
ПМЖ 2025 Каркасная
3 869 287 р.
цена по акции до 30.09
3 986 673 р.
цена по ипотеке
4 642 216 р.
цена в рассрочку
737 000 р.

Полный пакет инженерного оборудования

Заказать дом Комплектация
Внутренняя отделка 1 этажа

Внутренняя отделка 1 этажа стен (высота потолка 2500 мм) (горизонтально) и потолков обшивкой 12,5 мм Сорт В

Внутренняя отделка 2 этажа

Внутренняя отделка 2 этажа стен (горизонтально) и потолков обшивкой 12,5 мм Сорт В (высота потолка 2400 мм)

Настил пола 1 этажа

Настил пола 1 этажа ОСП 22 мм

Настил пола 2 этажа

Настил пола 2 этажа ОСП 22 мм

Настил пола террасы, крыльца

Настил пола террасы, крыльца ПМК 27х90 с фаской

Фундамент дома

Фундамент свайно-винтовой (сваи D=108 м,L=2500 мм)

Нижняя обвязка дома

Нижняя обвязка: труба профильная металлическая 120х80 на свайный фундамент (38х97 монтажная доска)

Отделка фундамента

Отделка фундамента (сваи винтовые) дома ОСП-9 H=400 мм (при установке отливов по фундаменту)

МОНТАЖНАЯ ЛЕСТНИЦА

МОНТАЖНАЯ ЛЕСТНИЦА

СКОБЯНКА

Скобянка

Конструкция пола 1 этажа

Клееный Т-профиль 73х207 мм усиленной конструкции при настиле пола ОСП 22 мм

Наружные стены 1 этажа

Наружные стены 1 этажа (высота потолка 2500) ПМК 38

Перегородки 1 этажа

Перегородки 1 этажа (высота потолка 2500 мм) ПМК 38

Конструкция перекрытия 1 этажа

Балки перекрытия ПМК 38х147 при настиле пола ОСП-22 мм

Конструктив фронтонов дома (двускатная крыша)

Фронтоны дома ПМК 38х147

Наружные стены 2 этажа

Боковые стены дома ПМК 38х147 мм

Перегородки 2 этажа (двухскатная кровля)

Перегородки 2 этажа (высота потолка 2400 мм) ПМК 38

Стропильная система дома (двускатная крыша)

Стропильная система дома (двускатная крыша) ПМК 38х147 мм

Кровля

Профиль"СуперМонтеррей" (коричневый RAL 8017) с устройством гидроизоляции и вентиляции подкровельного пространства

Водоотлив фундаментный

Водоотлив фундаментный 90 мм (коричневый RAL 8017)

Водоотлив подоконный

Водоотлив подоконный 90 мм (белый)

Инженерное оборудование

Комплект вентиляции (металлочерепица (коричневый RAL 8017))

Наружная отделка дома (двухскатная кровля)

Наружная отделка дома (высота потолка 2500 мм): сайдинг Аляска (Ивори)(при установке отливов под окнами и по фундаменту)

Утепление пола 1 этажа

Утепление пола 1 этажа 200 мм минеральной ватой при балках пола: клееный Т-профиль 73х207

Утепление наружных стен 1 этажа

Утепление стен 1 этажа минеральной ватой (плитный утеплитель) 200 мм (высота потолка 2500 мм) с увеличением толщины каркаса стены до 194 мм

Звукоизоляция перегородок 1 этажа

Звукоизоляция перегородок 1 этажа минеральной ватой (плитный утеплитель) 100 мм (высота потолка 2500 мм)

Утепление перекрытия 1 этажа

Утепление потолка 1 этажа 100 мм минеральной ватой

Утепление 2 этажа (двухскатная кровля)

Утепление 2 этажа минеральной ватой 200 мм (высота потолка 2400 мм)

Звукоизоляция перегородок 2 этажа (двухскатная кровля)

Звукоизоляция перегородок 2 этажа минеральной ватой (плитный утеплитель) 100 мм (высота потолка 2400 мм)

Москитные сетки

Москитные сетки (цвет: белый)

Окна

Окна ПВХ (двухкамерный стеклопакет, поворотно-откидное)

Основной вход

Дверь входная металлическая ДМ 2060х860 правая

Двери внутренние

Двери внутренние ламинированные

Лестница межэтажная

Лестница клееная двухмаршевая (высота потолка 2500 мм)

Лестница наружная

Входные ступени

Доставка
    Доставка свыше 100 км от производственной базы (Московская область, г. Бронницы, с. Заворово):
  • Без фундамента 801 руб./км
  • Cо свайно-винтовым фундаментом 937 руб./км
  • Cо свайно-забивным (ЖБИ) фундаментом 1 003 руб./км
ПМЖ+ 2025 Каркасная
3 869 287 р.
цена по акции до 30.09
3 986 673 р.
цена по ипотеке
4 642 216 р.
цена в рассрочку
737 000 р. АКЦИЯ *

Полный пакет инженерного оборудования

Заказать дом Комплектация
Внутренняя отделка 1 этажа

Внутренняя отделка 1 этажа стен (высота потолка 2500 мм) (горизонтально) и потолков обшивкой 12,5 мм Сорт В

Внутренняя отделка 2 этажа

Внутренняя отделка 2 этажа стен (горизонтально) и потолков обшивкой 12,5 мм Сорт В (высота потолка 2400 мм)

Настил пола 1 этажа

Настил пола 1 этажа ОСП 22 мм

Настил пола 2 этажа

Настил пола 2 этажа ОСП 22 мм

Настил пола террасы, крыльца

Настил пола террасы, крыльца ПМК 27х90 с фаской

Фундамент дома

Фундамент свайно-винтовой (сваи D=108 м,L=2500 мм)

Нижняя обвязка дома

Нижняя обвязка: труба профильная металлическая 120х80 на свайный фундамент (38х97 монтажная доска)

Отделка фундамента

Отделка фундамента (сваи винтовые) дома ОСП-9 H=400 мм (при установке отливов по фундаменту)

МОНТАЖНАЯ ЛЕСТНИЦА

МОНТАЖНАЯ ЛЕСТНИЦА

СКОБЯНКА

Скобянка

Конструкция пола 1 этажа

Клееный Т-профиль 73х207 мм усиленной конструкции при настиле пола ОСП 22 мм

Наружные стены 1 этажа

Наружные стены 1 этажа (высота потолка 2500) ПМК 38

Перегородки 1 этажа

Перегородки 1 этажа (высота потолка 2500 мм) ПМК 38

Конструкция перекрытия 1 этажа

Балки перекрытия ПМК 38х147 при настиле пола ОСП-22 мм

Конструктив фронтонов дома (двускатная крыша)

Фронтоны дома ПМК 38х147

Наружные стены 2 этажа

Боковые стены дома ПМК 38х147 мм

Перегородки 2 этажа (двухскатная кровля)

Перегородки 2 этажа (высота потолка 2400 мм) ПМК 38

Стропильная система дома (двускатная крыша)

Стропильная система дома (двускатная крыша) ПМК 38х147 мм

Кровля

Профиль"СуперМонтеррей" (коричневый RAL 8017) с устройством гидроизоляции и вентиляции подкровельного пространства

Водоотлив фундаментный

Водоотлив фундаментный 90 мм (коричневый RAL 8017)

Водоотлив подоконный

Водоотлив подоконный 90 мм (белый)

Инженерное оборудование

Комплект вентиляции (металлочерепица (коричневый RAL 8017))

Наружная отделка дома (двухскатная кровля)

Наружная отделка дома (высота потолка 2500 мм): сайдинг Аляска (Ивори)(при установке отливов под окнами и по фундаменту)

Утепление пола 1 этажа

Утепление пола 1 этажа 200 мм минеральной ватой при балках пола: клееный Т-профиль 73х207

Утепление наружных стен 1 этажа

Утепление стен 1 этажа минеральной ватой (плитный утеплитель) 200 мм (высота потолка 2500 мм) с увеличением толщины каркаса стены до 194 мм

Звукоизоляция перегородок 1 этажа

Звукоизоляция перегородок 1 этажа минеральной ватой (плитный утеплитель) 100 мм (высота потолка 2500 мм)

Утепление перекрытия 1 этажа

Утепление потолка 1 этажа 100 мм минеральной ватой

Утепление 2 этажа (двухскатная кровля)

Утепление 2 этажа минеральной ватой 200 мм (высота потолка 2400 мм)

Звукоизоляция перегородок 2 этажа (двухскатная кровля)

Звукоизоляция перегородок 2 этажа минеральной ватой (плитный утеплитель) 100 мм (высота потолка 2400 мм)

Москитные сетки

Москитные сетки (цвет: белый)

Окна

Окна ПВХ (двухкамерный стеклопакет, поворотно-откидное)

Основной вход

Дверь входная металлическая ДМ 2060х860 правая

Двери внутренние

Двери внутренние ламинированные

Лестница межэтажная

Лестница клееная двухмаршевая (высота потолка 2500 мм)

Лестница наружная

Входные ступени

Пакеты услуг

Полный пакет инженерного оборудования

Доставка
    Доставка свыше 100 км от производственной базы (Московская область, г. Бронницы, с. Заворово):
  • Без фундамента 801 руб./км
  • Cо свайно-винтовым фундаментом 937 руб./км
  • Cо свайно-забивным (ЖБИ) фундаментом 1 003 руб./км
Осень Каркасная
2 251 456 р.
цена по акции до 30.09
2 336 485 р.
цена по ипотеке
2 701 207 р.
цена в рассрочку
737 000 р.

Полный пакет инженерного оборудования

Заказать дом Комплектация
Внутренняя отделка 1 этажа

Внутренняя отделка 1 этажа стен (высота потолка 2500 мм) и потолков гипсокартоном по разряженной обрешётке ПМК

Внутренняя отделка 2 этажа

Внутренняя отделка 2 этажа стен и потолков гипсокартоном по разряженной обрешётке ПМК (высота потолка 2400 мм)

Настил пола 1 этажа

Настил пола 1 этажа ОСП 22 мм

Настил пола 2 этажа

Настил пола 2 этажа ОСП 22 мм

Настил пола террасы, крыльца

Настил пола террасы, крыльца ПМК 27х90 с фаской

Фундамент дома

Фундамент столбчатый H=200 мм (в один блок)

Нижняя обвязка дома

Нижняя обвязка п/м 95х145 мм на столбчатый фундамент

МОНТАЖНАЯ ЛЕСТНИЦА

МОНТАЖНАЯ ЛЕСТНИЦА

СКОБЯНКА

Скобянка

Конструкция пола 1 этажа

Клееный Т-профиль 73х159 мм усиленной конструкции при настиле пола ОСП 22

Наружные стены 1 этажа

Наружные стены 1 этажа (высота потолка 2500)

Перегородки 1 этажа

Перегородки 1 этажа (высота потолка 2500 мм)

Конструкция перекрытия 1 этажа

Балки перекрытия ПМК 147 при настиле пола ОСП-22 мм

Конструктив фронтонов дома (двускатная крыша)

Фронтоны дома ПМК 97 мм

Наружные стены 2 этажа

Боковые стены дома ПМК 97 мм

Перегородки 2 этажа (двухскатная кровля)

Перегородки 2 этажа (высота потолка 2400 мм)

Стропильная система дома (двускатная крыша)

Стропильная система дома (двускатная крыша)

Кровля

Профнастил оцинкованный с устройством гидроизоляции и вентиляции подкровельного пространства

Водоотлив подоконный

Водоотлив подоконный 56 мм оцинкованный

Наружная отделка дома (двухскатная кровля)

Наружная отделка дома (высота потолка 2500 мм) обшивкой 12,5 мм Сорт В

Утепление пола 1 этажа

Утепление пола 1 этажа 100 мм минеральной ватой

Утепление наружных стен 1 этажа

Утепление стен 1 этажа минеральной ватой (плитный утеплитель) 150 мм (высота потолка 2500 мм)

Утепление перекрытия 1 этажа

Утепление потолка 1 этажа 50 мм минеральной ватой

Утепление 2 этажа (двухскатная кровля)

Утепление 2 этажа минеральной ватой 50 мм (высота потолка 2400 мм)

Окна

Окна ОДО (деревянное, 2 ост.)

Основной вход

Дверь входная металлическая ДМ 2060х860 правая

Двери внутренние

Двери внутренние ламинированные

Лестница межэтажная

Лестница двухмаршевая

Лестница наружная

Входные ступени

Доставка
    Доставка свыше 100 км от производственной базы (Московская область, г. Бронницы, с. Заворово):
  • Без фундамента 801 руб./км
  • Cо свайно-винтовым фундаментом 937 руб./км
  • Cо свайно-забивным (ЖБИ) фундаментом 1 003 руб./км
Зима 2025 Каркасная
3 022 084 р.
цена по акции до 30.09
3 122 526 р.
цена по ипотеке
3 625 776 р.
цена в рассрочку
737 000 р.

Полный пакет инженерного оборудования

Заказать дом Комплектация
Внутренняя отделка 1 этажа

Внутренняя отделка 1 этажа стен (высота потолка 2500 мм) (горизонтально) и потолков обшивкой 12,5 мм Сорт В

Внутренняя отделка 2 этажа

Внутренняя отделка 2 этажа стен (горизонтально) и потолков обшивкой 12,5 мм Сорт В (высота потолка 2400 мм)

Настил пола 1 этажа

Настил пола 1 этажа ОСП 22 мм

Настил пола 2 этажа

Настил пола 2 этажа ОСП 22 мм

Настил пола террасы, крыльца

Настил пола террасы, крыльца ПМК 27х90 с фаской

Фундамент дома

Фундамент свайно-винтовой (сваи D=108 м,L=2500 мм)

Нижняя обвязка дома

Нижняя обвязка п/м 145х145 мм на свайный фундамент

МОНТАЖНАЯ ЛЕСТНИЦА

МОНТАЖНАЯ ЛЕСТНИЦА

СКОБЯНКА

Скобянка

Конструкция пола 1 этажа

Клееный Т-профиль 73х207 мм усиленной конструкции при настиле пола ОСП 22 мм

Наружные стены 1 этажа

Наружные стены 1 этажа (высота потолка 2500)

Перегородки 1 этажа

Перегородки 1 этажа (высота потолка 2500 мм)

Конструкция перекрытия 1 этажа

Балки перекрытия ПМК 147 при настиле пола ОСП-22 мм

Конструктив фронтонов дома (двускатная крыша)

Фронтоны дома ПМК 147 мм

Наружные стены 2 этажа

Боковые стены дома ПМК 147 мм

Перегородки 2 этажа (двухскатная кровля)

Перегородки 2 этажа (высота потолка 2400 мм)

Стропильная система дома (двускатная крыша)

Стропильная система дома (двускатная крыша)

Кровля

Профнастил (коричневый RAL 8017) с устройством гидроизоляции и вентиляции подкровельного пространства

Водоотлив фундаментный

Водоотлив фундаментный 90 мм (коричневый RAL 8017)

Водоотлив подоконный

Водоотлив подоконный 90 мм (белый)

Наружная отделка дома (двухскатная кровля)

Наружная отделка дома (высота потолка 2500 мм): сайдинг Аляска (Ивори)(при установке отливов под окнами и по фундаменту)

Утепление пола 1 этажа

Утепление пола 1 этажа 200 мм минеральной ватой при балках пола: клееный Т-профиль 73х207

Утепление наружных стен 1 этажа

Утепление стен 1 этажа минеральной ватой (плитный утеплитель) 150 мм (высота потолка 2500 мм)

Утепление перекрытия 1 этажа

Утепление потолка 1 этажа 50 мм минеральной ватой

Утепление 2 этажа (двухскатная кровля)

Утепление 2 этажа минеральной ватой 150 мм (высота потолка 2400 мм) потолок 200 мм

Окна

Окна ПВХ (двухкамерный стеклопакет, поворотно-откидное)

Основной вход

Дверь входная металлическая ДМ 2060х860 правая

Двери внутренние

Двери внутренние ламинированные

Лестница межэтажная

Лестница двухмаршевая

Лестница наружная

Входные ступени

Доставка
    Доставка свыше 100 км от производственной базы (Московская область, г. Бронницы, с. Заворово):
  • Без фундамента 801 руб./км
  • Cо свайно-винтовым фундаментом 937 руб./км
  • Cо свайно-забивным (ЖБИ) фундаментом 1 003 руб./км
ПМЖ 2025 Каркасная
3 760 472 р.
цена по акции до 30.09
3 875 681 р.
цена по ипотеке
4 511 664 р.
цена в рассрочку
737 000 р.

Полный пакет инженерного оборудования

Заказать дом Комплектация
Внутренняя отделка 1 этажа

Внутренняя отделка 1 этажа стен (высота потолка 2500 мм) (горизонтально) и потолков обшивкой 12,5 мм Сорт В

Внутренняя отделка 2 этажа

Внутренняя отделка 2 этажа стен (горизонтально) и потолков обшивкой 12,5 мм Сорт В (высота потолка 2400 мм)

Настил пола 1 этажа

Настил пола 1 этажа ОСП 22 мм

Настил пола 2 этажа

Настил пола 2 этажа ОСП 22 мм

Настил пола террасы, крыльца

Настил пола террасы, крыльца ПМК 27х90 с фаской

Фундамент дома

Фундамент свайно-винтовой (сваи D=108 м,L=2500 мм)

Нижняя обвязка дома

Нижняя обвязка: труба профильная металлическая 120х80 на свайный фундамент (38х97 монтажная доска)

Отделка фундамента

Отделка фундамента (сваи винтовые) дома ОСП-9 H=400 мм (при установке отливов по фундаменту)

МОНТАЖНАЯ ЛЕСТНИЦА

МОНТАЖНАЯ ЛЕСТНИЦА

СКОБЯНКА

Скобянка

Конструкция пола 1 этажа

Клееный Т-профиль 73х207 мм усиленной конструкции при настиле пола ОСП 22 мм

Наружные стены 1 этажа

Наружные стены 1 этажа (высота потолка 2500) ПМК 38

Перегородки 1 этажа

Перегородки 1 этажа (высота потолка 2500 мм) ПМК 38

Конструкция перекрытия 1 этажа

Балки перекрытия ПМК 38х147 при настиле пола ОСП-22 мм

Конструктив фронтонов дома (двускатная крыша)

Фронтоны дома ПМК 38х147

Наружные стены 2 этажа

Боковые стены дома ПМК 38х147 мм

Перегородки 2 этажа (двухскатная кровля)

Перегородки 2 этажа (высота потолка 2400 мм) ПМК 38

Стропильная система дома (двускатная крыша)

Стропильная система дома (двускатная крыша) ПМК 38х147 мм

Кровля

Профиль"СуперМонтеррей" (коричневый RAL 8017) с устройством гидроизоляции и вентиляции подкровельного пространства

Водоотлив фундаментный

Водоотлив фундаментный 90 мм (коричневый RAL 8017)

Водоотлив подоконный

Водоотлив подоконный 90 мм (белый)

Инженерное оборудование

Комплект вентиляции (металлочерепица (коричневый RAL 8017))

Наружная отделка дома (двухскатная кровля)

Наружная отделка дома (высота потолка 2500 мм): сайдинг Аляска (Ивори)(при установке отливов под окнами и по фундаменту)

Утепление пола 1 этажа

Утепление пола 1 этажа 200 мм минеральной ватой при балках пола: клееный Т-профиль 73х207

Утепление наружных стен 1 этажа

Утепление стен 1 этажа минеральной ватой (плитный утеплитель) 200 мм (высота потолка 2500 мм) с увеличением толщины каркаса стены до 194 мм

Звукоизоляция перегородок 1 этажа

Звукоизоляция перегородок 1 этажа минеральной ватой (плитный утеплитель) 100 мм (высота потолка 2500 мм)

Утепление перекрытия 1 этажа

Утепление потолка 1 этажа 100 мм минеральной ватой

Утепление 2 этажа (двухскатная кровля)

Утепление 2 этажа минеральной ватой 200 мм (высота потолка 2400 мм)

Звукоизоляция перегородок 2 этажа (двухскатная кровля)

Звукоизоляция перегородок 2 этажа минеральной ватой (плитный утеплитель) 100 мм (высота потолка 2400 мм)

Москитные сетки

Москитные сетки (цвет: белый)

Окна

Окна ПВХ (двухкамерный стеклопакет, поворотно-откидное)

Основной вход

Дверь входная металлическая ДМ 2060х860 правая

Двери внутренние

Двери внутренние ламинированные

Лестница межэтажная

Лестница клееная двухмаршевая (высота потолка 2500 мм)

Лестница наружная

Входные ступени

Доставка
    Доставка свыше 100 км от производственной базы (Московская область, г. Бронницы, с. Заворово):
  • Без фундамента 801 руб./км
  • Cо свайно-винтовым фундаментом 937 руб./км
  • Cо свайно-забивным (ЖБИ) фундаментом 1 003 руб./км
ПМЖ+ 2025 Каркасная
3 760 472 р.
цена по акции до 30.09
3 875 681 р.
цена по ипотеке
4 511 664 р.
цена в рассрочку
737 000 р. АКЦИЯ *

Полный пакет инженерного оборудования

Заказать дом Комплектация
Внутренняя отделка 1 этажа

Внутренняя отделка 1 этажа стен (высота потолка 2500 мм) (горизонтально) и потолков обшивкой 12,5 мм Сорт В

Внутренняя отделка 2 этажа

Внутренняя отделка 2 этажа стен (горизонтально) и потолков обшивкой 12,5 мм Сорт В (высота потолка 2400 мм)

Настил пола 1 этажа

Настил пола 1 этажа ОСП 22 мм

Настил пола 2 этажа

Настил пола 2 этажа ОСП 22 мм

Настил пола террасы, крыльца

Настил пола террасы, крыльца ПМК 27х90 с фаской

Фундамент дома

Фундамент свайно-винтовой (сваи D=108 м,L=2500 мм)

Нижняя обвязка дома

Нижняя обвязка: труба профильная металлическая 120х80 на свайный фундамент (38х97 монтажная доска)

Отделка фундамента

Отделка фундамента (сваи винтовые) дома ОСП-9 H=400 мм (при установке отливов по фундаменту)

МОНТАЖНАЯ ЛЕСТНИЦА

МОНТАЖНАЯ ЛЕСТНИЦА

СКОБЯНКА

Скобянка

Конструкция пола 1 этажа

Клееный Т-профиль 73х207 мм усиленной конструкции при настиле пола ОСП 22 мм

Наружные стены 1 этажа

Наружные стены 1 этажа (высота потолка 2500) ПМК 38

Перегородки 1 этажа

Перегородки 1 этажа (высота потолка 2500 мм) ПМК 38

Конструкция перекрытия 1 этажа

Балки перекрытия ПМК 38х147 при настиле пола ОСП-22 мм

Конструктив фронтонов дома (двускатная крыша)

Фронтоны дома ПМК 38х147

Наружные стены 2 этажа

Боковые стены дома ПМК 38х147 мм

Перегородки 2 этажа (двухскатная кровля)

Перегородки 2 этажа (высота потолка 2400 мм) ПМК 38

Стропильная система дома (двускатная крыша)

Стропильная система дома (двускатная крыша) ПМК 38х147 мм

Кровля

Профиль"СуперМонтеррей" (коричневый RAL 8017) с устройством гидроизоляции и вентиляции подкровельного пространства

Водоотлив фундаментный

Водоотлив фундаментный 90 мм (коричневый RAL 8017)

Водоотлив подоконный

Водоотлив подоконный 90 мм (белый)

Инженерное оборудование

Комплект вентиляции (металлочерепица (коричневый RAL 8017))

Наружная отделка дома (двухскатная кровля)

Наружная отделка дома (высота потолка 2500 мм): сайдинг Аляска (Ивори)(при установке отливов под окнами и по фундаменту)

Утепление пола 1 этажа

Утепление пола 1 этажа 200 мм минеральной ватой при балках пола: клееный Т-профиль 73х207

Утепление наружных стен 1 этажа

Утепление стен 1 этажа минеральной ватой (плитный утеплитель) 200 мм (высота потолка 2500 мм) с увеличением толщины каркаса стены до 194 мм

Звукоизоляция перегородок 1 этажа

Звукоизоляция перегородок 1 этажа минеральной ватой (плитный утеплитель) 100 мм (высота потолка 2500 мм)

Утепление перекрытия 1 этажа

Утепление потолка 1 этажа 100 мм минеральной ватой

Утепление 2 этажа (двухскатная кровля)

Утепление 2 этажа минеральной ватой 200 мм (высота потолка 2400 мм)

Звукоизоляция перегородок 2 этажа (двухскатная кровля)

Звукоизоляция перегородок 2 этажа минеральной ватой (плитный утеплитель) 100 мм (высота потолка 2400 мм)

Москитные сетки

Москитные сетки (цвет: белый)

Окна

Окна ПВХ (двухкамерный стеклопакет, поворотно-откидное)

Основной вход

Дверь входная металлическая ДМ 2060х860 правая

Двери внутренние

Двери внутренние ламинированные

Лестница межэтажная

Лестница клееная двухмаршевая (высота потолка 2500 мм)

Лестница наружная

Входные ступени

Пакеты услуг

Полный пакет инженерного оборудования

Доставка
    Доставка свыше 100 км от производственной базы (Московская область, г. Бронницы, с. Заворово):
  • Без фундамента 801 руб./км
  • Cо свайно-винтовым фундаментом 937 руб./км
  • Cо свайно-забивным (ЖБИ) фундаментом 1 003 руб./км
Осень Каркасная
2 327 452 р.
цена по акции до 30.09
2 414 001 р.
цена по ипотеке
2 792 384 р.
цена в рассрочку
737 000 р.

Полный пакет инженерного оборудования

Заказать дом Комплектация
Внутренняя отделка 1 этажа

Внутренняя отделка 1 этажа стен (высота потолка 2500 мм) и потолков гипсокартоном по разряженной обрешётке ПМК

Внутренняя отделка 2 этажа

Внутренняя отделка 2 этажа стен и потолков гипсокартоном по разряженной обрешётке ПМК (высота потолка 2400 мм)

Настил пола 1 этажа

Настил пола 1 этажа ОСП 22 мм

Настил пола 2 этажа

Настил пола 2 этажа ОСП 22 мм

Настил пола террасы, крыльца

Настил пола террасы, крыльца ПМК 27х90 с фаской

Фундамент дома

Фундамент столбчатый H=200 мм (в один блок)

Нижняя обвязка дома

Нижняя обвязка п/м 95х145 мм на столбчатый фундамент

МОНТАЖНАЯ ЛЕСТНИЦА

МОНТАЖНАЯ ЛЕСТНИЦА

СКОБЯНКА

Скобянка

Конструкция пола 1 этажа

Клееный Т-профиль 73х159 мм усиленной конструкции при настиле пола ОСП 22

Наружные стены 1 этажа

Наружные стены 1 этажа (высота потолка 2500)

Перегородки 1 этажа

Перегородки 1 этажа (высота потолка 2500 мм)

Конструкция перекрытия 1 этажа

Балки перекрытия ПМК 147 при настиле пола ОСП-22 мм

Конструктив фронтонов дома (двускатная крыша)

Фронтоны дома ПМК 97 мм

Наружные стены 2 этажа

Боковые стены дома ПМК 97 мм

Перегородки 2 этажа (двухскатная кровля)

Перегородки 2 этажа (высота потолка 2400 мм)

Стропильная система дома (двускатная крыша)

Стропильная система дома (двускатная крыша)

Кровля

Профнастил оцинкованный с устройством гидроизоляции и вентиляции подкровельного пространства

Водоотлив подоконный

Водоотлив подоконный 56 мм оцинкованный

Наружная отделка дома (двухскатная кровля)

Наружная отделка дома (высота потолка 2500 мм) обшивкой 12,5 мм Сорт В

Утепление пола 1 этажа

Утепление пола 1 этажа 100 мм минеральной ватой

Утепление наружных стен 1 этажа

Утепление стен 1 этажа минеральной ватой (плитный утеплитель) 150 мм (высота потолка 2500 мм)

Утепление перекрытия 1 этажа

Утепление потолка 1 этажа 50 мм минеральной ватой

Утепление 2 этажа (двухскатная кровля)

Утепление 2 этажа минеральной ватой 50 мм (высота потолка 2400 мм)

Окна

Окна ОДО (деревянное, 2 ост.)

Основной вход

Дверь входная металлическая ДМ 2060х860 правая

Двери внутренние

Двери внутренние ламинированные

Лестница межэтажная

Лестница двухмаршевая

Лестница наружная

Входные ступени

Доставка
    Доставка свыше 100 км от производственной базы (Московская область, г. Бронницы, с. Заворово):
  • Без фундамента 801 руб./км
  • Cо свайно-винтовым фундаментом 937 руб./км
  • Cо свайно-забивным (ЖБИ) фундаментом 1 003 руб./км
Зима 2025 Каркасная
3 137 746 р.
цена по акции до 30.09
3 240 501 р.
цена по ипотеке
3 764 542 р.
цена в рассрочку
737 000 р.

Полный пакет инженерного оборудования

Заказать дом Комплектация
Внутренняя отделка 1 этажа

Внутренняя отделка 1 этажа стен (высота потолка 2500 мм) (горизонтально) и потолков обшивкой 12,5 мм Сорт В

Внутренняя отделка 2 этажа

Внутренняя отделка 2 этажа стен (горизонтально) и потолков обшивкой 12,5 мм Сорт В (высота потолка 2400 мм)

Настил пола 1 этажа

Настил пола 1 этажа ОСП 22 мм

Настил пола 2 этажа

Настил пола 2 этажа ОСП 22 мм

Настил пола террасы, крыльца

Настил пола террасы, крыльца ПМК 27х90 с фаской

Фундамент дома

Фундамент свайно-винтовой (сваи D=108 м,L=2500 мм)

Нижняя обвязка дома

Нижняя обвязка п/м 145х145 мм на свайный фундамент

МОНТАЖНАЯ ЛЕСТНИЦА

МОНТАЖНАЯ ЛЕСТНИЦА

СКОБЯНКА

Скобянка

Конструкция пола 1 этажа

Клееный Т-профиль 73х207 мм усиленной конструкции при настиле пола ОСП 22 мм

Наружные стены 1 этажа

Наружные стены 1 этажа (высота потолка 2500)

Перегородки 1 этажа

Перегородки 1 этажа (высота потолка 2500 мм)

Конструкция перекрытия 1 этажа

Балки перекрытия ПМК 147 при настиле пола ОСП-22 мм

Конструктив фронтонов дома (двускатная крыша)

Фронтоны дома ПМК 147 мм

Наружные стены 2 этажа

Боковые стены дома ПМК 147 мм

Перегородки 2 этажа (двухскатная кровля)

Перегородки 2 этажа (высота потолка 2400 мм)

Стропильная система дома (двускатная крыша)

Стропильная система дома (двускатная крыша)

Кровля

Профнастил (коричневый RAL 8017) с устройством гидроизоляции и вентиляции подкровельного пространства

Водоотлив фундаментный

Водоотлив фундаментный 90 мм (коричневый RAL 8017)

Водоотлив подоконный

Водоотлив подоконный 90 мм (белый)

Наружная отделка дома (двухскатная кровля)

Наружная отделка дома (высота потолка 2500 мм): сайдинг Аляска (Ивори)(при установке отливов под окнами и по фундаменту)

Утепление пола 1 этажа

Утепление пола 1 этажа 200 мм минеральной ватой при балках пола: клееный Т-профиль 73х207

Утепление наружных стен 1 этажа

Утепление стен 1 этажа минеральной ватой (плитный утеплитель) 150 мм (высота потолка 2500 мм)

Утепление перекрытия 1 этажа

Утепление потолка 1 этажа 50 мм минеральной ватой

Утепление 2 этажа (двухскатная кровля)

Утепление 2 этажа минеральной ватой 150 мм (высота потолка 2400 мм) потолок 200 мм

Окна

Окна ПВХ (двухкамерный стеклопакет, поворотно-откидное)

Основной вход

Дверь входная металлическая ДМ 2060х860 правая

Двери внутренние

Двери внутренние ламинированные

Лестница межэтажная

Лестница двухмаршевая

Лестница наружная

Входные ступени

Доставка
    Доставка свыше 100 км от производственной базы (Московская область, г. Бронницы, с. Заворово):
  • Без фундамента 801 руб./км
  • Cо свайно-винтовым фундаментом 937 руб./км
  • Cо свайно-забивным (ЖБИ) фундаментом 1 003 руб./км
ПМЖ 2025 Каркасная
3 872 172 р.
цена по акции до 30.09
3 989 616 р.
цена по ипотеке
4 645 678 р.
цена в рассрочку
737 000 р.

Полный пакет инженерного оборудования

Заказать дом Комплектация
Внутренняя отделка 1 этажа

Внутренняя отделка 1 этажа стен (высота потолка 2500 мм) (горизонтально) и потолков обшивкой 12,5 мм Сорт В

Внутренняя отделка 2 этажа

Внутренняя отделка 2 этажа стен (горизонтально) и потолков обшивкой 12,5 мм Сорт В (высота потолка 2400 мм)

Настил пола 1 этажа

Настил пола 1 этажа ОСП 22 мм

Настил пола 2 этажа

Настил пола 2 этажа ОСП 22 мм

Настил пола террасы, крыльца

Настил пола террасы, крыльца ПМК 27х90 с фаской

Фундамент дома

Фундамент свайно-винтовой (сваи D=108 м,L=2500 мм)

Нижняя обвязка дома

Нижняя обвязка: труба профильная металлическая 120х80 на свайный фундамент (38х97 монтажная доска)

Отделка фундамента

Отделка фундамента (сваи винтовые) дома ОСП-9 H=400 мм (при установке отливов по фундаменту)

МОНТАЖНАЯ ЛЕСТНИЦА

МОНТАЖНАЯ ЛЕСТНИЦА

СКОБЯНКА

Скобянка

Конструкция пола 1 этажа

Клееный Т-профиль 73х207 мм усиленной конструкции при настиле пола ОСП 22 мм

Наружные стены 1 этажа

Наружные стены 1 этажа (высота потолка 2500) ПМК 38

Перегородки 1 этажа

Перегородки 1 этажа (высота потолка 2500 мм) ПМК 38

Конструкция перекрытия 1 этажа

Балки перекрытия ПМК 38х147 при настиле пола ОСП-22 мм

Конструктив фронтонов дома (двускатная крыша)

Фронтоны дома ПМК 38х147

Наружные стены 2 этажа

Боковые стены дома ПМК 38х147 мм

Перегородки 2 этажа (двухскатная кровля)

Перегородки 2 этажа (высота потолка 2400 мм) ПМК 38

Стропильная система дома (двускатная крыша)

Стропильная система дома (двускатная крыша) ПМК 38х147 мм

Кровля

Профиль"СуперМонтеррей" (коричневый RAL 8017) с устройством гидроизоляции и вентиляции подкровельного пространства

Водоотлив фундаментный

Водоотлив фундаментный 90 мм (коричневый RAL 8017)

Водоотлив подоконный

Водоотлив подоконный 90 мм (белый)

Инженерное оборудование

Комплект вентиляции (металлочерепица (коричневый RAL 8017))

Наружная отделка дома (двухскатная кровля)

Наружная отделка дома (высота потолка 2500 мм): сайдинг Аляска (Ивори)(при установке отливов под окнами и по фундаменту)

Утепление пола 1 этажа

Утепление пола 1 этажа 200 мм минеральной ватой при балках пола: клееный Т-профиль 73х207

Утепление наружных стен 1 этажа

Утепление стен 1 этажа минеральной ватой (плитный утеплитель) 200 мм (высота потолка 2500 мм) с увеличением толщины каркаса стены до 194 мм

Звукоизоляция перегородок 1 этажа

Звукоизоляция перегородок 1 этажа минеральной ватой (плитный утеплитель) 100 мм (высота потолка 2500 мм)

Утепление перекрытия 1 этажа

Утепление потолка 1 этажа 100 мм минеральной ватой

Утепление 2 этажа (двухскатная кровля)

Утепление 2 этажа минеральной ватой 200 мм (высота потолка 2400 мм)

Звукоизоляция перегородок 2 этажа (двухскатная кровля)

Звукоизоляция перегородок 2 этажа минеральной ватой (плитный утеплитель) 100 мм (высота потолка 2400 мм)

Москитные сетки

Москитные сетки (цвет: белый)

Окна

Окна ПВХ (двухкамерный стеклопакет, поворотно-откидное)

Основной вход

Дверь входная металлическая ДМ 2060х860 правая

Двери внутренние

Двери внутренние ламинированные

Лестница межэтажная

Лестница клееная двухмаршевая (высота потолка 2500 мм)

Лестница наружная

Входные ступени

Доставка
    Доставка свыше 100 км от производственной базы (Московская область, г. Бронницы, с. Заворово):
  • Без фундамента 801 руб./км
  • Cо свайно-винтовым фундаментом 937 руб./км
  • Cо свайно-забивным (ЖБИ) фундаментом 1 003 руб./км
ПМЖ+ 2025 Каркасная
3 872 172 р.
цена по акции до 30.09
3 989 616 р.
цена по ипотеке
4 645 678 р.
цена в рассрочку
737 000 р. АКЦИЯ *

Полный пакет инженерного оборудования

Заказать дом Комплектация
Внутренняя отделка 1 этажа

Внутренняя отделка 1 этажа стен (высота потолка 2500 мм) (горизонтально) и потолков обшивкой 12,5 мм Сорт В

Внутренняя отделка 2 этажа

Внутренняя отделка 2 этажа стен (горизонтально) и потолков обшивкой 12,5 мм Сорт В (высота потолка 2400 мм)

Настил пола 1 этажа

Настил пола 1 этажа ОСП 22 мм

Настил пола 2 этажа

Настил пола 2 этажа ОСП 22 мм

Настил пола террасы, крыльца

Настил пола террасы, крыльца ПМК 27х90 с фаской

Фундамент дома

Фундамент свайно-винтовой (сваи D=108 м,L=2500 мм)

Нижняя обвязка дома

Нижняя обвязка: труба профильная металлическая 120х80 на свайный фундамент (38х97 монтажная доска)

Отделка фундамента

Отделка фундамента (сваи винтовые) дома ОСП-9 H=400 мм (при установке отливов по фундаменту)

МОНТАЖНАЯ ЛЕСТНИЦА

МОНТАЖНАЯ ЛЕСТНИЦА

СКОБЯНКА

Скобянка

Конструкция пола 1 этажа

Клееный Т-профиль 73х207 мм усиленной конструкции при настиле пола ОСП 22 мм

Наружные стены 1 этажа

Наружные стены 1 этажа (высота потолка 2500) ПМК 38

Перегородки 1 этажа

Перегородки 1 этажа (высота потолка 2500 мм) ПМК 38

Конструкция перекрытия 1 этажа

Балки перекрытия ПМК 38х147 при настиле пола ОСП-22 мм

Конструктив фронтонов дома (двускатная крыша)

Фронтоны дома ПМК 38х147

Наружные стены 2 этажа

Боковые стены дома ПМК 38х147 мм

Перегородки 2 этажа (двухскатная кровля)

Перегородки 2 этажа (высота потолка 2400 мм) ПМК 38

Стропильная система дома (двускатная крыша)

Стропильная система дома (двускатная крыша) ПМК 38х147 мм

Кровля

Профиль"СуперМонтеррей" (коричневый RAL 8017) с устройством гидроизоляции и вентиляции подкровельного пространства

Водоотлив фундаментный

Водоотлив фундаментный 90 мм (коричневый RAL 8017)

Водоотлив подоконный

Водоотлив подоконный 90 мм (белый)

Инженерное оборудование

Комплект вентиляции (металлочерепица (коричневый RAL 8017))

Наружная отделка дома (двухскатная кровля)

Наружная отделка дома (высота потолка 2500 мм): сайдинг Аляска (Ивори)(при установке отливов под окнами и по фундаменту)

Утепление пола 1 этажа

Утепление пола 1 этажа 200 мм минеральной ватой при балках пола: клееный Т-профиль 73х207

Утепление наружных стен 1 этажа

Утепление стен 1 этажа минеральной ватой (плитный утеплитель) 200 мм (высота потолка 2500 мм) с увеличением толщины каркаса стены до 194 мм

Звукоизоляция перегородок 1 этажа

Звукоизоляция перегородок 1 этажа минеральной ватой (плитный утеплитель) 100 мм (высота потолка 2500 мм)

Утепление перекрытия 1 этажа

Утепление потолка 1 этажа 100 мм минеральной ватой

Утепление 2 этажа (двухскатная кровля)

Утепление 2 этажа минеральной ватой 200 мм (высота потолка 2400 мм)

Звукоизоляция перегородок 2 этажа (двухскатная кровля)

Звукоизоляция перегородок 2 этажа минеральной ватой (плитный утеплитель) 100 мм (высота потолка 2400 мм)

Москитные сетки

Москитные сетки (цвет: белый)

Окна

Окна ПВХ (двухкамерный стеклопакет, поворотно-откидное)

Основной вход

Дверь входная металлическая ДМ 2060х860 правая

Двери внутренние

Двери внутренние ламинированные

Лестница межэтажная

Лестница клееная двухмаршевая (высота потолка 2500 мм)

Лестница наружная

Входные ступени

Пакеты услуг

Полный пакет инженерного оборудования

Доставка
    Доставка свыше 100 км от производственной базы (Московская область, г. Бронницы, с. Заворово):
  • Без фундамента 801 руб./км
  • Cо свайно-винтовым фундаментом 937 руб./км
  • Cо свайно-забивным (ЖБИ) фундаментом 1 003 руб./км

В любую комплектацию возможно внести изменения!

Видеообзор
Фотообзор
Фотообзор Фаворит 6х9 П135 - 1

Уютный домик с увеличенной террасой. Райское место для летних посиделок!

Фотообзор Фаворит 6х9 П135 - 2

Фасад оформлен в белом цвете. Вы можете выбрать любое оформление. 

Фотообзор Фаворит 6х9 П135 - 3

Рамы у окон ПВХ выполнены в коричневом цвете. Выглядит интересно и необычно. 

Фотообзор Фаворит 6х9 П135 - 4

Лестница также стилизована под общий стиль дома. 

Фотообзор Фаворит 6х9 П135 - 5

На мансарде комнаты выглядят уютнее всего из-за скошенных потолков. Так и хочется устроить вечерний марафон по просмотру фильмов!

Отправить заявку на проект
Комплектация
Не важно
Город*
Выберите город
  • Москва и область
  • Рязань и область
  • Другой
Планировка
Выберите планировку
  • Планировка 5
  • Планировка 1
  • Планировка 3