Садовод 11x14 Барн

от 0р.

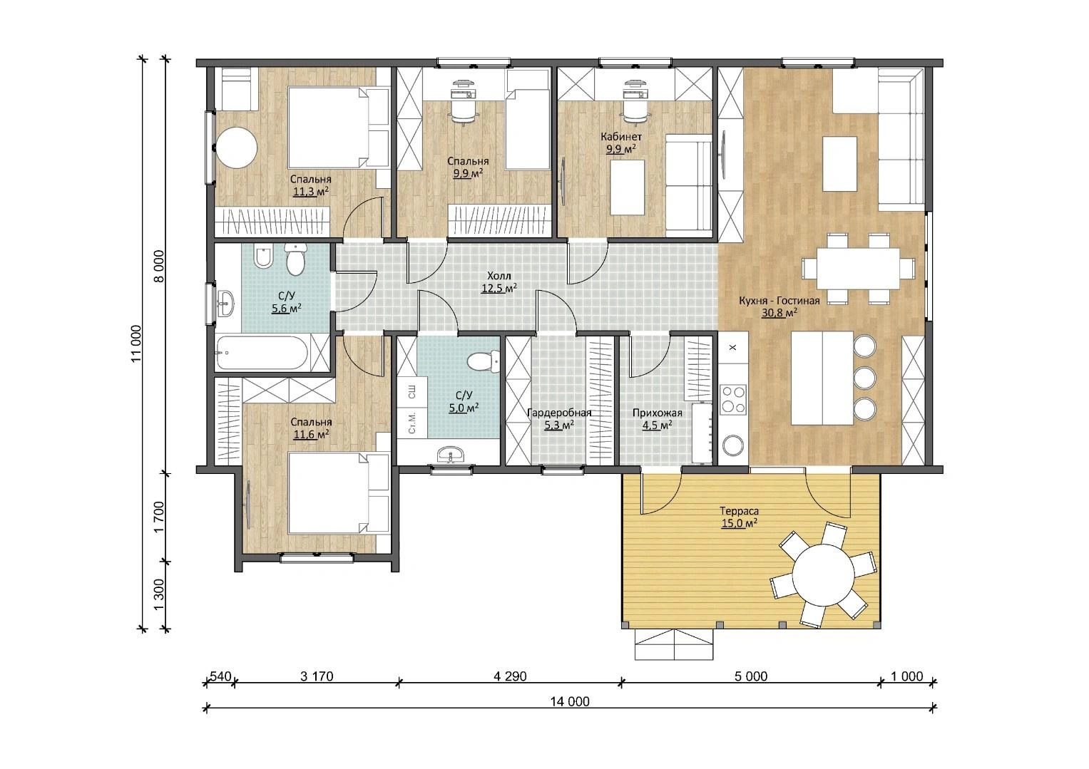
Дом для тех, кто любит роскошные и большие пространства. На площади 120,6 м2 есть где разгуляться! 

Изюминкой дома является кухня-гостиная, занимающая обширную площадь 30,8 м2. Эта комната служит центральной зоной сбора семьи и друзей. 

В планировке есть три спальни, каждая из которых обеспечивает удобное и уединенное пространство для отдыха и сна. В кабинете площадью 9,9 м2 предусмотрено специальное пространство для работы, учебы или хобби. Не обойтись и без гардеробной, где поместится вся одежда и обувь.

В доме также имеются две благоустроенные ванные комнаты. Первая занимает 5,6 м2, вторая чуть меньше — 5 м2.

А на большой террасе (15 м2) можно прекрасно проводить время с близкими.

Заказчик может вносить изменения в план дома, комплектацию и дизайн фасада. Дополнительные услуги, такие как водоснабжение, энергоснабжение и канализация, также могут быть включены в соответствии с желанием клиента.

Срок возведения дома — от 30 дней. Предоплата отсутствует.

Планировки дома *
Планировка 1
* Размеры и площади указаны без учета наружной и внутренней отделки и в разных комплектациях могут меняться (из-за толщины утеплителя, стен и перегородок). Подробности уточняйте у менеджера.
Комплектации
Осень Каркасная
4 333 000 р.
старая цена
3 259 000 р.
цена по акции до 30.09
4 460 000 р.
цена по ипотеке
4 850 000 р.
цена в рассрочку
219 272 р.

Пакет инженерные коммуникации. Подведение труб горячей и холодной воды, прокладка канализационных труб, водонагреватель. Устройство канализации внутри дома. Прокладка электропроводки в пластиковых коробах.

Заказать дом Смотреть комплектацию
Фундамент дома

Опорные столбы из бетонных блоков высотой 200 мм, на бетонной армированной плитке 400Х400Х50 на песчаной подушке. Гидроизоляция фундамента – рубероид в два слоя. Замкнутая нижняя обвязка толщиной 145 мм. По фундаменту установлены отливы (цвет коричневый).

Огнебиозащита, антисептирование

нет

Конструкция пола

Толщина конструкции: 181мм. Настил пола ОСП-22 мм; пароизоляция Тераспан Б (или аналог); клееный Т-профиль 73х159 мм усиленной конструкции; минеральная вата Урса М11 (или аналог) 100мм; ветро-изоляционная мембрана Тераспан А (или аналог); черновой пол толщиной 10мм.

Утепление пола

Минеральная вата 100 мм.

Настил пола

ОСП 22 мм.

Стены

Толщина стен 172 мм - 211 мм. Высота потолка 2 533 мм (от балок пола до балок перекрытий). Внутренняя обшивка 12,5 мм, пароизоляция, ПМК, минеральная вата 150 мм, ветро-изоляционная мембрана. Наружная обшивка комбинированная: обшивка 12,5 мм, стены со стороны скатов крыши профнастил (цвет коричневый) по обрешетке П/м, по вентфасаду ПМК.

Перегородки

Толщина перегородок 122 мм. Обшивка 12,5 мм, ПМК, обшивка 12,5 мм.

Перекрытия

Толщина конструкции 159 мм. Обшивка 12,5 мм, пароизоляция, ПМК, минеральная вата 100 мм.

Фронтоны, Кровля

Толщина конструкции 109 мм. ПМК, ветро-изоляционная мембрана, наружная обшивка 12,5 мм. Профилированный лист (цвет коричневый). Крепление кровельными саморезами по обрешетке П/м, вентиляционный зазор ПМК, гидро-пароизоляционная мембрана.

Окна

ПВХ, однокамерный стеклопакет (цвет белый), под окнами установлены отливы (цвет коричневый).

Двери дома

Входная металлическая. Внутренние ламинированные.

Вентиляция

-

Электрика

-

Отопление

-

Водоподготовка

-

Канализация

-

Зима Каркасная
4 886 000 р.
старая цена
3 871 000 р.
цена по акции до 30.09
5 024 000 р.
цена по ипотеке
5 463 000 р.
цена в рассрочку
219 272 р.

Пакет инженерные коммуникации. Подведение труб горячей и холодной воды, прокладка канализационных труб, водонагреватель. Устройство канализации внутри дома. Прокладка электропроводки в пластиковых коробах.

Заказать дом Смотреть комплектацию
Фундамент дома

Свайно-винтовой (сваи D=108 мм., L=2500 мм). Гидроизоляция фундамента — рубероид в два слоя. Замкнутая нижняя обвязка толщиной 145 мм обработана огнебиозащитой. По фундаменту установлены отливы (цвет коричневый).

Огнебиозащита, антисептирование

Огнебиозащита нижней обвязки, лаг пола и чернового пола в 2 слоя.

Конструкция пола

Толщина конструкции: 181мм. Настил пола ОСП-22 мм; пароизоляция Тераспан Б (или аналог); клееный Т-профиль 73х159 мм усиленной конструкции; минеральная вата Урса М11 (или аналог) 150мм; ветро-изоляционная мембрана Тераспан А (или аналог); черновой пол толщиной 10мм. Балки пола и черновой пол обработаны огнебиозащитой.

Утепление пола

Минеральная вата 150 мм.

Настил пола

ОСП 22 мм.

Стены

Толщина стен 172 мм-211 мм. Высота потолка 2 533 мм (от балок пола до балок перекрытий). Внутренняя обшивка 12,5 мм, пароизоляция, ПМК, минеральная вата 150 мм, ветро-изоляционная мембрана. Наружная обшивка комбинированная: стены со стороны фронтонов обшивка 12,5 мм, стены со стороны скатов крыши профнастил (цвет коричневый), по обрешетке П/м, по вентфасаду ПМК.

Перегородки

Толщина перегородок 122 мм. Обшивка 12,5 мм, ПМК, обшивка 12,5 мм.

Перекрытия

Толщина конструкции: 159 мм. Обшивка 12,5 мм, пароизоляция, ПМК, минеральная вата 150 мм.

Фронтоны, Кровля

Толщина конструкции 109 мм. ПМК, ветро-изоляционная мембрана, наружная обшивка 12,5 мм. Профилированный лист (цвет коричневый). Крепление кровельными саморезами по обрешетке П/м, вентиляционный зазор ПМК, гидро-пароизоляционная мембрана.

Окна

ПВХ, однокамерный стеклопакет (цвет белый), под окнами установлены отливы (цвет коричневый).

Двери дома

Входная металлическая. Внутренние ламинированные

Вентиляция

-

Электрика

-

Отопление

-

Водоподготовка

-

Канализация

-

ПМЖ Каркасная
5 992 000 р.
старая цена
4 721 000 р.
цена по акции до 30.09
6 152 000 р.
цена по ипотеке
6 691 000 р.
цена в рассрочку
219 272 р.

Пакет инженерные коммуникации. Подведение труб горячей и холодной воды, прокладка канализационных труб, водонагреватель. Устройство канализации внутри дома. Прокладка электропроводки в пластиковых коробах.

Заказать дом Смотреть комплектацию
Фундамент дома

Свайно-винтовой (сваи D=108 мм, L=2500 мм). Нижняя обвязка — труба профильная металлическая 120х80 мм. Гидроизоляция фундамента — рубероид в два слоя. Монтажная доска ПМК обработана огнебиозащитой. Отделка фундамента дома ОСП-9 по обрешетке П/м, H=400 мм. По фундаменту установлены отливы (цвет коричневый).

Огнебиозащита, антисептирование

Огнебиозащита нижней обвязки, лаг пола и чернового пола в 2 слоя.

Конструкция пола

Толщина конструкции: 229 мм., Настил пола ОСП-22 мм; пароизоляция Тераспан Б (или аналог); клееный Т-профиль 73х207 мм усиленной конструкции; минеральная вата Урса М11 (или аналог) 200мм; ветро-изоляционная мембрана Тераспан А (или аналог); черновой пол толщиной 10мм; Балки пола и черновой пол обработаны огнебиозащитой

Утепление пола

Минеральная вата 200 мм.

Настил пола

ОСП 22 мм.

Стены

Толщина стен 248 мм-258 мм. Высота потолка 2 533 мм (от балок пола до балок перекрытий). Внутренняя обшивка 12.5 мм, пароизоляция, ПМК, повторитель стоек ПМК для перекрестного утепления (бьется снаружи горизонтально), минеральная вата 200 мм; ветро-изоляционная мембрана. Наружная обшивка комбинированная: стены со стороны фронтонов обшивка 12,5 мм, стен со стороны скатов крыши профнастил (цвет коричневый) по обрешетке П/м, по вентфасаду ПМК.

Перегородки

Толщина перегородок: 122 мм. Обшивка 12.5 мм, пароизоляция, минеральная вата 100 мм, ПМК, пароизоляция, обшивка 12.5 мм

Перекрытия

Толщина конструкции 159 мм. Обшивка 12,5 мм; пароизоляция, ПМК; минеральная вата 200 мм.

Фронтоны, Кровля

Толщина конструкции 186 мм. ПМК, повторитель стоек ПМК, ветро-изоляционная мембрана, вентфасад ПМК, наружная обшивка 12,5 мм. Профилированный лист (цвет коричневый). Крепление кровельными саморезами по обрешетке П/м, вентиляционный зазор ПМК, гидро-пароизоляционная мембрана.

Окна

ПВХ двухкамерный стеклопакет (цвет белый) с москитными сетками. Под окнами устанавливаются отливы (цвет коричневый).

Двери дома

Входная металлическая. Внутренние ламинированные.

Вентиляция

Естественная, с/у и кухни. Место установки изолированного вентиляционного выхода и вентиляционных решеток не регламентируется и определяется проектом.

Электрика

-

Отопление

-

Водоподготовка

-

Канализация

-

ПМЖ+ Каркасная
6 719 000 р.
цена по акции до 30.09
6 893 000 р.
цена по ипотеке
7 498 000 р.
цена в рассрочку
692 410 р. АКЦИЯ *

Пакет инженерные коммуникации: отопление от электрокотла, горячее и холодное водоснабжение (монтаж внутри дома), канализация Септик Евролос, прокладка электропроводки в пластиковых коробах.

Заказать дом Смотреть комплектацию
Фундамент дома

Свайно-винтовой (сваи D=108 мм, L=2500 мм). Нижняя обвязка — труба профильная металлическая 120х80 мм. Гидроизоляция фундамента — рубероид в два слоя. Монтажная доска ПМК обработана огнебиозащитой. Отделка фундамента дома ОСП-9 по обрешетке П/м, H=400 мм. По фундаменту установлены отливы (цвет коричневый).

Огнебиозащита, антисептирование

Огнебиозащита нижней обвязки, лаг пола и чернового пола в 2 слоя.

Конструкция пола

Толщина конструкции: 229 мм., Настил пола ОСП-22 мм; пароизоляция Тераспан Б (или аналог); клееный Т-профиль 73х207 мм усиленной конструкции; минеральная вата Урса М11 (или аналог) 200мм; ветро-изоляционная мембрана Тераспан А (или аналог); черновой пол толщиной 10мм; Балки пола и черновой пол обработаны огнебиозащитой

Утепление пола

Минеральная вата 200 мм.

Настил пола

ОСП 22 мм.

Стены

Толщина стен 248 мм-258 мм. Высота потолка 2 533 мм (от балок пола до балок перекрытий). Внутренняя обшивка 12.5 мм, пароизоляция, ПМК, повторитель стоек ПМК для перекрестного утепления (бьется снаружи горизонтально), минеральная вата 200 мм; ветро-изоляционная мембрана. Наружная обшивка комбинированная: стены со стороны фронтонов обшивка 12,5 мм, стен со стороны скатов крыши профнастил (цвет коричневый) по обрешетке П/м, по вентфасаду ПМК.

Перегородки

Толщина перегородок: 122 мм. Обшивка 12.5 мм, пароизоляция, минеральная вата 100 мм, ПМК, пароизоляция, обшивка 12.5 мм

Перекрытия

Толщина конструкции 159 мм. Обшивка 12,5 мм; пароизоляция, ПМК; минеральная вата 200 мм.

Фронтоны, Кровля

Толщина конструкции 186 мм. ПМК, повторитель стоек ПМК, ветро-изоляционная мембрана, вентфасад ПМК, наружная обшивка 12,5 мм. Профилированный лист (цвет коричневый). Крепление кровельными саморезами по обрешетке П/м, вентиляционный зазор ПМК, гидро-пароизоляционная мембрана.

Окна

ПВХ двухкамерный стеклопакет (цвет белый) с москитными сетками. Под окнами устанавливаются отливы (цвет коричневый).

Двери дома

Входная металлическая. Внутренние ламинированные.

Вентиляция

Естественная, с/у и кухни. Место установки изолированного вентиляционного выхода и вентиляционных решеток не регламентируется и определяется проектом.

Электрика

Прокладка электропроводки в пластиковых коробах.

Отопление

Электрическое отопление. Двухтрубная система отопления, алюминиевые радиаторы, запорная арматура, электрический котёл.

Водоподготовка

Разводка по дому горячего и холодного водоснабжения до точки пользования с запорной арматурой. Водонагреватель ГВС на 50 л.

Канализация

Канализация включает в себя разводку канализационных труб для обеспечения слива воды под каждую точку водоразбора, в том числе под унитаз. Септик. Залповый сброс 150 л. Производительность 0,6 куб. м. в сутки. Количество пользователей — 3 чел. Потребляемая мощность 2 кВт сутки.

В любую комплектацию возможно внести изменения!

Доставка свыше 100 км от производственной базы (Московская область, г. Бронницы, с. Заворово):
Дом с блочным фундаментом 915 руб./км
Дом со свайным фундаментом 1052 руб./км
Дом со свайно-забивным (ЖБИ) фундаментом 1096 руб./км
Видеообзор
Фотообзор
Фотообзор Садовод 11x14 Барн - 1

Вид у барнхауса современный и привлекающий внимание. Его площадь 121,4 м2.

Фотообзор Садовод 11x14 Барн - 2

Перед входом пристроена терраса. Отличное место для посиделок с семьей. 

Фотообзор Садовод 11x14 Барн - 3

С двух сторон терраса огорожена, что снижает продуваемость и попадение осадков.

Фотообзор Садовод 11x14 Барн - 4

На входе со стороны террасы вас встречает кухонная зона. 

Фотообзор Садовод 11x14 Барн - 5

Здесь установлен кухонный гарнитур и островок. Такое решение удобно в плане приготовления еды и ее подачи. 

Фотообзор Садовод 11x14 Барн - 6

Рядом расположена мини-столовая для семейных ужинов и приемов гостей. 

Фотообзор Садовод 11x14 Барн - 7

А тут очень приятно отдыхать около камина уютными вечерами. 

Фотообзор Садовод 11x14 Барн - 8

Длинный коридор, ведущий в спальни, гардеробную, кабинет и санузлы.

Фотообзор Садовод 11x14 Барн - 9

Для детей спроектирована отдельная комната. Сюда поместятся и кровать, и письменный стол, и игрушки. 

Фотообзор Садовод 11x14 Барн - 10

Рядом находится комфортабельная небольшая спальня. 

Фотообзор Садовод 11x14 Барн - 11

В доме есть 2 санузла. Один из них — совмещенный с ванной. 

Фотообзор Садовод 11x14 Барн - 12

А вот и второй. Это очень удобно для большой семьи!

Фотообзор Садовод 11x14 Барн - 13

Предусмотрена вместительная гардеробная для одежды и обуви. 

Другие проекты
Отправить заявку на проект
Комплектация
Не важно
  • Осень
  • Зима
  • ПМЖ
  • ПМЖ+
Город*
Выберите город
  • Москва и область
  • Рязань и область
  • Другой
Планировка
Выберите планировку
  • Планировка 1