Садовод 7х8 Модус

от 0р.

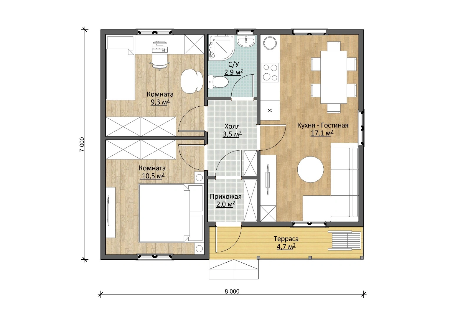
Садовод 7х8 Модус с общей площадью 50 м2 предназначен для проживания на загородном участке. Дом выполнен в современном стиле, который органично вписывается в окружающую среду, что делает его подходящим как для круглогодичного, так и для сезонного проживания.

При входе в дом вас встречает просторная кухня-гостиная, занимающая площадь 17,1 м2. Эта комната идеально подходит для общения, приготовления пищи, трапезы с семьей и друзьями. Кухню можно оборудовать лаконичной столешницей, шкафами, холодильником и другими необходимыми бытовыми приборами. 

Рядом с кухней-гостиной находится кабинет, подразумевающий пространство для работы или учебы. На площади 9,3 м2 можно разместить стол, удобный стул и другие необходимые принадлежности. Эта комната предоставляет спокойную обстановку для продуктивной работы и концентрации.

Спальня 10,5 м— это уединенное место для сна и отдыха. В доме, конечно, есть санузел площадью 2,9 м2. В нем доступно дополнительное место для хранения туалетных принадлежностей и полотенец.

Также около входа есть маленькая терраса площадью 4,7 м2. Она может быть обставлена садовыми стульями и растениями в горшках, создавая привлекательное пространство для наслаждения свежим воздухом и природой.

Вы можете изменить план дома в соответствии со своими предпочтениями, будь то изменение планировки, корректировка дизайна фасада или добавление дополнительных услуг.

Ваши желания превыше всего!

Планировки дома *
Планировка 1
* Размеры и площади указаны без учета наружной и внутренней отделки и в разных комплектациях могут меняться (из-за толщины утеплителя, стен и перегородок). Подробности уточняйте у менеджера.
Комплектации
Осень Каркасная
1 610 000 р.
старая цена
1 206 000 р.
цена по акции до 30.09
1 682 000 р.
цена по ипотеке
1 963 000 р.
цена в рассрочку
198 569 р.

Пакет инженерные коммуникации. Подведение труб горячей и холодной воды, прокладка канализационных труб, водонагреватель. Устройство канализации внутри дома. Прокладка электропроводки в пластиковых коробах.

Заказать дом Смотреть комплектацию
Фундамент дома

Опорные столбы из бетонных блоков высотой 200 мм, на бетонной армированной плитке на песчаной подушке. Гидроизоляция фундамента. Замкнутая нижняя обвязка из ПМК.

Огнебиозащита, антисептирование

нет

Конструкция пола 1-го этажа

Толщина конструкции: 181мм. Настил пола ОСП-22 мм; пароизоляция Тераспан Б (или аналог); клееный Т-профиль 73х159 мм усиленной конструкции; минеральная вата Урса М11 (или аналог) 100мм; ветро-изоляционная мембрана Тераспан А (или аналог); черновой пол толщиной 10мм.

Утепление пола 1-го этажа

100 мм минеральной ватой.

Настил пола 1-го этажа

ОСП 22 мм.

Стены 1 го этажа

Толщина стен 195 мм. Высота потолка 2.33 м (от балок пола до балок перекрытия), внутренняя обшивка ГКЛ по разряженной обрешетке из ПМК, пароизоляционная мембрана, ПМК, минеральная вата 150 мм, гидро-ветроизоляционная мембрана, наружная обшивка 12,5 мм (вагонка).

Перекрытие 1-го этажа

Толщина конструкции 180 мм. Гидро-ветроизоляционная мембрана, ПМК, минеральная вата 100 мм, пароизоляционная мембрана, обшивка ГКЛ по разряженной обрешетке из ПМК.

Перегородки

Толщина перегородок 169 мм. Обшивка ГКЛ по разряженной обрешетке из ПМК.

Кровля

Оцинкованный профилированный лист. Крепление кровельными саморезами.

Окна

Деревянные распашные, с одинарной рамой и одинарным остеклением.

Двери дома

Дверь строительная ПГ. Внутренние ламинированные.

Вентиляция

-

Электрика

-

Отопление

-

Водоподготовка

-

Канализация

-

Зима Каркасная
2 171 000 р.
старая цена
1 502 000 р.
цена по акции до 30.09
2 254 000 р.
цена по ипотеке
2 648 000 р.
цена в рассрочку
198 569 р.

Пакет инженерные коммуникации. Подведение труб горячей и холодной воды, прокладка канализационных труб, водонагреватель. Устройство канализации внутри дома. Прокладка электропроводки в пластиковых коробах.

Заказать дом Смотреть комплектацию
Фундамент дома

Свайно-винтовой (сваи D=108 мм, L=2500 мм). Гидроизоляция фундамента - рубероид в два слоя. Замкнутая нижняя обвязка толщиной 145 мм П/м(3) обработана огнебиозащитой. По фундаменту установлены отливы (цвет коричневый).

Огнебиозащита, антисептирование

Огнебиозащита нижней обвязки, лаг пола и чернового пола в 2 слоя.

Конструкция пола 1-го этажа

Толщина конструкции: 229 мм. Настил пола ОСП-22 мм; пароизоляция Тераспан Б (или аналог); клееный Т-профиль 73х207 мм усиленной конструкции; минеральная вата Урса М11 (или аналог) 200 мм; ветро-изоляционная мембрана Тераспан А (или аналог); черновой пол толщиной 10мм. Балки пола и черновой пол обработаны огнебиозащитой.

Утепление пола 1-го этажа

200 мм минеральной ватой.

Настил пола 1-го этажа

ОСП 22 мм.

Стены 1 го этажа

Толщина стен 203,5 мм. Высота потолка 2,533 м. (от настила пола до балок перекрытия). Внутренняя обшивка 12,5 мм(2); пароизоляция Тераспан Б (или аналог); ПМК(1); минеральная вата Урса П15 (или аналог) 150мм; ветро-изоляционная мембрана Тераспан А (или аналог); наружная обшивка сайдинг Альта профиль «Аляска» (цвет Ивори) (стыковка внахлест) по ОСП-9, по вентфасаду ПМК(1)

Перекрытие 1-го этажа

Толщина конструкции: 159,5 мм.; обшивка 12,5 мм(2); пароизоляция Тераспан Б (или аналог); ПМК(1); Минеральная вата Урса М11 (или аналог) 200 мм.

Перегородки

Толщина перегородок: 122мм Обшивка 12.5мм(2), ПМК(1 обшивка 12.5мм(2)

Кровля

Профилированный лист (цвет коричневый). Крепление кровельными саморезами. по обрешетке П/м(3), вентиляционный зазор ПМК(1), гидро-ветрозащитная мембрана Тераспан АМ (или аналог).

Окна

ПВХ двухкамерный стеклопакет, цвет белый. Под окнами установлены отливы (цвет белый)

Двери дома

Входная металлическая. Внутренние ламинированные

Вентиляция

-

Электрика

-

Отопление

-

Водоподготовка

-

Канализация

-

ПМЖ Каркасная
2 640 000 р.
старая цена
2 169 000 р.
цена по акции до 30.09
2 733 000 р.
цена по ипотеке
3 220 000 р.
цена в рассрочку
198 569 р.

Пакет инженерные коммуникации. Подведение труб горячей и холодной воды, прокладка канализационных труб, водонагреватель. Устройство канализации внутри дома. Прокладка электропроводки в пластиковых коробах.

Заказать дом Смотреть комплектацию
Фундамент дома

Свайно-винтовой (сваи D=108 мм, L=2500 мм). Нижняя обвязка - труба профильная металлическая 120х80 мм, гидроизоляция фундамента-рубероид в два слоя, монтажная доска ПМК обработана огнебиозащитой. Отделка фундамента дома ОСП-9 по обрешетке, H=400 мм. По фундаменту установлены отливы (в цвет кровли).

Огнебиозащита, антисептирование

Огнебиозащита нижней обвязки, лаг пола и чернового пола в 2 слоя.

Конструкция пола 1-го этажа

Толщина конструкции: 229мм. Настил пола ОСП-22 мм; пароизоляция Тераспан Б (или аналог); клееный Т-профиль 73х207 мм усиленной конструкции; минеральная вата Урса М11 (или аналог) 200мм; ветро-изоляционная мембрана Тераспан А (или аналог); черновой пол толщиной 10мм. Балки пола и черновой пол обработаны огнебиозащитой.

Утепление пола 1-го этажа

Утепление пола 1 этажа 200 мм минеральной ватой.

Настил пола 1-го этажа

ОСП 22 мм.

Стены 1 го этажа

Толщина стен 235 мм. Высота потолка 2.53 м (от балок пола до балок перекрытия). Внутренняя обшивка 12.5 мм, пароизоляционная мембрана, ПМК, повторитель стоек ПМК для перекрестного утепления (бьется снаружи горизонтально), минеральная вата 200 мм, гидро-ветроизоляционная мембрана, наружная обшивка сайдинг Альта профиль «Аляска» (стыковка внахлест) по контр-рейке, по ветрозащите, по ОСП-9.

Перекрытие 1-го этажа

Толщина конструкции 159 мм, ПМК, минеральная вата 200 мм, пароизоляционная мембрана, обшивка 12.5 мм.

Перегородки

Толщина перегородок 122 мм. Обшивка 12.5 мм, пароизоляционная мембрана, минеральная вата 100мм, пароизоляционная мембрана, ПМК, обшивка 12.5 мм.

Кровля

Профиль СуперМонтеррей с устройством гидроизоляции подкровельного пространства. Крепление кровельными саморезами.

Окна

ПВХ двухкамерный стеклопакет с москитными сетками. Под окнами устанавливаются отливы (цвет белый).

Двери дома

Входная металлическая. Внутренние ламинированные.

Вентиляция

Естественная, с/у и кухни. Место установки изолированного вентиляционного выхода и вентиляционных решеток не регламентируется и определяется проектом.

Электрика

-

Отопление

-

Водоподготовка

-

Канализация

-

ПМЖ+ Каркасная
3 208 000 р.
цена по акции до 30.09
3 312 000 р.
цена по ипотеке
3 912 000 р.
цена в рассрочку
639 348 р. АКЦИЯ *

Пакет инженерные коммуникации: отопление от электрокотла, горячее и холодное водоснабжение (монтаж внутри дома), канализация на 3-х пользователей, прокладка электропроводки в пластиковых коробах.

Заказать дом Смотреть комплектацию
Фундамент дома

Свайно-винтовой (сваи D=108 мм, L=2500 мм). Нижняя обвязка- труба профильная металлическая 120х80 мм, гидроизоляция фундамента-рубероид в два слоя, монтажная доска ПМК обработана огнебиозащитой. Отделка фундамента дома ОСП-9 по обрешетке, H=400 мм. По фундаменту установлены отливы (в цвет кровли).

Огнебиозащита, антисептирование

Огнебиозащита нижней обвязки, лаг пола и чернового пола в 2 слоя.

Конструкция пола 1-го этажа

Толщина конструкции: 229мм. Настил пола ОСП-22 мм; пароизоляция Тераспан Б (или аналог); клееный Т-профиль 73х207 мм усиленной конструкции; минеральная вата Урса М11 (или аналог) 200мм; ветро-изоляционная мембрана Тераспан А (или аналог); черновой пол толщиной 10мм. Балки пола и черновой пол обработаны огнебиозащитой.

Утепление пола 1-го этажа

Утепление пола 1 этажа 200 мм минеральной ватой.

Настил пола 1-го этажа

ОСП 22 мм.

Стены 1 го этажа

Толщина стен 235 мм. Высота потолка 2.53 м. (от балок пола до балок перекрытия). Внутренняя обшивка 12.5 мм, пароизоляционная мембрана, ПМК, повторитель стоек ПМК для перекрестного утепления (бьется снаружи горизонтально), минеральная вата 200 мм, гидро-ветроизоляционная мембрана, наружная обшивка сайдинг Альта профиль «Аляска» (стыковка внахлест) по контр-рейке, по ветрозащите, по ОСП-9.

Перекрытие 1-го этажа

Толщина конструкции 159 мм, ПМК, минеральная вата 200 мм, пароизоляционная мембрана, обшивка 12.5 мм.

Перегородки

Толщина перегородок 122 мм. Обшивка 12.5 мм, пароизоляционная мембрана, минеральная вата 100 мм, пароизоляционная мембрана, ПМК, обшивка 12.5 мм.

Кровля

Профиль СуперМонтеррей с устройством гидроизоляции подкровельного пространства. Крепление кровельными саморезами.

Окна

ПВХ двухкамерный стеклопакет с москитными сетками. Под окнами устанавливаются отливы (цвет белый).

Двери дома

Входная металлическая. Внутренние ламинированные.

Вентиляция

Естественная, с/у и кухни. Место установки изолированного вентиляционного выхода и вентиляционных решеток не регламентируется и определяется проектом.

Электрика

Прокладка электропроводки в пластиковых коробах.

Отопление

Электрическое отопление. Двухтрубная система отопления, алюминиевые радиаторы, запорная арматура, электрический котёл.

Водоподготовка

Разводка по дому горячего и холодного водоснабжения до точки пользования с запорной арматурой. Водонагреватель ГВС на 50л.

Канализация

Канализация включает в себя разводку канализационных труб для обеспечения слива воды под каждую точку водоразбора, в том числе под унитаз. Септик. Залповый сброс 150 л. Производительность 0,6 куб. м. в сутки. Количество пользователей — 3 чел. Потребляемая мощность 2 кВт сутки.

В любую комплектацию возможно внести изменения!

Доставка свыше 100 км от производственной базы (Московская область, г. Бронницы, с. Заворово):
Осень/Зима/ПМЖ 0 руб./км
дом с блочным фундаментом 801 руб./км
дом со свайно-винтовым фундаментом 937 руб./км
Дом со свайно-забивным (ЖБИ) фундаментом 1003 руб./км
Лето 0 руб./км
дом с блочным фундаментом 0 руб./км
дом со свайно-винтовым фундаментом 0 руб./км
Дом со свайно-забивным (ЖБИ) фундаментом 0 руб./км
Видеообзор
Фотообзор
Фотообзор Садовод 7х8 Модус - 1

Желание выделиться и заявить о себе — это здорово! А сделать это можно с помощью яркого фасада дома.

Фотообзор Садовод 7х8 Модус - 2

В гостиной много места. Это хорошо для любителей шумных компаний и веселого времяпрепровождения. 

Фотообзор Садовод 7х8 Модус - 3

Детскую можно обставить по желанию ребенка. Здесь уместится все самое необходимое. 

Фотообзор Садовод 7х8 Модус - 4

Спальня просторная и уютная. 

Фотообзор Садовод 7х8 Модус - 5

Санузел совмещенный и вместительный. 

Другие проекты
Отправить заявку на проект
Комплектация
Не важно
  • Осень
  • Зима
  • ПМЖ
  • ПМЖ+
Город*
Выберите город
  • Москва и область
  • Рязань и область
  • Другой
Планировка
Выберите планировку
  • Планировка 1