Статус 10х11 Яхрома

от 2 403 000р.

Мечтаете об уютном коттедже? Статус 10х11 Яхрома — отличный выбор!

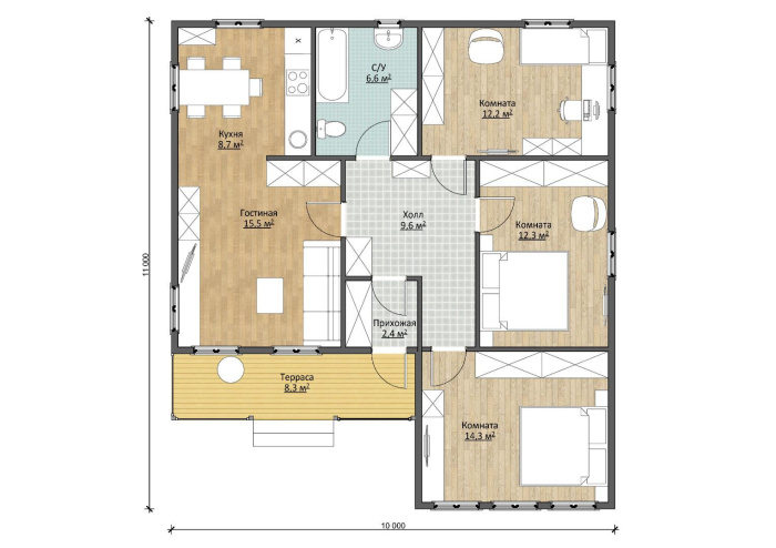
Общая площадь дома — 89,92 м2, в нем поместится семья из 4-х человек: родители и 2 ребенка. 

От ветра и холода дом защищает тамбур или прихожая площадью 2,4 м2. Здесь можно поместить обувницу, чтобы не заносить грязь с обуви домой. По правую сторону от входа идет череда спальных комнат размером 14,3 м2, 12,3 м2 и 12,2 м2. По желанию их назначение можно изменить на кабинет, комнату отдыха или игровую. 

Слева находится просторная гостиная (15,5 м2), совмещенная с кухней (8,7 м2). Очень удобно готовить еду и сразу нести ее ко столу. Санузел просторный — 6,6 м2, и вмещает в себе не только сантехнику, но и бытовые приборы. 

Любите отдых на природе? Отлично, ведь к дому пристроена терраса (8,3 м2). Осталось обставить ее садовой мебелью, и можно устраивать пикники.

Планировку дома вы можете изменить на свое усмотрение, а также добавить дополнительные услуги в проект. Также оформление фасада в ваших руках, выбирайте любые цвета и материалы.

Срок строительства — от 20 дней. 

 

 

Планировки дома *
Планировка 1
* Размеры и площади указаны без учета наружной и внутренней отделки и в разных комплектациях могут меняться (из-за толщины утеплителя, стен и перегородок). Подробности уточняйте у менеджера.
Комплектации
Осень Каркасная
3 443 000 р.
старая цена
2 403 000 р.
цена по акции до 30.09
3 552 000 р.
цена по ипотеке
4 199 000 р.
цена в рассрочку
224 841 р.

Пакет инженерные коммуникации. Подведение труб горячей и холодной воды, прокладка канализационных труб, водонагреватель. Устройство канализации внутри дома. Прокладка электропроводки в пластиковых коробах.

Заказать дом Смотреть комплектацию
Фундамент дома

Свайно-винтовой (сваи D=108 мм, L=2500 мм). Гидроизоляция фундамента — рубероид в два слоя. Замкнутая нижняя обвязка толщиной 145 мм.

Огнебиозащита, антисептирование

нет

Конструкция пола 1-го этажа

Толщина конструкции: 229 мм., Настил пола ОСП-22 мм; пароизоляция Тераспан Б (или аналог); клееный Т-профиль 73х207 мм усиленной конструкции; минеральная вата Урса М11 (или аналог) 150мм; ветро-изоляционная мембрана Тераспан А (или аналог); черновой пол толщиной 10мм.

Утепление пола 1-го этажа

Утепление пола минеральной ватой 150 мм.

Настил пола 1-го этажа

ОСП 22 мм.

Стены 1 го этажа

Толщина стен 172 мм. Высота потолка 2 533 мм (от балок пола до балок перекрытий). Внутренняя обшивка 12.5 мм, пароизоляция, ПМК, минеральная вата 150 мм, ветро-изоляционная мембрана, наружная обшивка 12.5 мм.

Перекрытие 1-го этажа

Толщина конструкции 159 мм, ПМК. Минеральная вата 50 мм, пароизоляция, обшивка 12.5 мм.

Перегородки

Толщина перегородок 122 мм. Обшивка 12.5 мм, ПМК, обшивка 12.5 мм.

Фронтоны, Кровля

Толщина фронтонов 109 мм, ПМК, ветро-изоляционная мембрана, наружная обшивка 12.5 мм. Оцинкованный профилированный лист. Крепление кровельными саморезами по обрешетке, вентиляционный зазор ПМК, гидро-пароизоляционная мембрана.

Окна

ПВХ однокамерный стеклопакет, цвет белый. Под окнами установлены отливы (цвет коричневый)

Двери дома

Входная металлическая. Внутренние ламинированные.

Вентиляция

-

Электрика

-

Отопление

-

Водоподготовка

-

Канализация

-

Зима Каркасная
4 028 000 р.
старая цена
3 313 000 р.
цена по акции до 30.09
4 149 000 р.
цена по ипотеке
4 912 000 р.
цена в рассрочку
224 841 р.

Пакет инженерные коммуникации. Подведение труб горячей и холодной воды, прокладка канализационных труб, водонагреватель. Устройство канализации внутри дома. Прокладка электропроводки в пластиковых коробах.

Заказать дом Смотреть комплектацию
Фундамент дома

Свайно-винтовой (сваи D=108 мм, L=2500 мм). По фундаменту установлены отливы (цвет белый). Гидроизоляция фундамента — рубероид в два слоя. Замкнутая нижняя обвязка толщиной 145 мм.

Огнебиозащита, антисептирование

Огнебиозащита нижней обвязки, лаг пола и чернового пола в 2 слоя.

Конструкция пола 1-го этажа

Толщина конструкции: 229 мм., Настил пола ОСП-22 мм; пароизоляция Тераспан Б (или аналог); клееный Т-профиль 73х207 мм усиленной конструкции; минеральная вата Урса М11 (или аналог) 200мм; ветро-изоляционная мембрана Тераспан А (или аналог); черновой пол толщиной 10мм. Балки пола и черновой пол обработаны огнебиозащитой.

Утепление пола 1-го этажа

Утепление пола минеральной ватой 200 мм.

Настил пола 1-го этажа

ОСП 22 мм.

Стены 1 го этажа

Толщина стен 172 мм. Высота потолка 2 533 мм (от балок пола до балок перекрытий). Внутренняя обшивка 12.5 мм, пароизоляция, ПМК, минеральная вата 150 мм, ветро-изоляционная мембрана, наружная обшивка сайдинг Альта профиль «Альта классика» (стыковка внахлест) по ОСП-9, по вентфасаду ПМК.

Перекрытие 1-го этажа

Толщина конструкции 159 мм, ПМК, минеральная вата 150 мм, пароизоляция, обшивка 12.5 мм.

Перегородки

Толщина перегородок 122 мм. Обшивка 12.5 мм, ПМК, обшивка 12.5 мм.

Фронтоны, Кровля

Толщина фронтонов 136 мм, ПМК, ветро-изоляционная мембрана, наружная обшивка сайдинг Альта профиль «Альта классика» (стыковка внахлест) по ОСП-9, по вентфасаду ПМК. Профиль СуперМонтеррей (цвет коричневый). Крепление кровельными саморезами по обрешетке, вентиляционный зазор ПМК, гидро-пароизоляционная мембрана.

Окна

ПВХ однокамерный стеклопакет, цвет белый. Под окнами установлены отливы (цвет белый).

Двери дома

Входная металлическая. Внутренние ламинированные.

Вентиляция

-

Электрика

-

Отопление

-

Водоподготовка

-

Канализация

-

ПМЖ Каркасная
4 472 000 р.
старая цена
3 615 000 р.
цена по акции до 30.09
4 486 000 р.
цена по ипотеке
5 454 000 р.
цена в рассрочку
224 841 р.

Пакет инженерные коммуникации. Подведение труб горячей и холодной воды, прокладка канализационных труб, водонагреватель. Устройство канализации внутри дома. Прокладка электропроводки в пластиковых коробах.

Заказать дом Смотреть комплектацию
Фундамент дома

Свайно-винтовой (сваи D=108 мм, L=2500 мм). Нижняя обвязка труба профильная металлическая 120х80 мм, гидроизоляция фундамента — рубероид в два слоя, монтажная доска ПМК обработана огнебиозащитой. Отделка фундамента дома ОСП-9 по обрешетке П/м, H=400 мм. По фундаменту установлены отливы (цвет белый).

Огнебиозащита, антисептирование

Огнебиозащита нижней обвязки, лаг пола и чернового пола в 2 слоя.

Конструкция пола 1-го этажа

Толщина конструкции: 229 мм. Настил пола ОСП-22 мм; пароизоляция Тераспан Б (или аналог); клееный Т-профиль 73х207 мм усиленной конструкции; минеральная вата Урса М11 (или аналог) 200мм; ветро-изоляционная мембрана Тераспан А (или аналог); черновой пол толщиной 10мм. Балки пола и черновой пол обработаны огнебиозащитой.

Утепление пола 1-го этажа

Утепление пола минеральной ватой 200 мм.

Настил пола 1-го этажа

ОСП 22 мм.

Стены 1 го этажа

Толщина стен 245 мм. Высота потолка 2 533 мм (от балок пола до балок перекрытий). Внутренняя обшивка 12.5 мм, пароизоляция, ПМК, повторитель стоек ПМК для перекрестного утепления (бьется снаружи горизонтально), минеральная вата 200 мм, ветро-изоляционная мембрана, наружная обшивка сайдинг Альта профиль «Альта классика» (стыковка внахлест) по ОСП-9, по вентфасаду ПМК.

Перекрытие 1-го этажа

Толщина конструкции 159 мм, ПМК. Минеральная вата 200 мм, пароизоляция, обшивка 12.5 мм.

Перегородки

Толщина перегородок 122 мм. Обшивка 12.5 мм, пароизоляция, минеральная вата 100 мм, ПМК, обшивка 12.5 мм.

Фронтоны, Кровля

Толщина фронтонов 183 мм. ПМК, повторитель стоек ПМК, ветро-изоляционная мембрана, вентфасад ПМК. Наружная обшивка Альта профиль «Альта классика» (стыковка внахлест) по ОСП-9, по вентфасаду ПМК. Профиль СуперМонтеррей (цвет коричневый). Крепление кровельными саморезами по обрешетке, вентиляционный зазор ПМК, гидро-пароизоляционная мембрана.

Окна

ПВХ двухкамерный стеклопакет, цвет белый с москитными сетками. Под окнами устанавливаются отливы (цвет белый).

Двери дома

Входная металлическая. Внутренние ламинированные.

Вентиляция

Естественная, с/у и кухни Место установки изолированного вентиляционного выхода и вентиляционных решеток не регламентируется и определяется проектом.

Электрика

-

Отопление

-

Водоподготовка

-

Канализация

-

ПМЖ+ Каркасная
5 139 000 р.
цена по акции до 30.09
5 282 000 р.
цена по ипотеке
6 267 000 р.
цена в рассрочку
781 037 р. АКЦИЯ *

Пакет инженерные коммуникации: отопление от электрокотла, горячее и холодное водоснабжение (монтаж внутри дома), канализация Септик Евролос, прокладка электропроводки в пластиковых коробах.

Заказать дом Смотреть комплектацию
Фундамент дома

Свайно-винтовой (сваи D=108 мм, L=2500 мм). Нижняя обвязка труба профильная металлическая 120х80 мм, гидроизоляция фундамента — рубероид в два слоя, монтажная доска ПМК обработана огнебиозащитой. Отделка фундамента дома ОСП-9 по обрешетке П/м, H=400 мм. По фундаменту установлены отливы (цвет белый).

Огнебиозащита, антисептирование

Огнебиозащита нижней обвязки, лаг пола и чернового пола в 2 слоя.

Конструкция пола 1-го этажа

Толщина конструкции: 229 мм. Настил пола ОСП-22 мм; пароизоляция Тераспан Б (или аналог); клееный Т-профиль 73х207 мм усиленной конструкции; минеральная вата Урса М11 (или аналог) 200мм; ветро-изоляционная мембрана Тераспан А (или аналог); черновой пол толщиной 10мм. Балки пола и черновой пол обработаны огнебиозащитой.

Утепление пола 1-го этажа

Утепление пола минеральной ватой 200 мм

Настил пола 1-го этажа

ОСП 22 мм.

Стены 1 го этажа

Толщина стен 245 мм. Высота потолка 2 533 мм (от балок пола до балок перекрытий). Внутренняя обшивка 12.5 мм, пароизоляция, ПМК, повторитель стоек ПМК для перекрестного утепления (бьется снаружи горизонтально), минеральная вата 200 мм, ветро-изоляционная мембрана, наружная обшивка сайдинг Альта профиль «Альта классика» (стыковка внахлест) по ОСП-9, по вентфасаду ПМК.

Перекрытие 1-го этажа

Толщина конструкции 159 мм, ПМК. Минеральная вата 200 мм, пароизоляция, обшивка 12.5 мм.

Перегородки

Толщина перегородок 122 мм. Обшивка 12.5 мм, пароизоляция, минеральная вата 100 мм, ПМК, обшивка 12.5 мм.

Фронтоны, Кровля

Толщина фронтонов 183 мм. ПМК, повторитель стоек ПМК, ветро-изоляционная мембрана, вентфасад ПМК. Наружная обшивка Альта профиль «Альта классика» (стыковка внахлест) по ОСП-9, по вентфасаду ПМК. Профиль СуперМонтеррей (цвет коричневый). Крепление кровельными саморезами по обрешетке, вентиляционный зазор ПМК, гидро-пароизоляционная мембрана.

Окна

ПВХ двухкамерный стеклопакет, цвет белый с москитными сетками. Под окнами устанавливаются отливы (цвет белый).

Двери дома

Входная металлическая. Внутренние ламинированные.

Вентиляция

Естественная, с/у и кухни Место установки изолированного вентиляционного выхода и вентиляционных решеток не регламентируется и определяется проектом.

Электрика

Прокладка электропроводки в пластиковых коробах

Отопление

Электрическое отопление. Двухтрубная система отопления, алюминиевые радиаторы, запорная арматура, электрический котёл.

Водоподготовка

Разводка по дому горячего и холодного водоснабжения до точки пользования с запорной арматурой. Водонагреватель ГВС на 50 л.

Канализация

Канализация включает в себя разводку канализационных труб для обеспечения слива воды под каждую точку водоразбора, в том числе под унитаз. Септик. Залповый сброс 150 л. Производительность 0,6 куб. м. в сутки. Количество пользователей — 3 чел. Потребляемая мощность 2 кВт сутки.

В любую комплектацию возможно внести изменения!

Доставка свыше 100 км от производственной базы (Московская область, г. Бронницы, с. Заворово):
дом без фундамента 1206 руб./км
дом со свайно-винтовым фундаментом 1439 руб./км
дом со свайно-забивным (ЖБИ) фундаментом 1505 руб./км
Видеообзор
Другие проекты
Отправить заявку на проект
Комплектация
Не важно
  • Осень
  • Зима
  • ПМЖ
  • ПМЖ+
Город*
Выберите город
  • Москва и область
  • Рязань и область
  • Другой
Планировка
Выберите планировку
  • Планировка 1