Статус 8,5х17 Альфа

от 0р.

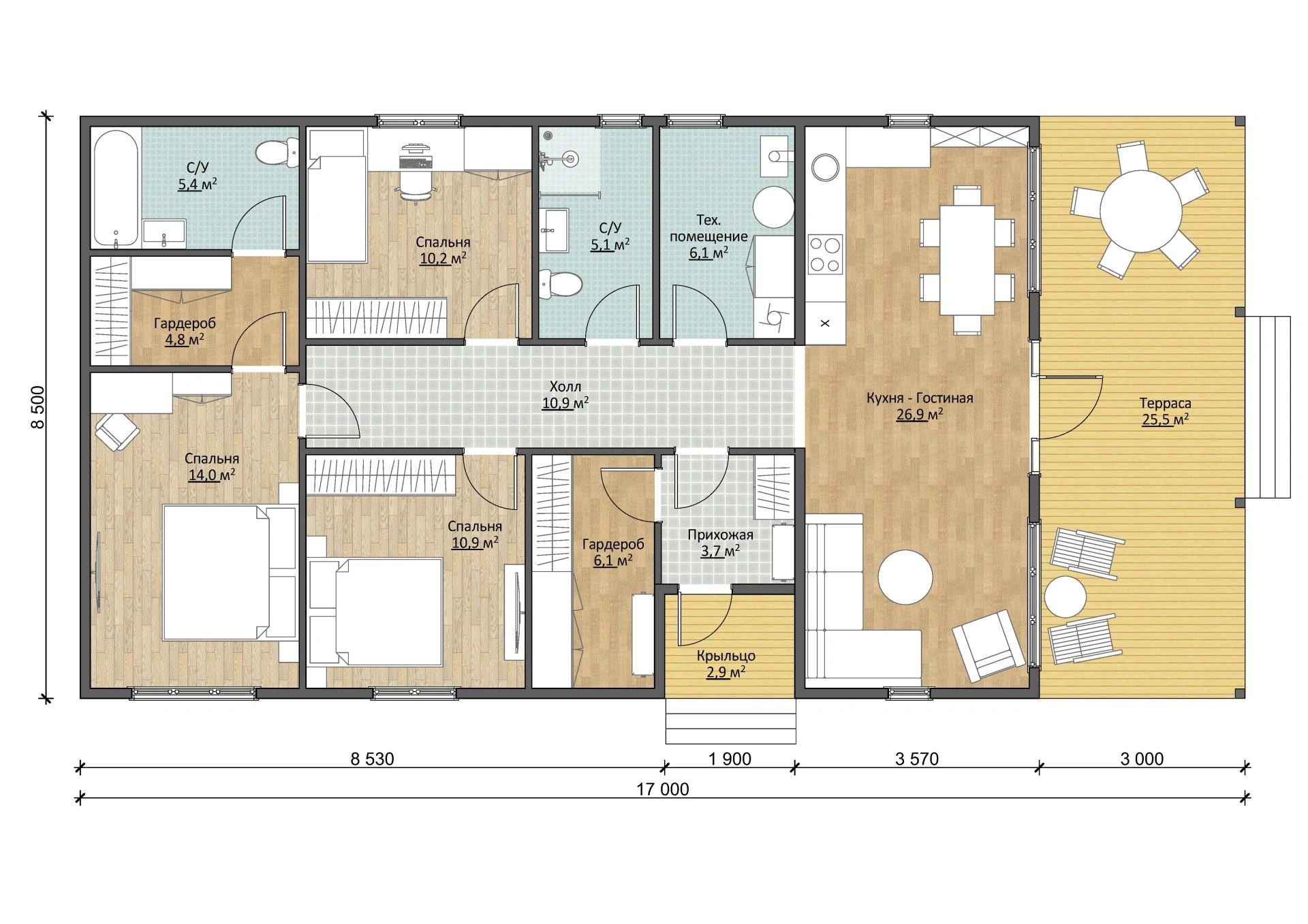
У вас большая и дружная семья? Статус 8,5х17 Альфа — вместит всех ваших домочадцев под своей теплой и просторной крышей!

Только посмотрите, какой вместительный одноэтажный коттедж: Идеальный вариант для ваших пожилых родителей и маленьких детей.

Обратите внимание на огромную террасу при входе — 25,5 м2. Здесь ваша неразлучная семья будет проводить совместные приемы пищи на свежем воздухе.

Помимо этого, в доме предусмотрены:

  • кухня-гостиная 26,9 м2;
  • тех.помещение 6,1 м2;
  • 3 спальни 10,2 м2, 10,9 м2, 14 м2;
  • 2 санузла 5,1 м2 и 5,4 м2;
  • 2 гардеробных 4,8 м2 и 6,1 м2.

Расположение и назначение комнат вы можете менять самостоятельно. Вносите любые правки в свой будущий дом

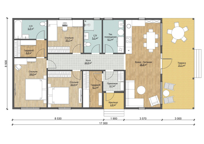
Планировки дома *
Планировка 1
* Размеры и площади указаны без учета наружной и внутренней отделки и в разных комплектациях могут меняться (из-за толщины утеплителя, стен и перегородок). Подробности уточняйте у менеджера.
Комплектации
Осень Каркасная
4 845 000 р.
цена по акции до 30.09
4 999 000 р.
цена по ипотеке
5 909 000 р.
цена в рассрочку
Заказать дом Смотреть комплектацию
Фундамент дома

Свайно-винтовой (сваи D=108 мм, L=2500 мм). Гидроизоляция фундамента - рубероид в два слоя. Замкнутая нижняя обвязка толщиной 145 мм П/м.

Полы

Толщина конструкции: 229 мм., Настил пола ОСП-22 мм; пароизоляция Тераспан Б (или аналог); клееный Т-профиль 73х207 мм усиленной конструкции; минеральная вата Урса М11 (или аналог) 150мм; ветро-изоляционная мембрана Тераспан А (или аналог); черновой пол толщиной 10мм.

Стены

Толщина стен 172 мм Высота потолка 2 533 мм (от настила пола до балок перекрытий). Внутренняя обшивка 12,5 мм; пароизоляция Тераспан Б (или аналог); ПМК; минеральная вата Урса П15 (или аналог) 150 мм; ; ветро-изоляционная мембрана Тераспан А (или аналог); наружная обшивка 12,5 мм;

Перегородки

Толщина перегородок: 122 мм Обшивка 12.5 мм, ПМК; обшивка 12.5 мм

Перекрытия

Толщина конструкции: 159,5 мм.; обшивка 12,5 мм; пароизоляция Тераспан Б (или аналог); ПМК; Минеральная вата Урса М11 (или аналог) 50 мм.

Фронтоны

Толщина фронтонов: 109,5 мм ПМК(1), ветро-изоляционная мембрана Тераспан А (или аналог), наружная обшивка 12,5 мм. Толщина фронтонов: 172 мм (в помещении со вторым светом) Внутренняя обшивка 12,5 мм; пароизоляция Тераспан Б (или аналог); ПМК; минеральная вата Урса П15 (или аналог) 150 мм; ветро-изоляционная мембрана Тераспан А (или аналог); наружная обшивка 12,5 мм;

Стропильная часть

Толщина конструкции 216 мм ПМК; гидро-ветрозащитная мембрана Тераспан АМ (или аналог). вентиляционный зазор ПМК; Обрешетка П/м Толщина конструкции 228 мм (в помещении со вторым светом) Потолок подшивается по стропилам обшивкой 12,5 мм; пароизоляция Тераспан Б (или аналог), ПМК; минеральная вата Урса П15 (или аналог) 50 мм; гидро-ветрозащитная мембрана Тераспан АМ (или аналог). вентиляционный зазор ПМК; Обрешетка П/м

Кровля

Оцинкованный профилированный лист. Крепление кровельными саморезами.

Двери

Входная металлическая. Внутренние ламинированные.

Окна

ПВХ однокамерный стеклопакет, цвет белый. Под окнами установлены отливы (цвет белый)

Электрика

-

Отопление

-

Водоподготовка

-

Канализация

-

Зима Каркасная
5 429 000 р.
цена по акции до 30.09
5 578 000 р.
цена по ипотеке
6 621 000 р.
цена в рассрочку
Заказать дом Смотреть комплектацию
Фундамент дома

Свайно-винтовой (сваи D=108 мм, L=2500 мм). Гидроизоляция фундамента - рубероид в два слоя. Замкнутая нижняя обвязка толщиной 145 мм П/м обработана огнебиозащитой. По фундаменту установлены отливы (цвет коричневый)

Полы

Толщина конструкции: 229 мм., Настил пола ОСП-22 мм; пароизоляция Тераспан Б (или аналог); клееный Т-профиль 73х207 мм усиленной конструкции; минеральная вата Урса М11 (или аналог) 200мм; ветро-изоляционная мембрана Тераспан А (или аналог); черновой пол толщиной 10мм. Балки пола и черновой пол обработаны огнебиозащитой.

Стены

Толщина стен 203,5 мм Высота потолка 2 533 мм (от настила пола до балок перекрытий). Внутренняя обшивка 12,5 мм; пароизоляция Тераспан Б (или аналог); ПМК минеральная вата Урса П15 (или аналог) 150 мм; ветро-изоляционная мембрана Тераспан А (или аналог); наружная обшивка сайдинг Альта профиль «Альта классика» (цвет бежевый) (стыковка внахлест) по ОСП-9, по вентфасаду ПМК

Перегородки

Толщина перегородок: 122 мм Обшивка 12.5 мм, ПМК; обшивка 12.5 мм

Перекрытия

Толщина конструкции: 159 мм.; обшивка 12,5 мм; пароизоляция Тераспан Б (или аналог); ПМК; Минеральная вата Урса М11 (или аналог) 150 мм.

Фронтоны

Толщина конструкции 141 мм ПМК; ветро-изоляционная мембрана Тераспан А (или аналог), наружная обшивка сайдинг Альта профиль «Альта классика» (цвет бежевый) (стыковка внахлест) по ОСП-9, по вентфасаду ПМК. Толщина фронтонов: 203,5 мм (в помещении со вторым светом) Внутренняя обшивка 12,5 мм; пароизоляция Тераспан Б (или аналог); ПМК(1); минеральная вата Урса П15 (или аналог) 150 мм; ветро-изоляционная мембрана Тераспан А (или аналог); наружная обшивка сайдинг Альта профиль «Альта классика» (цвет бежевый) (стыковка внахлест) по ОСП-9, по вентфасаду ПМК

Стропильная часть

Толщина конструкции 216 мм ПМК; гидро-ветрозащитная мембрана Тераспан АМ (или аналог). вентиляционный зазор ПМК(1); Обрешетка П/м Толщина конструкции 228 мм (в помещении со вторым светом) Потолок подшивается по стропилам обшивкой 12,5 мм; пароизоляция Тераспан Б (или аналог), ПМК; минеральная вата Урса П15 (или аналог) 150 мм; гидро-ветрозащитная мембрана Тераспан АМ (или аналог). вентиляционный зазор ПМК; Обрешетка П/м Толщина конструкции 216 мм ПМК(1); гидро-ветрозащитная мембрана Тераспан АМ (или аналог). вентиляционный зазор ПМК(1); Обрешетка П/м Толщина конструкции 228 мм (в помещении со вторым светом) Потолок подшивается по стропилам обшивкой 12,5 мм; пароизоляция Тераспан Б (или аналог), ПМК; минеральная вата Урса П15 (или аналог) 150 мм; гидро-ветрозащитная мембрана Тераспан АМ (или аналог). вентиляционный зазор ПМК; Обрешетка П/м

Кровля

Профиль СуперМонтеррей (цвет коричневый). Крепление кровельными саморезами.

Двери

Входная металлическая. Внутренние ламинированные.

Окна

ПВХ однокамерный стеклопакет, цвет белый. Под окнами установлены отливы (цвет белый)

Электрика

-

Отопление

-

Водоподготовка

-

Канализация

-

ПМЖ Каркасная
6 173 000 р.
цена по акции до 30.09
6 178 000 р.
цена по ипотеке
7 528 000 р.
цена в рассрочку
Заказать дом Смотреть комплектацию
Фундамент дома

Свайно-винтовой (сваи D=108 мм, L=2500 мм). Нижняя обвязка- труба профильная металлическая 120х80 мм; Гидроизоляция фундамента-рубероид в два слоя ; монтажная доска ПМК; обработана огнебиозащитой. Отделка фундамента дома ОСП-9 по обрешетке П/м, H=400 мм. По фундаменту установлены отливы (цвет коричневый).

Полы

Толщина конструкции: 229 мм. Настил пола ОСП-22 мм; пароизоляция Тераспан Б (или аналог); клееный Т-профиль 73х207 мм усиленной конструкции; минеральная вата Урса М11 (или аналог) 200мм; ветро-изоляционная мембрана Тераспан А (или аналог); черновой пол толщиной 10мм. Балки пола и черновой пол обработаны огнебиозащитой.

Стены

Толщина стен 250,5 мм. . Высота потолка 2 540 мм (от настила пола до балок перекрытия). Внутренняя обшивка 12,5 мм; пароизоляция Тераспан Б (или аналог); ПМК; повторитель стоек ПМК; для перекрестного утепления (бьется снаружи горизонтально); минеральная вата Урса П15 (или аналог) 200мм; ветро-изоляционная мембрана Тераспан А (или аналог); наружная обшивка сайдинг Альта профиль «Альта классика» (цвет бежевый) (стыковка внахлест) по ОСП-9, по вентфасаду ПМК

Перегородки

Толщина перегородок: 122мм Обшивка 12.5мм, пароизоляция Тераспан Б (или аналог), минеральная вата Урса П15 (или аналог) 100мм ПМК; пароизоляция Тераспан Б (или аналог), обшивка 12.5мм

Перекрытия

Толщина конструкции: 159 мм.; обшивка 12,5 мм; пароизоляция Тераспан Б (или аналог); ПМК; Минеральная вата Урса М11 (или аналог) 200 мм.

Фронтоны

Толщина конструкции 188 мм ПМК; повторитель стоек ПМК; ветро-изоляционная мембрана Тераспан А (или аналог); вентфасад ПМК наружная обшивка сайдинг «Альта классика» (цвет бежевый) (стыковка внахлест) по ОСП-9, по вентфасаду ПМК Толщина стен 250,5 мм (в помещении со вторым светом) Внутренняя обшивка 12,5 мм; пароизоляция Тераспан Б (или аналог); ПМК; повторитель стоек ПМК; для перекрестного утепления (бьется снаружи горизонтально); минеральная вата Урса П15 (или аналог) 200мм; ветро-изоляционная мембрана Тераспан А (или аналог); наружная обшивка сайдинг Альта профиль «Альта классика» (цвет бежевый) (стыковка внахлест) по ОСП-9, по вентфасаду ПМК

Стропильная часть

Толщина конструкции 216 мм ПМК; гидро-ветрозащитная мембрана Тераспан АМ (или аналог). вентиляционный зазор ПМК(1); Обрешетка П/м Толщина конструкции 310,5 мм (в помещении со вторым светом) Потолок подшивается по стропилам обшивкой 12,5 мм; ПМК для разворачивания обшивки; пароизоляция Тераспан Б (или аналог), повторитель стропил ПМК(1); для перекрестного утепления ПМК;, минеральная вата Урса П15 (или аналог) 200 мм. гидро-ветрозащитная мембрана Тераспан АМ (или аналог); вентиляционный зазор ПМК; Обрешетка П/м

Кровля

Профиль СуперМонтеррей (цвет коричневый). Крепление кровельными саморезами.).

Двери

Входная металлическая. Внутренние ламинированные.

Окна

ПВХ двухкамерный стеклопакет, цвет белый с москитными сетками. Под окнами установлены отливы (цвет белый)

Электрика

-

Отопление

-

Водоподготовка

-

Канализация

-

ПМЖ+ Каркасная
6 925 000 р.
цена по акции до 30.09
7 104 000 р.
цена по ипотеке
8 445 000 р.
цена в рассрочку
Заказать дом Смотреть комплектацию
Фундамент дома

Свайно-винтовой (сваи D=108 мм, L=2500 мм). Нижняя обвязка- труба профильная металлическая 120х80 мм; Гидроизоляция фундамента-рубероид в два слоя ; монтажная доска ПМК; обработана огнебиозащитой. Отделка фундамента дома ОСП-9 по обрешетке П/м, H=400 мм. По фундаменту установлены отливы (цвет коричневый).

Полы

Толщина конструкции: 229 мм. Настил пола ОСП-22 мм; пароизоляция Тераспан Б (или аналог); клееный Т-профиль 73х207 мм усиленной конструкции; минеральная вата Урса М11 (или аналог) 200мм; ветро-изоляционная мембрана Тераспан А (или аналог); черновой пол толщиной 10мм. Балки пола и черновой пол обработаны огнебиозащитой.

Стены

Толщина стен 250,5 мм. . Высота потолка 2 540 мм (от настила пола до балок перекрытия). Внутренняя обшивка 12,5 мм; пароизоляция Тераспан Б (или аналог); ПМК; повторитель стоек ПМК; для перекрестного утепления (бьется снаружи горизонтально); минеральная вата Урса П15 (или аналог) 200мм; ветро-изоляционная мембрана Тераспан А (или аналог); наружная обшивка сайдинг Альта профиль «Альта классика» (цвет бежевый) (стыковка внахлест) по ОСП-9, по вентфасаду ПМК

Перегородки

Толщина перегородок: 122мм Обшивка 12.5мм, пароизоляция Тераспан Б (или аналог), минеральная вата Урса П15 (или аналог) 100мм ПМК; пароизоляция Тераспан Б (или аналог), обшивка 12.5мм

Перекрытия

Толщина конструкции: 159 мм.; обшивка 12,5 мм; пароизоляция Тераспан Б (или аналог); ПМК; Минеральная вата Урса М11 (или аналог) 200 мм.

Фронтоны

Толщина конструкции 188 мм ПМК; повторитель стоек ПМК; ветро-изоляционная мембрана Тераспан А (или аналог); вентфасад ПМК наружная обшивка сайдинг «Альта классика» (цвет бежевый) (стыковка внахлест) по ОСП-9, по вентфасаду ПМК Толщина стен 250,5 мм (в помещении со вторым светом) Внутренняя обшивка 12,5 мм; пароизоляция Тераспан Б (или аналог); ПМК; повторитель стоек ПМК; для перекрестного утепления (бьется снаружи горизонтально); минеральная вата Урса П15 (или аналог) 200мм; ветро-изоляционная мембрана Тераспан А (или аналог); наружная обшивка сайдинг Альта профиль «Альта классика» (цвет бежевый) (стыковка внахлест) по ОСП-9, по вентфасаду ПМК

Стропильная часть

Толщина конструкции 216 мм ПМК; гидро-ветрозащитная мембрана Тераспан АМ (или аналог). вентиляционный зазор ПМК(1); Обрешетка П/м Толщина конструкции 310,5 мм (в помещении со вторым светом) Потолок подшивается по стропилам обшивкой 12,5 мм; ПМК для разворачивания обшивки; пароизоляция Тераспан Б (или аналог), повторитель стропил ПМК(1); для перекрестного утепления ПМК;, минеральная вата Урса П15 (или аналог) 200 мм. гидро-ветрозащитная мембрана Тераспан АМ (или аналог); вентиляционный зазор ПМК; Обрешетка П/м

Кровля

Профиль СуперМонтеррей (цвет коричневый). Крепление кровельными саморезами.).

Двери

Входная металлическая. Внутренние ламинированные.

Окна

ПВХ двухкамерный стеклопакет, цвет белый с москитными сетками. Под окнами установлены отливы (цвет белый)

Электрика

Прокладка электропроводки в пластиковых коробах.

Отопление

Электрическое отопление. Двухтрубная система отопления, алюминиевые радиаторы, запорная арматура, электрический котёл.

Водоподготовка

Разводка по дому горячего и холодного водоснабжения до точки пользования с запорной арматурой. Водонагреватель ГВС на 50 л.

Канализация

Канализация включает в себя разводку канализационных труб для обеспечения слива воды под каждую точку водоразбора, в том числе под унитаз. Септик. Залповый сброс 150 л. Производительность 0,6 куб. м. в сутки. Количество пользователей — 3 чел. Потребляемая мощность 2 кВт сутки.

В любую комплектацию возможно внести изменения!

Доставка свыше 100 км от производственной базы (Московская область, г. Бронницы, с. Заворово):
дом без фундамента 1206 руб./км
дом со свайно-винтовым фундаментом 1439 руб./км
дом с монолитным фундаментом 1505 руб./км
Другие проекты
Отправить заявку на проект
Комплектация
Не важно
  • Осень
  • Зима
  • ПМЖ
  • ПМЖ+
Город*
Выберите город
  • Москва и область
  • Рязань и область
  • Другой
Планировка
Выберите планировку
  • Планировка 1