Статус 8х11 Веда

от 3 879 000р.

Коттедж Статус 8х11 Веда в 2 этажа с кухней, гостиной, пятью спальнями и двумя санузлами с общей площадью 166,09 м2. Прекрасное архитектурное решение для отдыха на даче всей семьей или постоянной жизни за городом.

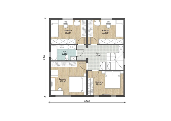
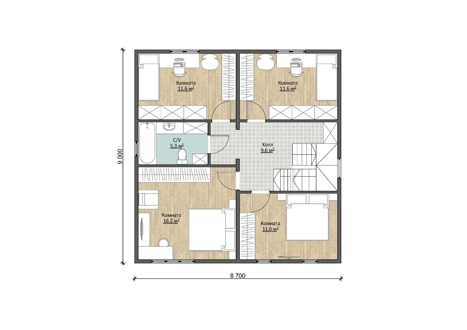
В гостиной 20,2 м2 идеально принимать гостей, а в 12,4-метровой комнате на первом этаже можно оборудовать кабинет или спальню. Санузел площадью в 4,7 м2 свободно вместит всю необходимую сантехнику. На втором этаже удобно организовать еще четыре спальни, или использовать некоторые комнаты под детские или зоны отдыха.

На улице также есть две зоны, где можно расслабиться: терраса (15,9 м2) и крыльцо (7 м2).

В дом можно провести канализацию, отопление и другие инженерные коммуникации, заказать отделку фасадов сайдингом и покраску. Предлагается установка свайно-винтового фундамента, гидроизоляция, ветрозащита пола и перекрытий. Возможно заказать дополнительное утепление стен.

Срок возведения дома под ключ — от 30 дней.

Планировки дома *
Планировка 1
1-й этаж Планировка 1
2-й этаж Планировка 1
* Размеры и площади указаны без учета наружной и внутренней отделки и в разных комплектациях могут меняться (из-за толщины утеплителя, стен и перегородок). Подробности уточняйте у менеджера.
Комплектации
Осень Каркасная
5 346 000 р.
старая цена
3 879 000 р.
цена по акции до 30.09
5 493 000 р.
цена по ипотеке
6 520 000 р.
цена в рассрочку
275 816 р.

Пакет инженерные коммуникации. Подведение труб горячей и холодной воды, прокладка канализационных труб, водонагреватель. Устройство канализации внутри дома. Прокладка электропроводки в пластиковых коробах.

Заказать дом Смотреть комплектацию
Фундамент дома

Свайно-винтовой (сваи D=108 м, L=2500 мм). Гидроизоляция фундамента — рубероид в два слоя. Замкнутая нижняя обвязка толщиной 145 мм.

Огнебиозащита, антисептирование

нет

Конструкция пола 1-го этажа

Толщина конструкции: 229 мм., Настил пола ОСП-22 мм; пароизоляция Тераспан Б (или аналог); клееный Т-профиль 73х207 мм усиленной конструкции; минеральная вата Урса М11 (или аналог) 150мм; ветро-изоляционная мембрана Тераспан А (или аналог); черновой пол толщиной 10мм.

Утепление пола 1-го этажа

Минеральная вата 150 мм.

Настил пола 1-го этажа

ОСП 22 мм

Стены 1 го этажа

Толщина стен 172 мм. Высота потолка 2 533 мм (от балок пола до балок перекрытий). Внутренняя обшивка 12,5 мм, пароизоляция, ПМК, минеральная вата 150 мм, ветро-изоляционная мембрана, наружная обшивка 12,5 мм.

Перекрытие 1-го этажа

Толщина конструкции: 228 мм., Настил пола ОСП-22 мм; пароизоляция Тераспан Б (или аналог); ПМК(1); минеральная вата Урса М11 (или аналог) 50мм; пароизоляция Тераспан Б

Второй этаж

Толщина стен 172 мм. Высота потолка 2 433 мм (от балок пола до балок перекрытий). Внутренняя обшивка 12,5 мм, ПМК, ветро-изоляционная мембрана, наружная обшивка 12,5 мм.

Перегородки

Толщина конструкции 122 мм. Обшивка 12,5 мм, ПМК, обшивка 12,5 мм.

Кровля

Оцинкованный профилированный лист. Крепление кровельными саморезами по обрешетке П/м, вентиляционный зазор ПМК, гидро-пароизоляционная мембрана.

Окна

ПВХ однокамерный стеклопакет (цвет белый). Под окнами установлены отливы (цвет белый).

Двери дома

Входная металлическая. Внутренние ламинированные.

Лестница

Деревянная клееная.

Вентиляция

-

Электрика

-

Отопление

-

Водоподготовка

-

Канализация

-

Зима Каркасная
6 132 000 р.
старая цена
4 591 000 р.
цена по акции до 30.09
6 295 000 р.
цена по ипотеке
7 478 000 р.
цена в рассрочку
275 816 р.

Пакет инженерные коммуникации. Подведение труб горячей и холодной воды, прокладка канализационных труб, водонагреватель. Устройство канализации внутри дома. Прокладка электропроводки в пластиковых коробах.

Заказать дом Смотреть комплектацию
Фундамент дома

Свайно-винтовой (сваи D=108 м, L=2500 мм). Гидроизоляция фундамента — рубероид в два слоя. Замкнутая нижняя обвязка толщиной 145 мм. обработана огнебиозащитой. По фундаменту установлены отливы (цвет белый).

Огнебиозащита, антисептирование

Огнебиозащита нижней обвязки, лаг пола и чернового пола в 2 слоя.

Конструкция пола 1-го этажа

Толщина конструкции: 229 мм., Настил пола ОСП-22 мм; пароизоляция Тераспан Б (или аналог); клееный Т-профиль 73х207 мм усиленной конструкции; минеральная вата Урса М11 (или аналог) 200мм; ветро-изоляционная мембрана Тераспан А (или аналог); черновой пол толщиной 10мм. Балки пола и черновой пол обработаны огнебиозащитой.

Утепление пола 1-го этажа

Минеральная вата 200 мм.

Настил пола 1-го этажа

ОСП 22 мм

Стены 1 го этажа

Толщина стен 198 мм. Высота потолка 2 533 мм (от балок пола до балок перекрытий). Внутренняя обшивка 12,5 мм, пароизоляция, ПМК, минеральная вата 150 мм, ветро-изоляционная мембрана, наружная обшивка сайдинг Альта профиль «Альта классика» (стыковка внахлест) по ОСП-9, по вентфасаду ПМК.

Перекрытие 1-го этажа

Толщина конструкции: 229,5 мм Настил пола ОСП-22 мм; пароизоляция Тераспан Б (или аналог); ПМК(1); минеральная вата Урса М11 (или аналог) 50мм; пароизоляция Тераспан Б

Второй этаж

Толщина стен 198 мм. Высота потолка 2 433 мм (от балок пола до балок перекрытий). Внутренняя обшивка 12,5 мм, пароизоляция, ПМК, минеральная вата 150 мм, ветро-изоляционная мембрана, наружная обшивка сайдинг Альта профиль «Альта классика» (стыковка внахлест) по ОСП-9, по вентфасаду ПМК.

Перегородки

Толщина конструкции 122 мм. Обшивка 12,5 мм, ПМК, обшивка 12,5 мм.

Кровля

Профиль СуперМонтеррей (цвет коричневый). Крепление кровельными саморезами по обрешетке П/м, вентиляционный зазор ПМК, гидро-пароизоляционная мембрана.

Окна

ПВХ однокамерный стеклопакет (цвет белый). Под окнами установлены отливы (цвет белый).

Двери дома

Входная металлическая. Внутренние ламинированные.

Лестница

Деревянная клееная.

Вентиляция

-

Электрика

-

Отопление

-

Водоподготовка

-

Канализация

-

ПМЖ Каркасная
6 905 000 р.
цена по акции до 30.09
6 906 000 р.
цена по ипотеке
8 421 000 р.
цена в рассрочку
275 816 р.

Пакет инженерные коммуникации. Подведение труб горячей и холодной воды, прокладка канализационных труб, водонагреватель. Устройство канализации внутри дома. Прокладка электропроводки в пластиковых коробах.

Заказать дом Смотреть комплектацию
Фундамент дома

Свайно-винтовой (сваи D=108 м, L=2500 мм). Нижняя обвязка — труба профильная металлическая 120х80 мм. Гидроизоляция фундамента — рубероид в два слоя. Монтажная доска ПМК обработана огнебиозащитой. Отделка фундамента дома ОСП-9 по обрешетке П/м, H=400 мм. По фундаменту установлены отливы (цвет белый).

Огнебиозащита, антисептирование

Огнебиозащита нижней обвязки, лаг пола и чернового пола в 2 слоя.

Конструкция пола 1-го этажа

Толщина конструкции: 229мм. Настил пола ОСП-22 мм; пароизоляция Тераспан Б (или аналог); клееный Т-профиль 73х207 мм усиленной конструкции; минеральная вата Урса М11 (или аналог) 200мм; ветро-изоляционная мембрана Тераспан А (или аналог); черновой пол толщиной 10мм. Балки пола и черновой пол обработаны огнебиозащитой.

Утепление пола 1-го этажа

Минеральная вата 200 мм.

Настил пола 1-го этажа

ОСП 22 мм

Стены 1 го этажа

Толщина стен 245 мм. Высота потолка 2,50 м. Внутренняя обшивка 12,5 мм, пароизоляция, ПМК, повторитель стоек ПМК для перекрестного утепления (бьется снаружи горизонтально), минеральная вата 200 мм, ветро-изоляционная мембрана, наружная обшивка сайдинг Альта профиль «Альта классика» (стыковка внахлест) по ОСП-9, по вентфасаду ПМК.

Перекрытие 1-го этажа

Толщина конструкции: 181,5 мм. Настил пола ОСП-22 мм; пароизоляция Тераспан Б (или аналог); ПМК(1); Минеральная вата Урса М11 (или аналог) 100 мм; пароизоляция Тераспан Б (или аналог); обшивка 12.5мм(2)

Второй этаж

Толщина стен 245 мм. Высота потолка 2 433 мм (от балок пола до балок перекрытий). Внутренняя обшивка 12,5 мм, пароизоляция, ПМК, повторитель стоек ПМК для перекрестного утепления (бьется снаружи горизонтально), минеральная вата 200 мм, ветро-изоляционная мембрана, наружная обшивка сайдинг Альта профиль «Альта классика» (стыковка внахлест) по ОСП-9, по вентфасаду ПМК.

Перегородки

Толщина конструкции 122 мм. Обшивка 12,5 мм, пароизоляция, минеральная вата 100 мм, ПМК, пароизоляция, обшивка 12,5 мм.

Кровля

Профиль СуперМонтеррей (цвет коричневый). Крепление кровельными саморезами по обрешетке П/м, вентиляционный зазор ПМК, гидро-пароизоляционная мембрана.

Окна

ПВХ двухкамерный стеклопакет (цвет белый) с москитными сетками. Под окнами установлены отливы (цвет белый).

Двери дома

Входная металлическая. Внутренние ламинированные.

Лестница

Деревянная клееная.

Вентиляция

Естественная, с/у и кухни. Место установки изолированного вентиляционного выхода и вентиляционных решеток не регламентируется и определяется проектом.

Электрика

-

Отопление

-

Водоподготовка

-

Канализация

-

ПМЖ+ Каркасная
7 715 000 р.
цена по акции до 30.09
7 909 000 р.
цена по ипотеке
9 409 000 р.
цена в рассрочку
927 345 р. АКЦИЯ *

Пакет инженерные коммуникации: отопление от электрокотла, горячее и холодное водоснабжение (монтаж внутри дома), канализация Септик Евролос, прокладка электропроводки в пластиковых коробах.

Заказать дом Смотреть комплектацию
Фундамент дома

Свайно-винтовой (сваи D=108 м, L=2500 мм). Нижняя обвязка — труба профильная металлическая 120х80 мм. Гидроизоляция фундамента — рубероид в два слоя. Монтажная доска ПМК обработана огнебиозащитой. Отделка фундамента дома ОСП-9 по обрешетке П/м, H=400 мм. По фундаменту установлены отливы (цвет белый).

Огнебиозащита, антисептирование

Огнебиозащита нижней обвязки, лаг пола и чернового пола в 2 слоя.

Конструкция пола 1-го этажа

Толщина конструкции: 229мм. Настил пола ОСП-22 мм; пароизоляция Тераспан Б (или аналог); клееный Т-профиль 73х207 мм усиленной конструкции; минеральная вата Урса М11 (или аналог) 200мм; ветро-изоляционная мембрана Тераспан А (или аналог); черновой пол толщиной 10мм. Балки пола и черновой пол обработаны огнебиозащитой.

Утепление пола 1-го этажа

Минеральная вата 200 мм.

Настил пола 1-го этажа

ОСП 22 мм

Стены 1 го этажа

Толщина стен 245 мм. Высота потолка 2,50 м. Внутренняя обшивка 12,5 мм, пароизоляция, ПМК, повторитель стоек ПМК для перекрестного утепления (бьется снаружи горизонтально), минеральная вата 200 мм, ветро-изоляционная мембрана, наружная обшивка сайдинг Альта профиль «Альта классика» (стыковка внахлест) по ОСП-9, по вентфасаду ПМК.

Перекрытие 1-го этажа

Толщина конструкции: 181,5 мм. Настил пола ОСП-22 мм; пароизоляция Тераспан Б (или аналог); ПМК(1); Минеральная вата Урса М11 (или аналог) 100 мм; пароизоляция Тераспан Б (или аналог); обшивка 12.5мм(2)

Второй этаж

Толщина стен 245 мм. Высота потолка 2 433 мм (от балок пола до балок перекрытий). Внутренняя обшивка 12,5 мм, пароизоляция, ПМК, повторитель стоек ПМК для перекрестного утепления (бьется снаружи горизонтально), минеральная вата 200 мм, ветро-изоляционная мембрана, наружная обшивка сайдинг Альта профиль «Альта классика» (стыковка внахлест) по ОСП-9, по вентфасаду ПМК.

Перегородки

Толщина конструкции 122 мм. Обшивка 12,5 мм, пароизоляция, минеральная вата 100 мм, ПМК, пароизоляция, обшивка 12,5 мм.

Кровля

Профиль СуперМонтеррей (цвет коричневый). Крепление кровельными саморезами по обрешетке П/м, вентиляционный зазор ПМК, гидро-пароизоляционная мембрана.

Окна

ПВХ двухкамерный стеклопакет (цвет белый) с москитными сетками. Под окнами установлены отливы (цвет белый).

Двери дома

Входная металлическая. Внутренние ламинированные.

Лестница

Деревянная клееная.

Вентиляция

Естественная, с/у и кухни. Место установки изолированного вентиляционного выхода и вентиляционных решеток не регламентируется и определяется проектом.

Электрика

Прокладка электропроводки в пластиковых коробах

Отопление

Электрическое отопление. Двухтрубная система отопления, алюминиевые радиаторы, запорная арматура, электрический котёл.

Водоподготовка

Разводка по дому горячего и холодного водоснабжения до точки пользования с запорной арматурой. Водонагреватель ГВС на 50 л.

Канализация

Канализация включает в себя разводку канализационных труб для обеспечения слива воды под каждую точку водоразбора, в том числе под унитаз. Септик. Залповый сброс 150 л. Производительность 0,6 куб. м. в сутки. Количество пользователей — 3 чел. Потребляемая мощность 2 кВт сутки.

В любую комплектацию возможно внести изменения!

Доставка свыше 100 км от производственной базы (Московская область, г. Бронницы, с. Заворово):
дом без фундамента 1408 руб./км
дом со свайно-винтовым фундаментом 1641 руб./км
дом со свайно-забивным (ЖБИ) фундаментом 1707 руб./км
Видеообзор
Фотообзор
Фотообзор Статус 8х11 Веда - 1

Коттедж Статус 8х11 Веда выглядит солидно и стильно. Цветовое оформление экстерьера напоминает любимый напиток многих — кофе с молоком.

Фотообзор Статус 8х11 Веда - 2

Сбоку дома пристроено небольшое крыльцо.

Фотообзор Статус 8х11 Веда - 3

Входная дверь металлическая, сочетается с цветом фасада. 

Фотообзор Статус 8х11 Веда - 4

В каждой комнате установлены стеклопакеты ПВХ.

Фотообзор Статус 8х11 Веда - 5

В доме есть проход на чердак, где можно хранить вещи.

Фотообзор Статус 8х11 Веда - 6

Две комнаты объединены в одну большую с помощью межкомнатной арки.

Фотообзор Статус 8х11 Веда - 7

Лестница удобная, не занимает много места в помещении.

Фотообзор Статус 8х11 Веда - 8

С оформленным интерьером и обставленной мебелью дом выглядит еще красивее. Кухня большая, совмещена со столовой. 

Фотообзор Статус 8х11 Веда - 9

Есть зона отдыха: пара мягких диванов и журнальный столик. 

Фотообзор Статус 8х11 Веда - 10

Спальня для взрослых: большая кровать и шкаф. 

Фотообзор Статус 8х11 Веда - 11

А также детская для девочки. Милая и нежная. 

Другие проекты
Отправить заявку на проект
Комплектация
Не важно
  • Осень
  • Зима
  • ПМЖ
  • ПМЖ+
Город*
Выберите город
  • Москва и область
  • Рязань и область
  • Другой
Планировка
Выберите планировку
  • Планировка 1