Статус 8х8 Гамма

от 0р.

Просторнейший и современный дом для большой семьи. Его масштабы поражают воображение!

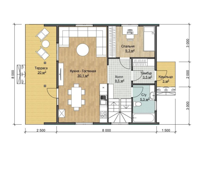
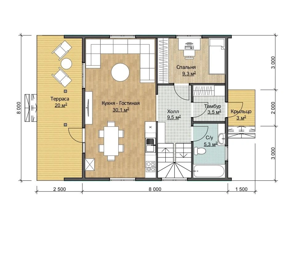
Кухня-гостиная площадью 30,1 м2 вместит по меньшей мере 13 гостей и у каждого будет свой собственный уголок. Здесь также разместится вся необходимая столовая мебель и бытовая техника. А в почти 7-метровый санузел войдут ванная, раковина, унитаз, биде и стиральная машина. В гардеробной (6,9 м2поместится несколько шкафов, тумбочек и обувниц. А зеркало во весь рост станет стильным дополнением интерьера. 

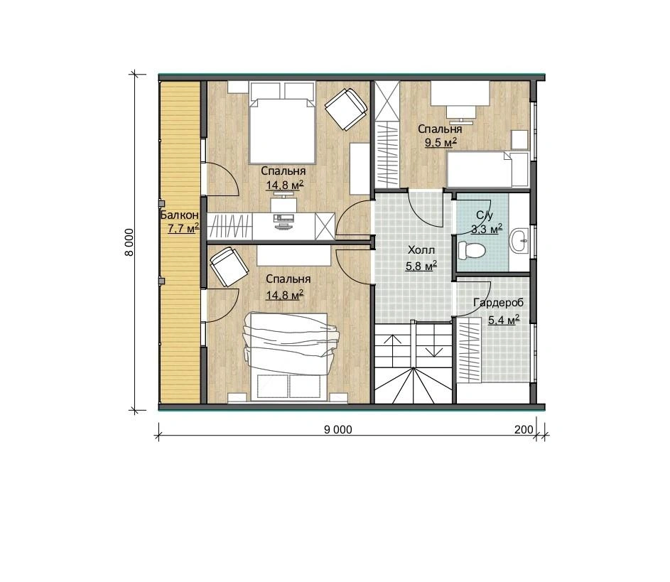
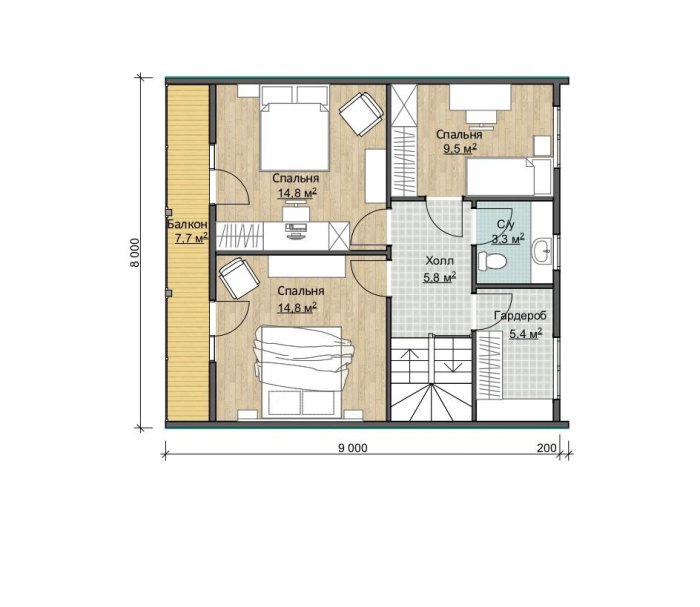
На огромной террасе размером 19,7 м2 можно «играть в футбол» или отдыхать после тяжелой рабочей недели. На втором этаже расположились 2 спальни и кабинет. Каждая комната просторная, светлая и уютная. А длинный балкон площадью 7,7 м2 — прекрасное дополнение к этому архитектурному сооружению.

Инженерные коммуникации, водопровод и оптимальная система водоотведения обеспечивают удобство при длительном или постоянном проживании. Качественные экологичные краски для оформления интерьера подчеркнут колорит и уютную атмосферу.

Срок возведения дома — от 30 дней.

*Стоимость планировки №2 рассчитывается индивидуально. Обращайтесь за консультацией к нашим менеджерам.

Планировки дома *
Планировка 1 Планировка 2
1-й этаж Планировка 1
2-й этаж Планировка 1
* Размеры и площади указаны без учета наружной и внутренней отделки и в разных комплектациях могут меняться (из-за толщины утеплителя, стен и перегородок). Подробности уточняйте у менеджера.
1-й этаж Планировка 2
2-й этаж Планировка 2
* Размеры и площади указаны без учета наружной и внутренней отделки и в разных комплектациях могут меняться (из-за толщины утеплителя, стен и перегородок). Подробности уточняйте у менеджера.
Комплектации
Осень Каркасная
4 090 000 р.
старая цена
3 223 000 р.
цена по акции до 30.09
4 212 000 р.
цена по ипотеке
4 988 000 р.
цена в рассрочку
248 777 р.

Пакет инженерные коммуникации. Подведение труб горячей и холодной воды, прокладка канализационных труб, водонагреватель. Устройство канализации внутри дома. Прокладка электропроводки в пластиковых коробах.

Заказать дом Смотреть комплектацию
Фундамент дома

Свайно-винтовой (сваи D=108 мм, L=2500 мм). По фундаменту установлены отливы (цвет коричневый). Гидроизоляция фундамента — рубероид в два слоя. Замкнутая нижняя обвязка толщиной 145 мм.

Огнебиозащита, антисептирование

нет

Конструкция пола

Толщина конструкции: 229 мм., Настил пола ОСП-22 мм; пароизоляция Тераспан Б (или аналог); клееный Т-профиль 73х207 мм усиленной конструкции; минеральная вата Урса М11 (или аналог) 150мм; ветро-изоляционная мембрана Тераспан А (или аналог); черновой пол толщиной 10мм

Утепление пола 1-го этажа

Минеральная вата 150 мм.

Настил пола 1-го этажа

ОСП 22 мм

Стены 1-го этажа

Толщина стен min 172 мм-211 мм. Высота потолка 2 533 мм (от балок пола до балок перекрытия). Внутренняя обшивка 12,5 мм, пароизоляция, ПМК, минеральная вата 150 мм, ветро-изоляционная мембрана, наружная обшивка комбинированная. Стены со стороны фронтонов: обшивка 12,5 мм по вентфасаду. Стены со стороны скатов крыши профнастил (цвет коричневый) по обрешетке П/м, по вентфасаду ПМК.

Перегородки 1-го этажа

Толщина перегородок 122 мм. Обшивка 12.5 мм, ПМК, обшивка 12.5 мм.

Перекрытия 1-го этажа

Толщина конструкции: 229,5 мм., Настил пола ОСП-22 мм; пароизоляция Тераспан Б (или аналог); ПМК(1); минеральная вата Урса М11 (или аналог) 50мм; пароизоляция Тераспан Б

Стены 2-го этажа

Толщина стен min 172 мм-211 мм. Высота потолка переменная min 1 600 мм (от балок пола до стропильной системы). Внутренняя обшивка 12,5 мм, ПМК, ветро-изоляционная мембрана. Наружная обшивка комбинированная. Стены со стороны фронтонов: обшивка 12,5 мм, стены со стороны скатов крыши профнастил (цвет коричневый) по обрешетке П/м, по вентфасаду ПМК.

Перегородки 2-го этажа

Толщина перегородок 122 мм. Обшивка 12.5 мм, ПМК, обшивка 12.5 мм.

Стропильная часть

Толщина конструкции 211 мм. Потолок подшивается по стропилам обшивкой 12,5 мм, ПМК, ветро-влагозащитная мембрана , вентиляционный зазор ПМК, обрешетка П/м.

Кровля

Профилированный лист (цвет коричневый). Крепление кровельными саморезами.

Окна

ПВХ, однокамерный стеклопакет (цвет белый), под окнами установлены отливы (цвет коричневый).

Двери дома

Входная металлическая. Внутренние ламинированные

Лестница

Деревянная клееная.

Вентиляция

-

Электрика

-

Отопление

-

Водоподготовка

-

Канализация

-

Зима Каркасная
4 392 000 р.
старая цена
3 613 000 р.
цена по акции до 30.09
4 520 000 р.
цена по ипотеке
5 356 000 р.
цена в рассрочку
248 777 р.

Пакет инженерные коммуникации. Подведение труб горячей и холодной воды, прокладка канализационных труб, водонагреватель. Устройство канализации внутри дома. Прокладка электропроводки в пластиковых коробах.

Заказать дом Смотреть комплектацию
Фундамент дома

Свайно-винтовой (сваи D=108 мм, L=2500 мм). По фундаменту установлены отливы (цвет коричневый). Гидроизоляция фундамента — рубероид в два слоя. Замкнутая нижняя обвязка толщиной 145 мм обработана огнебиозащитой.

Огнебиозащита, антисептирование

Огнебиозащита нижней обвязки, лаг пола и чернового пола в 2 слоя.

Конструкция пола

Толщина конструкции: 229 мм., Настил пола ОСП-22 мм; пароизоляция Тераспан Б (или аналог); клееный Т-профиль 73х207 мм усиленной конструкции; минеральная вата Урса М11 (или аналог) 200мм; ветро-изоляционная мембрана Тераспан А (или аналог); черновой пол толщиной 10мм. Балки пола и черновой пол обработаны огнебиозащитой.

Утепление пола 1-го этажа

Минеральная вата 150 мм

Настил пола 1-го этажа

ОСП 22 мм

Стены 1-го этажа

Толщина стен min 172 мм-211 мм. Высота потолка 2 533 мм (от балок пола до балок перекрытия). Внутренняя обшивка 12,5 мм, пароизоляция, ПМК, минеральная вата 150 мм, ветро-изоляционная мембрана, наружная обшивка комбинированная. Стены со стороны фронтонов: обшивка 12,5 мм по вентфасаду. Стены со стороны скатов крыши профнастил (цвет коричневый) по обрешетке П/м, по вентфасаду ПМК.

Перегородки 1-го этажа

Толщина перегородок 122 мм. Обшивка 12.5 мм, ПМК, обшивка 12.5 мм.

Перекрытия 1-го этажа

Толщина конструкции: 229,5 мм., Настил пола ОСП-22 мм; пароизоляция Тераспан Б (или аналог); ПМК; минеральная вата Урса М11 (или аналог) 50мм; пароизоляция Тераспан Б

Стены 2-го этажа

Толщина стен 207 мм; 216,5 мм. Высота потолка переменная min 1 600 мм (от балок пола до стропильной системы). Внутренняя обшивка 12,5 мм; пароизоляция Тераспан Б (или аналог); ПМК; минеральная вата Урса П15 (или аналог) 150 мм; ветро-изоляционная мембрана Тераспан А (или аналог); наружная обшивка комбинированная: стены со стороны фронтонов: обшивка 12,5 мм по вентфасаду ПМК, стены со стороны скатов крыши профнастил (цвет коричневый) по обрешетке П/м по вентфасаду ПМК

Перегородки 2-го этажа

Толщина перегородок 122 мм. Обшивка 12.5 мм, ПМК, обшивка 12.5 мм.

Стропильная часть

Толщина конструкции 228,5 мм Потолок подшивается по стропилам обшивкой 12,5 мм; пароизоляция Тераспан Б (или аналог), ПМК; минеральная вата Урса П15 (или аналог) 150 мм. ветро-влагозащитная мембрана Тераспан АМ (или аналог); вентиляционный зазор ПМК; Обрешетка П/м

Кровля

Профилированный лист (цвет коричневый). Крепление кровельными саморезами.

Окна

ПВХ, однокамерный стеклопакет (цвет белый), под окнами установлены отливы (цвет коричневый).

Двери дома

Входная металлическая. Внутренние ламинированные

Лестница

Деревянная клееная.

Вентиляция

-

Электрика

-

Отопление

-

Водоподготовка

-

Канализация

-

ПМЖ Каркасная
5 081 000 р.
старая цена
4 224 000 р.
цена по акции до 30.09
5 092 000 р.
цена по ипотеке
6 196 000 р.
цена в рассрочку
248 777 р.

Пакет инженерные коммуникации. Подведение труб горячей и холодной воды, прокладка канализационных труб, водонагреватель. Устройство канализации внутри дома. Прокладка электропроводки в пластиковых коробах.

Заказать дом Смотреть комплектацию
Фундамент дома

Свайно-винтовой (сваи D=108 мм, L=2500 мм). Гидроизоляция фундамента — рубероид в два слоя, монтажная доска ПМК обработана огнебиозащитой. Нижняя обвязка — труба профильная металлическая 120х80 мм. Отделка фундамента дома ОСП-9 по обрешетке П/м, H=400 мм. По фундаменту установлены отливы (цвет коричневый).

Огнебиозащита, антисептирование

Огнебиозащита нижней обвязки, лаг пола и чернового пола в 2 слоя.

Конструкция пола

Толщина конструкции: 229 мм., Настил пола ОСП-22 мм; пароизоляция Тераспан Б (или аналог); клееный Т-профиль 73х207 мм усиленной конструкции; минеральная вата Урса М11 (или аналог) 200мм; ветро-изоляционная мембрана Тераспан А (или аналог); черновой пол толщиной 10мм; Балки пола и черновой пол обработаны огнебиозащитой.

Утепление пола 1-го этажа

Минеральная вата 200 мм.

Настил пола 1-го этажа

ОСП 22 мм

Стены 1-го этажа

Толщина стен 248 мм-258 мм. Высота потолка 2 533 мм (от балок пола до балок перекрытия). Внутренняя обшивка 12,5 мм, пароизоляция, ПМК, повторитель стоек ПМК для перекрестного утепления (бьется снаружи горизонтально), минеральная вата 200 мм, ветро-изоляционная мембрана, наружная обшивка комбинированная. Стены со стороны фронтонов: обшивка 12,5 мм по вентфасаду. Стены со стороны скатов крыши профнастил (цвет коричневый) по обрешетке П/м, по вентфасаду ПМК.

Перегородки 1-го этажа

Толщина перегородок 122 мм. Обшивка 12.5 мм, пароизоляция, минеральная вата 100 мм, ПМК, пароизоляция, обшивка 12.5 мм.

Перекрытия 1-го этажа

Толщина конструкции: 229,5 мм. Настил пола ОСП-22 мм; пароизоляция Тераспан Б (или аналог); ПМК(1); минеральная вата Урса М11 (или аналог) 100мм; пароизоляция Тераспан Б

Стены 2-го этажа

Толщина стен min 172 мм-211 мм. Высота потолка переменная min 1 600 мм (от балок пола до стропильной системы). Внутренняя обшивка 12,5 мм, пароизоляция, ПМК, повторитель стоек ПМК для перекрестного утепления (бьется снаружи горизонтально), минеральная вата 200 мм, ветро-изоляционная мембрана. Наружная обшивка комбинированная. Стены со стороны фронтонов: обшивка 12,5 мм, стены со стороны скатов крыши профнастил (цвет коричневый) по обрешетке П/м, по вентфасаду ПМК.

Перегородки 2-го этажа

Толщина перегородок 122 мм. Обшивка 12.5 мм, пароизоляция, минеральная вата 100 мм, ПМК, пароизоляция, обшивка 12.5 мм.

Стропильная часть

Толщина конструкции 278 мм. Потолок подшивается по стропилам обшивкой 12,5 мм, пароизоляция, повторитель стропил ПМК для перекрестного утепления, минеральная вата 200 мм, ветро-влагозащитная мембрана, вентиляционный зазор ПМК, обрешетка П/м.

Кровля

Профилированный лист (цвет коричневый). Крепление кровельными саморезами.

Окна

ПВХ, двухкамерный стеклопакет (цвет белый) с москитными сетками, под окнами установлены отливы (цвет коричневый).

Двери дома

Входная металлическая. Внутренние ламинированные

Лестница

Деревянная клееная.

Вентиляция

Естественная, с/у и кухни. Место установки изолированного вентиляционного выхода и вентиляционных решеток не регламентируется и определяется проектом.

Электрика

-

Отопление

-

Водоподготовка

-

Канализация

-

ПМЖ+ Каркасная
5 771 000 р.
цена по акции до 30.09
5 926 000 р.
цена по ипотеке
7 038 000 р.
цена в рассрочку
828 210 р. АКЦИЯ *

Пакет инженерные коммуникации: отопление от электрокотла, горячее и холодное водоснабжение (монтаж внутри дома), канализация Септик Евролос, прокладка электропроводки в пластиковых коробах.

Заказать дом Смотреть комплектацию
Фундамент дома

Свайно-винтовой (сваи D=108 мм, L=2500 мм). Гидроизоляция фундамента — рубероид в два слоя, монтажная доска ПМК обработана огнебиозащитой. Нижняя обвязка — труба профильная металлическая 120х80 мм. Отделка фундамента дома ОСП-9 по обрешетке П/м, H=400 мм. По фундаменту установлены отливы (цвет коричневый).

Огнебиозащита, антисептирование

Огнебиозащита нижней обвязки, лаг пола и чернового пола в 2 слоя.

Конструкция пола

Толщина конструкции: 229 мм., Настил пола ОСП-22 мм; пароизоляция Тераспан Б (или аналог); клееный Т-профиль 73х207 мм усиленной конструкции; минеральная вата Урса М11 (или аналог) 200мм; ветро-изоляционная мембрана Тераспан А (или аналог); черновой пол толщиной 10мм; Балки пола и черновой пол обработаны огнебиозащитой.

Утепление пола 1-го этажа

Минеральная вата 200 мм.

Настил пола 1-го этажа

ОСП 22 мм

Стены 1-го этажа

Толщина стен 248 мм-258 мм. Высота потолка 2 533 мм (от балок пола до балок перекрытия). Внутренняя обшивка 12,5 мм, пароизоляция, ПМК, повторитель стоек ПМК для перекрестного утепления (бьется снаружи горизонтально), минеральная вата 200 мм, ветро-изоляционная мембрана, наружная обшивка комбинированная. Стены со стороны фронтонов: обшивка 12,5 мм по вентфасаду. Стены со стороны скатов крыши профнастил (цвет коричневый) по обрешетке П/м, по вентфасаду ПМК.

Перегородки 1-го этажа

Толщина перегородок 122 мм. Обшивка 12.5 мм, пароизоляция, минеральная вата 100 мм, ПМК, пароизоляция, обшивка 12.5 мм.

Перекрытия 1-го этажа

Толщина конструкции: 229,5 мм. Настил пола ОСП-22 мм; пароизоляция Тераспан Б (или аналог); ПМК(1); минеральная вата Урса М11 (или аналог) 100мм; пароизоляция Тераспан Б

Стены 2-го этажа

Толщина стен min 172 мм-211 мм. Высота потолка переменная min 1 600 мм (от балок пола до стропильной системы). Внутренняя обшивка 12,5 мм, пароизоляция, ПМК, повторитель стоек ПМК для перекрестного утепления (бьется снаружи горизонтально), минеральная вата 200 мм, ветро-изоляционная мембрана. Наружная обшивка комбинированная. Стены со стороны фронтонов: обшивка 12,5 мм, стены со стороны скатов крыши профнастил (цвет коричневый) по обрешетке П/м, по вентфасаду ПМК.

Перегородки 2-го этажа

Толщина перегородок 122 мм. Обшивка 12.5 мм, пароизоляция, минеральная вата 100 мм, ПМК, пароизоляция, обшивка 12.5 мм.

Стропильная часть

Толщина конструкции 278 мм. Потолок подшивается по стропилам обшивкой 12,5 мм, пароизоляция, повторитель стропил ПМК для перекрестного утепления, минеральная вата 200 мм, ветро-влагозащитная мембрана, вентиляционный зазор ПМК, обрешетка П/м.

Кровля

Профилированный лист (цвет коричневый). Крепление кровельными саморезами.

Окна

ПВХ, двухкамерный стеклопакет (цвет белый) с москитными сетками, под окнами установлены отливы (цвет коричневый).

Двери дома

Входная металлическая. Внутренние ламинированные

Лестница

Деревянная клееная.

Вентиляция

Естественная, с/у и кухни. Место установки изолированного вентиляционного выхода и вентиляционных решеток не регламентируется и определяется проектом.

Электрика

Прокладка электропроводки в пластиковых коробах.

Отопление

Электрическое отопление. Двухтрубная система отопления, алюминиевые радиаторы, запорная арматура, электрический котёл.

Водоподготовка

Разводка по дому горячего и холодного водоснабжения до точки пользования с запорной арматурой. Водонагреватель ГВС на 50л.

Канализация

Канализация включает в себя разводку канализационных труб для обеспечения слива воды под каждую точку водоразбора, в том числе под унитаз. Септик. Залповый сброс 150 л. Производительность 0,6 куб. м. в сутки. Количество пользователей — 3 чел. Потребляемая мощность 2 кВт сутки.

В любую комплектацию возможно внести изменения!

Доставка свыше 100 км от производственной базы (Московская область, г. Бронницы, с. Заворово):
дом без фундамента 1408 руб./км
дом со свайно-винтовым фундаментом 1641 руб./км
дом со свайно-забивным (ЖБИ) фундаментом 1707 руб./км
Видеообзор
Фотообзор
Фотообзор Статус 8х8 Гамма - 1

Роскошный двухэтажный коттедж с просторным балконом и прилегающей террасой ждет своих домочадцев!

Фотообзор Статус 8х8 Гамма - 2

Здесь комнаты очень большие и светлые, можно хоть в футбол играть!

Фотообзор Статус 8х8 Гамма - 3

На мансарде в одной из комнат можно обустроить кабинет или спальню. 

Фотообзор Статус 8х8 Гамма - 4

Везде уже проведено водоснабжение. 

Другие проекты
Отправить заявку на проект
Комплектация
Не важно
  • Осень
  • Зима
  • ПМЖ
  • ПМЖ+
Город*
Выберите город
  • Москва и область
  • Рязань и область
  • Другой
Планировка
Выберите планировку
  • Планировка 1
  • Планировка 2