Статус 8х9 Базис

от 0р.

Статус 8х9 Базис — это двухэтажный трехфронтонный дом площадью 134,62 м2, в котором запланированы четыре жилых комнаты, большая кухня с гостиной, 2 санузла и просторные холлы. Проект подойдёт для большой семьи. 

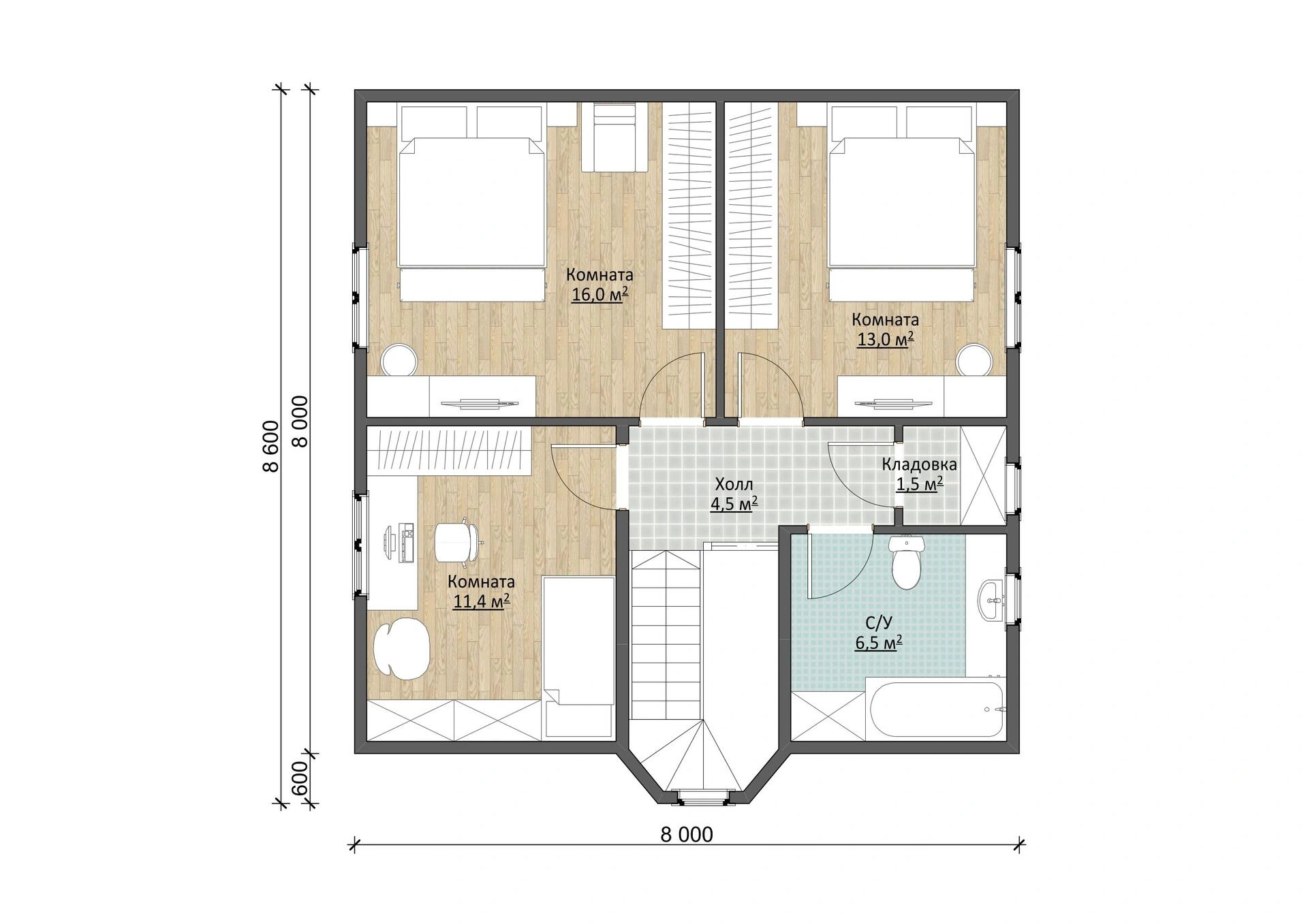
На первом этаже в кухне-гостиной площадью 29,3 м2 разместится вся необходимая столовая мебель и бытовая техника. В просторном 10,9-метровом холле с примыкающим тамбуром (2,4 м2) можно расставить шкафы и полки для хранения вещей. Комната в 11,6 м2 станет удобным кабинетом или местом для отдыха. А в почти 5-метровый санузел войдут душевая кабина или ванна, раковина, унитаз и стиральная машина.

На втором этаже расположены: 4,5-метровый холл, две просторные комнаты, кладовка, удобный кабинет и еще один санузел площадью в 6,5 м2.

Дополнительно вы можете заказать внешнюю и внутреннюю отделку в выбранных тонах. В работе используются экологичные нетоксичные материалы. В проект можно вносить изменения: пристроить веранду или террасу, сделать перепланировку, заказать дополнительное утепление пола и стен.

Срок сдачи под ключ — от 30 дней.

Планировки дома *
Планировка 1
1-й этаж Планировка 1
2-й этаж Планировка 1
* Размеры и площади указаны без учета наружной и внутренней отделки и в разных комплектациях могут меняться (из-за толщины утеплителя, стен и перегородок). Подробности уточняйте у менеджера.
Комплектации
Осень Каркасная
3 619 000 р.
старая цена
2 613 000 р.
цена по акции до 30.09
3 731 000 р.
цена по ипотеке
4 413 000 р.
цена в рассрочку
239 799 р.

Пакет инженерные коммуникации. Подведение труб горячей и холодной воды, прокладка канализационных труб, водонагреватель. Устройство канализации внутри дома. Прокладка электропроводки в пластиковых коробах.

Заказать дом Смотреть комплектацию
Фундамент дома

Свайно-винтовой (сваи D=108 м, L=2500 мм). Гидроизоляция фундамента — рубероид в два слоя. Замкнутая нижняя обвязка толщиной 145 мм.

Огнебиозащита, антисептирование

нет

Конструкция пола 1-го этажа

Толщина конструкции: 229 мм., Настил пола ОСП-22 мм; пароизоляция Тераспан Б (или аналог); клееный Т-профиль 73х207 мм усиленной конструкции; минеральная вата Урса М11 (или аналог) 150мм; ветро-изоляционная мембрана Тераспан А (или аналог); черновой пол толщиной 10мм.

Утепление пола 1-го этажа

Минеральная вата 150 мм.

Настил пола 1-го этажа

ОСП 22 мм

Стены 1 го этажа

Толщина стен 172 мм. Высота потолка 2 533 мм (от балок пола до балок перекрытий). Внутренняя обшивка 12,5 мм, пароизоляция, ПМК, минеральная вата 150 мм, ветро-изоляционная мембрана, наружная обшивка 12,5 мм.

Перекрытие 1-го этажа

Толщина конструкции: 228 мм., Настил пола ОСП-22 мм; пароизоляция Тераспан Б (или аналог); ПМК(1); минеральная вата Урса М11 (или аналог) 50мм; пароизоляция Тераспан Б

Второй этаж

Толщина стен 172 мм. Высота потолка 2 433 мм (от балок пола до балок перекрытий). Внутренняя обшивка 12,5 мм, ПМК, ветро-изоляционная мембрана, наружная обшивка 12,5 мм.

Перегородки

Толщина конструкции 122 мм. Обшивка 12,5 мм, ПМК, обшивка 12,5 мм.

Кровля

Оцинкованный профилированный лист. Крепление кровельными саморезами по обрешетке П/м, вентиляционный зазор ПМК, гидро-пароизоляционная мембрана.

Окна

ПВХ однокамерный стеклопакет (цвет белый). Под окнами установлены отливы (цвет белый).

Двери дома

Входная металлическая. Внутренние ламинированные.

Лестница

Деревянная клееная.

Вентиляция

-

Электрика

-

Отопление

-

Водоподготовка

-

Канализация

-

Зима Каркасная
4 592 000 р.
старая цена
3 483 000 р.
цена по акции до 30.09
4 724 000 р.
цена по ипотеке
5 600 000 р.
цена в рассрочку
239 799 р.

Пакет инженерные коммуникации. Подведение труб горячей и холодной воды, прокладка канализационных труб, водонагреватель. Устройство канализации внутри дома. Прокладка электропроводки в пластиковых коробах.

Заказать дом Смотреть комплектацию
Фундамент дома

Свайно-винтовой (сваи D=108 м, L=2500 мм). Гидроизоляция фундамента — рубероид в два слоя. Замкнутая нижняя обвязка толщиной 145 мм. обработана огнебиозащитой. По фундаменту установлены отливы (цвет белый).

Огнебиозащита, антисептирование

Огнебиозащита нижней обвязки, лаг пола и чернового пола в 2 слоя.

Конструкция пола 1-го этажа

Толщина конструкции: 229 мм., Настил пола ОСП-22 мм; пароизоляция Тераспан Б (или аналог); клееный Т-профиль 73х207 мм усиленной конструкции; минеральная вата Урса М11 (или аналог) 200мм; ветро-изоляционная мембрана Тераспан А (или аналог); черновой пол толщиной 10мм. Балки пола и черновой пол обработаны огнебиозащитой.

Утепление пола 1-го этажа

Минеральная вата 200 мм.

Настил пола 1-го этажа

ОСП 22 мм

Стены 1 го этажа

Толщина стен 198 мм. Высота потолка 2 533 мм (от балок пола до балок перекрытий). Внутренняя обшивка 12,5 мм, пароизоляция, ПМК, минеральная вата 150 мм, ветро-изоляционная мембрана, наружная обшивка сайдинг Альта профиль «Альта классика» (стыковка внахлест) по ОСП-9, по вентфасаду ПМК.

Перекрытие 1-го этажа

Толщина конструкции: 229,5 мм Настил пола ОСП-22 мм; пароизоляция Тераспан Б (или аналог); ПМК(1); минеральная вата Урса М11 (или аналог) 50мм; пароизоляция Тераспан Б

Второй этаж

Толщина стен 198 мм. Высота потолка 2 433 мм (от балок пола до балок перекрытий). Внутренняя обшивка 12,5 мм, пароизоляция, ПМК, минеральная вата 150 мм, ветро-изоляционная мембрана, наружная обшивка сайдинг Альта профиль «Альта классика» (стыковка внахлест) по ОСП-9, по вентфасаду ПМК.

Перегородки

Толщина конструкции 122 мм. Обшивка 12,5 мм, ПМК, обшивка 12,5 мм.

Кровля

Профиль СуперМонтеррей (цвет коричневый). Крепление кровельными саморезами по обрешетке П/м, вентиляционный зазор ПМК, гидро-пароизоляционная мембрана.

Окна

ПВХ однокамерный стеклопакет (цвет белый). Под окнами установлены отливы (цвет белый).

Двери дома

Входная металлическая. Внутренние ламинированные.

Лестница

Деревянная клееная.

Вентиляция

-

Электрика

-

Отопление

-

Водоподготовка

-

Канализация

-

ПМЖ Каркасная
5 305 000 р.
цена по акции до 30.09
5 315 000 р.
цена по ипотеке
6 470 000 р.
цена в рассрочку
239 799 р.

Пакет инженерные коммуникации. Подведение труб горячей и холодной воды, прокладка канализационных труб, водонагреватель. Устройство канализации внутри дома. Прокладка электропроводки в пластиковых коробах.

Заказать дом Смотреть комплектацию
Фундамент дома

Свайно-винтовой (сваи D=108 м, L=2500 мм). Нижняя обвязка — труба профильная металлическая 120х80 мм. Гидроизоляция фундамента — рубероид в два слоя. Монтажная доска ПМК обработана огнебиозащитой. Отделка фундамента дома ОСП-9 по обрешетке П/м, H=400 мм. По фундаменту установлены отливы (цвет белый).

Огнебиозащита, антисептирование

Огнебиозащита нижней обвязки, лаг пола и чернового пола в 2 слоя.

Конструкция пола 1-го этажа

Толщина конструкции: 229мм. Настил пола ОСП-22 мм; пароизоляция Тераспан Б (или аналог); клееный Т-профиль 73х207 мм усиленной конструкции; минеральная вата Урса М11 (или аналог) 200мм; ветро-изоляционная мембрана Тераспан А (или аналог); черновой пол толщиной 10мм. Балки пола и черновой пол обработаны огнебиозащитой.

Утепление пола 1-го этажа

Минеральная вата 200 мм.

Настил пола 1-го этажа

ОСП 22 мм

Стены 1 го этажа

Толщина стен 245 мм. Высота потолка 2,50 м. Внутренняя обшивка 12,5 мм, пароизоляция, ПМК, повторитель стоек ПМК для перекрестного утепления (бьется снаружи горизонтально), минеральная вата 200 мм, ветро-изоляционная мембрана, наружная обшивка сайдинг Альта профиль «Альта классика» (стыковка внахлест) по ОСП-9, по вентфасаду ПМК.

Перекрытие 1-го этажа

Толщина конструкции: 181,5 мм. Настил пола ОСП-22 мм; пароизоляция Тераспан Б (или аналог); ПМК(1); Минеральная вата Урса М11 (или аналог) 100 мм; пароизоляция Тераспан Б (или аналог); обшивка 12.5мм(2)

Второй этаж

Толщина стен 245 мм. Высота потолка 2 433 мм (от балок пола до балок перекрытий). Внутренняя обшивка 12,5 мм, пароизоляция, ПМК, повторитель стоек ПМК для перекрестного утепления (бьется снаружи горизонтально), минеральная вата 200 мм, ветро-изоляционная мембрана, наружная обшивка сайдинг Альта профиль «Альта классика» (стыковка внахлест) по ОСП-9, по вентфасаду ПМК.

Перегородки

Толщина конструкции 122 мм. Обшивка 12,5 мм, пароизоляция, минеральная вата 100 мм, ПМК, пароизоляция, обшивка 12,5 мм.

Кровля

Профиль СуперМонтеррей (цвет коричневый). Крепление кровельными саморезами по обрешетке П/м, вентиляционный зазор ПМК, гидро-пароизоляционная мембрана.

Окна

ПВХ двухкамерный стеклопакет (цвет белый) с москитными сетками. Под окнами установлены отливы (цвет белый).

Двери дома

Входная металлическая. Внутренние ламинированные.

Лестница

Деревянная клееная.

Вентиляция

Естественная, с/у и кухни. Место установки изолированного вентиляционного выхода и вентиляционных решеток не регламентируется и определяется проектом.

Электрика

-

Отопление

-

Водоподготовка

-

Канализация

-

ПМЖ+ Каркасная
6 064 000 р.
цена по акции до 30.09
6 225 000 р.
цена по ипотеке
7 395 000 р.
цена в рассрочку
831 297 р. АКЦИЯ *

Пакет инженерные коммуникации: отопление от электрокотла, горячее и холодное водоснабжение (монтаж внутри дома), канализация Септик Евролос, прокладка электропроводки в пластиковых коробах.

Заказать дом Смотреть комплектацию
Фундамент дома

Свайно-винтовой (сваи D=108 м, L=2500 мм). Нижняя обвязка — труба профильная металлическая 120х80 мм. Гидроизоляция фундамента — рубероид в два слоя. Монтажная доска ПМК обработана огнебиозащитой. Отделка фундамента дома ОСП-9 по обрешетке П/м, H=400 мм. По фундаменту установлены отливы (цвет белый).

Огнебиозащита, антисептирование

Огнебиозащита нижней обвязки, лаг пола и чернового пола в 2 слоя.

Конструкция пола 1-го этажа

Толщина конструкции: 229мм. Настил пола ОСП-22 мм; пароизоляция Тераспан Б (или аналог); клееный Т-профиль 73х207 мм усиленной конструкции; минеральная вата Урса М11 (или аналог) 200мм; ветро-изоляционная мембрана Тераспан А (или аналог); черновой пол толщиной 10мм. Балки пола и черновой пол обработаны огнебиозащитой.

Утепление пола 1-го этажа

Минеральная вата 200 мм.

Настил пола 1-го этажа

ОСП 22 мм

Стены 1 го этажа

Толщина стен 245 мм. Высота потолка 2,50 м. Внутренняя обшивка 12,5 мм, пароизоляция, ПМК, повторитель стоек ПМК для перекрестного утепления (бьется снаружи горизонтально), минеральная вата 200 мм, ветро-изоляционная мембрана, наружная обшивка сайдинг Альта профиль «Альта классика» (стыковка внахлест) по ОСП-9, по вентфасаду ПМК.

Перекрытие 1-го этажа

Толщина конструкции: 181,5 мм. Настил пола ОСП-22 мм; пароизоляция Тераспан Б (или аналог); ПМК(1); Минеральная вата Урса М11 (или аналог) 100 мм; пароизоляция Тераспан Б (или аналог); обшивка 12.5мм(2)

Второй этаж

Толщина стен 245 мм. Высота потолка 2 433 мм (от балок пола до балок перекрытий). Внутренняя обшивка 12,5 мм, пароизоляция, ПМК, повторитель стоек ПМК для перекрестного утепления (бьется снаружи горизонтально), минеральная вата 200 мм, ветро-изоляционная мембрана, наружная обшивка сайдинг Альта профиль «Альта классика» (стыковка внахлест) по ОСП-9, по вентфасаду ПМК.

Перегородки

Толщина конструкции 122 мм. Обшивка 12,5 мм, пароизоляция, минеральная вата 100 мм, ПМК, пароизоляция, обшивка 12,5 мм.

Кровля

Профиль СуперМонтеррей (цвет коричневый). Крепление кровельными саморезами по обрешетке П/м, вентиляционный зазор ПМК, гидро-пароизоляционная мембрана.

Окна

ПВХ двухкамерный стеклопакет (цвет белый) с москитными сетками. Под окнами установлены отливы (цвет белый).

Двери дома

Входная металлическая. Внутренние ламинированные.

Лестница

Деревянная клееная.

Вентиляция

Естественная, с/у и кухни. Место установки изолированного вентиляционного выхода и вентиляционных решеток не регламентируется и определяется проектом.

Электрика

Прокладка электропроводки в пластиковых коробах

Отопление

Электрическое отопление. Двухтрубная система отопления, алюминиевые радиаторы, запорная арматура, электрический котёл.

Водоподготовка

Разводка по дому горячего и холодного водоснабжения до точки пользования с запорной арматурой. Водонагреватель ГВС на 50 л.

Канализация

Канализация включает в себя разводку канализационных труб для обеспечения слива воды под каждую точку водоразбора, в том числе под унитаз. Септик. Залповый сброс 150 л. Производительность 0,6 куб. м. в сутки. Количество пользователей — 3 чел. Потребляемая мощность 2 кВт сутки.

В любую комплектацию возможно внести изменения!

Доставка свыше 100 км от производственной базы (Московская область, г. Бронницы, с. Заворово):
дом без фундамента 1003 руб./км
дом со свайно-винтовым фундаментом 1236 руб./км
дом со свайно-забивным (ЖБИ) фундаментом 1302 руб./км
Фотообзор
Фотообзор Статус 8х9 Базис - 1

Большой двухэтажный коттедж создан для дружной семьи. 

Другие проекты
Отправить заявку на проект
Комплектация
Не важно
  • Осень
  • Зима
  • ПМЖ
  • ПМЖ+
Город*
Выберите город
  • Москва и область
  • Рязань и область
  • Другой
Планировка
Выберите планировку
  • Планировка 1