Статус 8х9 Вираж

от 2 659 000р.

Солидный двухэтажный коттедж Статус 8х9 Вираж призван покорять своим внешним видом и внутренним наполнением.

Дом с общей площадью 115,84 м2 вместит по меньшей мере 6-7 человек. Начнем нашу экскурсию по коттеджу с первого этажа.

Заходя в дом, попадаем сразу в прихожую (2,3 м2), а из нее в просторный холл (10,5 м2). Прихожая удерживает холод с улицы, поэтому в доме очень тепло и уютно. Далее заходим на кухню (11,9 м2), где есть небольшая столовая. Напротив расположена гостиная (15 м2) — отличное место для отдыха со всей семьей.  Рядом с гостиной находится комната (10,1 м2). Ее можно назначить спальней или любой другой комнатой. Напротив расположился небольшой санузел (3,2 м2), а рядом с ним техническое помещение (5,3 м2), откуда есть выход на задний двор. 

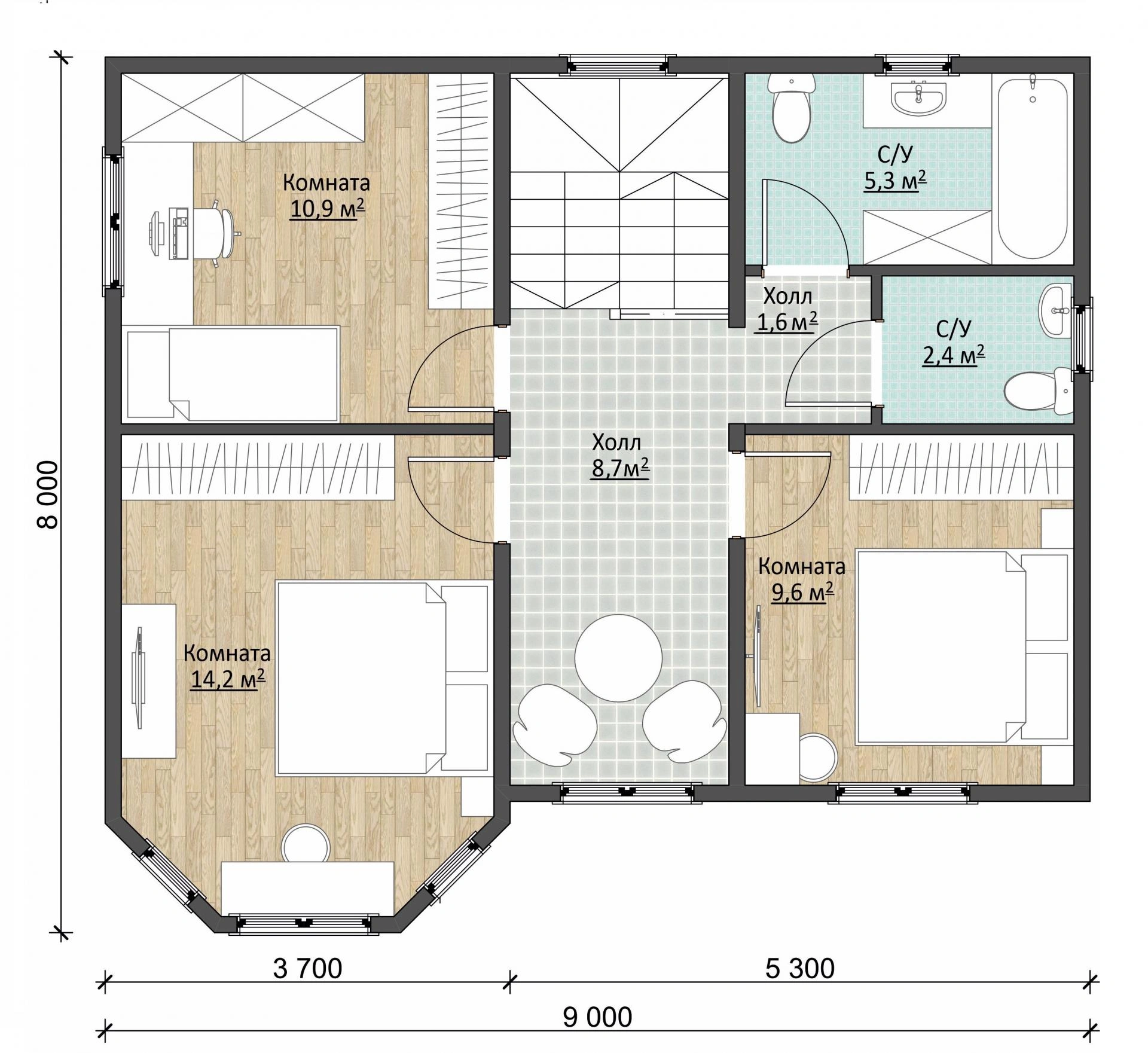
Поднимаемся на второй этаж и попадаем в не менее просторный холл (8,7 м2). Из него можно зайти в три комнаты площадью 9,6 м2, 10,9 м2 и 14,2 м2. Назначение комнат выбирает заказчик. 

Также на этаже есть 2 санузла, один побольше, второй поменьше. Все для вашего удобства!

Срок возведения дома — от 30 дней.

Планировки дома *
Планировка 1
1-й этаж Планировка 1
2-й этаж Планировка 1
* Размеры и площади указаны без учета наружной и внутренней отделки и в разных комплектациях могут меняться (из-за толщины утеплителя, стен и перегородок). Подробности уточняйте у менеджера.
Комплектации
Осень Каркасная
3 920 000 р.
старая цена
2 659 000 р.
цена по акции до 30.09
4 038 000 р.
цена по ипотеке
4 780 000 р.
цена в рассрочку
267 840 р.

Пакет инженерные коммуникации. Подведение труб горячей и холодной воды, прокладка канализационных труб, водонагреватель. Устройство канализации внутри дома. Прокладка электропроводки в пластиковых коробах.

Заказать дом Смотреть комплектацию
Фундамент дома

Свайно-винтовой (сваи D=108 м, L=2500 мм). Гидроизоляция фундамента — рубероид в два слоя. Замкнутая нижняя обвязка толщиной 145 мм.

Огнебиозащита, антисептирование

нет

Конструкция пола 1-го этажа

Толщина конструкции: 229 мм., Настил пола ОСП-22 мм; пароизоляция Тераспан Б (или аналог); клееный Т-профиль 73х207 мм усиленной конструкции; минеральная вата Урса М11 (или аналог) 150мм; ветро-изоляционная мембрана Тераспан А (или аналог); черновой пол толщиной 10мм.

Утепление пола 1-го этажа

Минеральная вата 150 мм.

Настил пола 1-го этажа

ОСП 22 мм

Стены 1 го этажа

Толщина стен 172 мм. Высота потолка 2 533 мм (от балок пола до балок перекрытий). Внутренняя обшивка 12,5 мм, пароизоляция, ПМК, минеральная вата 150 мм, ветро-изоляционная мембрана, наружная обшивка 12,5 мм.

Перекрытие 1-го этажа

Толщина конструкции: 228 мм., Настил пола ОСП-22 мм; пароизоляция Тераспан Б (или аналог); ПМК(1); минеральная вата Урса М11 (или аналог) 50мм; пароизоляция Тераспан Б

Второй этаж

Толщина стен 172 мм. Высота потолка 2 433 мм (от балок пола до балок перекрытий). Внутренняя обшивка 12,5 мм, ПМК, ветро-изоляционная мембрана, наружная обшивка 12,5 мм.

Перегородки

Толщина конструкции 122 мм. Обшивка 12,5 мм, ПМК, обшивка 12,5 мм.

Кровля

Оцинкованный профилированный лист. Крепление кровельными саморезами по обрешетке П/м, вентиляционный зазор ПМК, гидро-пароизоляционная мембрана.

Окна

ПВХ однокамерный стеклопакет (цвет белый). Под окнами установлены отливы (цвет белый).

Двери дома

Входная металлическая. Внутренние ламинированные.

Лестница

Деревянная клееная.

Вентиляция

-

Электрика

-

Отопление

-

Водоподготовка

-

Канализация

-

Зима Каркасная
4 592 000 р.
старая цена
3 569 000 р.
цена по акции до 30.09
4 724 000 р.
цена по ипотеке
5 600 000 р.
цена в рассрочку
267 840 р.

Пакет инженерные коммуникации. Подведение труб горячей и холодной воды, прокладка канализационных труб, водонагреватель. Устройство канализации внутри дома. Прокладка электропроводки в пластиковых коробах.

Заказать дом Смотреть комплектацию
Фундамент дома

Свайно-винтовой (сваи D=108 м, L=2500 мм). Гидроизоляция фундамента — рубероид в два слоя. Замкнутая нижняя обвязка толщиной 145 мм. обработана огнебиозащитой. По фундаменту установлены отливы (цвет белый).

Огнебиозащита, антисептирование

Огнебиозащита нижней обвязки, лаг пола и чернового пола в 2 слоя.

Конструкция пола 1-го этажа

Толщина конструкции: 229 мм., Настил пола ОСП-22 мм; пароизоляция Тераспан Б (или аналог); клееный Т-профиль 73х207 мм усиленной конструкции; минеральная вата Урса М11 (или аналог) 200мм; ветро-изоляционная мембрана Тераспан А (или аналог); черновой пол толщиной 10мм. Балки пола и черновой пол обработаны огнебиозащитой.

Утепление пола 1-го этажа

Минеральная вата 200 мм.

Настил пола 1-го этажа

ОСП 22 мм

Стены 1 го этажа

Толщина стен 198 мм. Высота потолка 2 533 мм (от балок пола до балок перекрытий). Внутренняя обшивка 12,5 мм, пароизоляция, ПМК, минеральная вата 150 мм, ветро-изоляционная мембрана, наружная обшивка сайдинг Альта профиль «Альта классика» (стыковка внахлест) по ОСП-9, по вентфасаду ПМК.

Перекрытие 1-го этажа

Толщина конструкции: 229,5 мм Настил пола ОСП-22 мм; пароизоляция Тераспан Б (или аналог); ПМК(1); минеральная вата Урса М11 (или аналог) 50мм; пароизоляция Тераспан Б

Второй этаж

Толщина стен 198 мм. Высота потолка 2 433 мм (от балок пола до балок перекрытий). Внутренняя обшивка 12,5 мм, пароизоляция, ПМК, минеральная вата 150 мм, ветро-изоляционная мембрана, наружная обшивка сайдинг Альта профиль «Альта классика» (стыковка внахлест) по ОСП-9, по вентфасаду ПМК.

Перегородки

Толщина конструкции 122 мм. Обшивка 12,5 мм, ПМК, обшивка 12,5 мм.

Кровля

Профиль СуперМонтеррей (цвет коричневый). Крепление кровельными саморезами по обрешетке П/м, вентиляционный зазор ПМК, гидро-пароизоляционная мембрана.

Окна

ПВХ однокамерный стеклопакет (цвет белый). Под окнами установлены отливы (цвет белый).

Двери дома

Входная металлическая. Внутренние ламинированные.

Лестница

Деревянная клееная.

Вентиляция

-

Электрика

-

Отопление

-

Водоподготовка

-

Канализация

-

ПМЖ Каркасная
5 602 000 р.
цена по акции до 30.09
5 610 000 р.
цена по ипотеке
6 832 000 р.
цена в рассрочку
267 840 р.

Пакет инженерные коммуникации. Подведение труб горячей и холодной воды, прокладка канализационных труб, водонагреватель. Устройство канализации внутри дома. Прокладка электропроводки в пластиковых коробах.

Заказать дом Смотреть комплектацию
Фундамент дома

Свайно-винтовой (сваи D=108 м, L=2500 мм). Нижняя обвязка — труба профильная металлическая 120х80 мм. Гидроизоляция фундамента — рубероид в два слоя. Монтажная доска ПМК обработана огнебиозащитой. Отделка фундамента дома ОСП-9 по обрешетке П/м, H=400 мм. По фундаменту установлены отливы (цвет белый).

Огнебиозащита, антисептирование

Огнебиозащита нижней обвязки, лаг пола и чернового пола в 2 слоя.

Конструкция пола 1-го этажа

Толщина конструкции: 229мм. Настил пола ОСП-22 мм; пароизоляция Тераспан Б (или аналог); клееный Т-профиль 73х207 мм усиленной конструкции; минеральная вата Урса М11 (или аналог) 200мм; ветро-изоляционная мембрана Тераспан А (или аналог); черновой пол толщиной 10мм. Балки пола и черновой пол обработаны огнебиозащитой.

Утепление пола 1-го этажа

Минеральная вата 200 мм.

Настил пола 1-го этажа

ОСП 22 мм

Стены 1 го этажа

Толщина стен 245 мм. Высота потолка 2,50 м. Внутренняя обшивка 12,5 мм, пароизоляция, ПМК, повторитель стоек ПМК для перекрестного утепления (бьется снаружи горизонтально), минеральная вата 200 мм, ветро-изоляционная мембрана, наружная обшивка сайдинг Альта профиль «Альта классика» (стыковка внахлест) по ОСП-9, по вентфасаду ПМК.

Перекрытие 1-го этажа

Толщина конструкции: 181,5 мм. Настил пола ОСП-22 мм; пароизоляция Тераспан Б (или аналог); ПМК(1); Минеральная вата Урса М11 (или аналог) 100 мм; пароизоляция Тераспан Б (или аналог); обшивка 12.5мм(2)

Второй этаж

Толщина стен 245 мм. Высота потолка 2 433 мм (от балок пола до балок перекрытий). Внутренняя обшивка 12,5 мм, пароизоляция, ПМК, повторитель стоек ПМК для перекрестного утепления (бьется снаружи горизонтально), минеральная вата 200 мм, ветро-изоляционная мембрана, наружная обшивка сайдинг Альта профиль «Альта классика» (стыковка внахлест) по ОСП-9, по вентфасаду ПМК.

Перегородки

Толщина конструкции 122 мм. Обшивка 12,5 мм, пароизоляция, минеральная вата 100 мм, ПМК, пароизоляция, обшивка 12,5 мм.

Кровля

Профиль СуперМонтеррей (цвет коричневый). Крепление кровельными саморезами по обрешетке П/м, вентиляционный зазор ПМК, гидро-пароизоляционная мембрана.

Окна

ПВХ двухкамерный стеклопакет (цвет белый) с москитными сетками. Под окнами установлены отливы (цвет белый).

Двери дома

Входная металлическая. Внутренние ламинированные.

Лестница

Деревянная клееная.

Вентиляция

Естественная, с/у и кухни. Место установки изолированного вентиляционного выхода и вентиляционных решеток не регламентируется и определяется проектом.

Электрика

-

Отопление

-

Водоподготовка

-

Канализация

-

ПМЖ+ Каркасная
6 387 000 р.
цена по акции до 30.09
6 555 000 р.
цена по ипотеке
7 789 000 р.
цена в рассрочку
900 798 р. АКЦИЯ *

Пакет инженерные коммуникации: отопление от электрокотла, горячее и холодное водоснабжение (монтаж внутри дома), канализация Септик Евролос, прокладка электропроводки в пластиковых коробах.

Заказать дом Смотреть комплектацию
Фундамент дома

Свайно-винтовой (сваи D=108 м, L=2500 мм). Нижняя обвязка — труба профильная металлическая 120х80 мм. Гидроизоляция фундамента — рубероид в два слоя. Монтажная доска ПМК обработана огнебиозащитой. Отделка фундамента дома ОСП-9 по обрешетке П/м, H=400 мм. По фундаменту установлены отливы (цвет белый).

Огнебиозащита, антисептирование

Огнебиозащита нижней обвязки, лаг пола и чернового пола в 2 слоя.

Конструкция пола 1-го этажа

Толщина конструкции: 229мм. Настил пола ОСП-22 мм; пароизоляция Тераспан Б (или аналог); клееный Т-профиль 73х207 мм усиленной конструкции; минеральная вата Урса М11 (или аналог) 200мм; ветро-изоляционная мембрана Тераспан А (или аналог); черновой пол толщиной 10мм. Балки пола и черновой пол обработаны огнебиозащитой.

Утепление пола 1-го этажа

Минеральная вата 200 мм.

Настил пола 1-го этажа

ОСП 22 мм

Стены 1 го этажа

Толщина стен 245 мм. Высота потолка 2,50 м. Внутренняя обшивка 12,5 мм, пароизоляция, ПМК, повторитель стоек ПМК для перекрестного утепления (бьется снаружи горизонтально), минеральная вата 200 мм, ветро-изоляционная мембрана, наружная обшивка сайдинг Альта профиль «Альта классика» (стыковка внахлест) по ОСП-9, по вентфасаду ПМК.

Перекрытие 1-го этажа

Толщина конструкции: 181,5 мм. Настил пола ОСП-22 мм; пароизоляция Тераспан Б (или аналог); ПМК(1); Минеральная вата Урса М11 (или аналог) 100 мм; пароизоляция Тераспан Б (или аналог); обшивка 12.5мм(2)

Второй этаж

Толщина стен 245 мм. Высота потолка 2 433 мм (от балок пола до балок перекрытий). Внутренняя обшивка 12,5 мм, пароизоляция, ПМК, повторитель стоек ПМК для перекрестного утепления (бьется снаружи горизонтально), минеральная вата 200 мм, ветро-изоляционная мембрана, наружная обшивка сайдинг Альта профиль «Альта классика» (стыковка внахлест) по ОСП-9, по вентфасаду ПМК.

Перегородки

Толщина конструкции 122 мм. Обшивка 12,5 мм, пароизоляция, минеральная вата 100 мм, ПМК, пароизоляция, обшивка 12,5 мм.

Кровля

Профиль СуперМонтеррей (цвет коричневый). Крепление кровельными саморезами по обрешетке П/м, вентиляционный зазор ПМК, гидро-пароизоляционная мембрана.

Окна

ПВХ двухкамерный стеклопакет (цвет белый) с москитными сетками. Под окнами установлены отливы (цвет белый).

Двери дома

Входная металлическая. Внутренние ламинированные.

Лестница

Деревянная клееная.

Вентиляция

Естественная, с/у и кухни. Место установки изолированного вентиляционного выхода и вентиляционных решеток не регламентируется и определяется проектом.

Электрика

Прокладка электропроводки в пластиковых коробах

Отопление

Электрическое отопление. Двухтрубная система отопления, алюминиевые радиаторы, запорная арматура, электрический котёл.

Водоподготовка

Разводка по дому горячего и холодного водоснабжения до точки пользования с запорной арматурой. Водонагреватель ГВС на 50 л.

Канализация

Канализация включает в себя разводку канализационных труб для обеспечения слива воды под каждую точку водоразбора, в том числе под унитаз. Септик. Залповый сброс 150 л. Производительность 0,6 куб. м. в сутки. Количество пользователей — 3 чел. Потребляемая мощность 2 кВт сутки.

В любую комплектацию возможно внести изменения!

Доставка свыше 100 км от производственной базы (Московская область, г. Бронницы, с. Заворово):
дом без фундамента 1003 руб./км
дом со свайно-винтовым фундаментом 1236 руб./км
дом со свайно-забивным (ЖБИ) фундаментом 1302 руб./км
Фотообзор
Фотообзор Статус 8х9 Вираж - 1

Такой величественный и необычный... Статус 8х9 Вираж выполнен с уклоном на готический стиль.

Другие проекты
Отправить заявку на проект
Комплектация
Не важно
  • Осень
  • Зима
  • ПМЖ
  • ПМЖ+
Город*
Выберите город
  • Москва и область
  • Рязань и область
  • Другой
Планировка
Выберите планировку
  • Планировка 1